Apartament, 2 camere, 51 mp utili, oras Radauti

63.087 €

Rădăuţi, Judeţul Suceava

Nr. camere:
2
Suprafață utilă:
50 mp
Etaj:
1 / 4
An construcție:
2024
Nr. niveluri:
4

Descriere apartament

Blitz va propune spre vanzare un apartament situat intr-un bloc nou, aflat in constructie, cu predare in Septembrie 2025. Imobilul face parte dintr-o constructie pe o structura cu regim de inaltime P+4E. Apartamentele se predau la stadiul de finisat , cu calorifere, centrala termica pe gaz. Tamplaria va fi realizata din profile PVC cu geam termoizolant, cu glafuri exterioare si interioare din PVC. Balustradele vor fi realizate din sticla securizata cu mana curenta din aluminiu. Sistemul de termoizolatie va fi alcatuit din polistiren expandat de 10 cm la peretii exteriori si la terasa circulabila. Finisaje interioare si exterioare propuse : La fiecare dintre niveluri tavanele vor fi tencuite, gletuite, amorsate si finisate cu var lavabil. In cazul in care se va recurge la placari cu gips-carton in spatiile umede (bucatarii, bai), se va utiliza gips carton rezistent la umezeala si se vor realiza placari cu placi ceramice. In bai faianta va urca pe perete pana la cota +2,20 m iar la bucatarii, in zona spatiilor de lucru, vor fi dispuse fasii de placi de faianta intre blaturi si mobilierele suspendate, avand o inaltime de 80 cm. Peretii exteriori vor fi finisati cu tencuiala decorativa. Pardoseli : granit, gresie antiderapanta si parchet. In pret este inclus si un loc de parcare. Cod oferta / ID BLITZ: P135923 Id intern: P135923 Confort: 1 Tip imobil: Bloc de apartamente Numar Bai: 1 Nr. locuri parcare: 1
Citește mai mult Citește mai puțin
Decomandat Nemobilat Calorifere Centrală proprie

Detalii apartament

ID anunț: 38665 Actualizat în: 31 Martie 2026
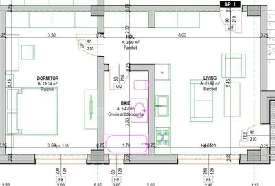
Nr. camere: 2
Suprafață utilă: 50 mp
Suprafață utilă totală: 50 mp
Compartimentare: Decomandat
Etaj: Etaj 1 / 4
An construcție: 2024
Regim înălțime: P+4E

Istoric preț

Facilități

Pereți
Vopsea lavabilă Var
Podele
Parchet Gresie
Rulouri/Obloane
PVC
Ușă intrare
Parchet Metal PVC
Uși interior
Celulare PVC
Izolații termice
Exterior
Ferestre cu geam termopan
PVC
Contorizare
Contor gaz
Dotări
Lift
Mobilat
Nemobilat
Facilități imobil
Interfon Lift
Sistem încălzire
Centrală proprie Calorifere
Amenajare străzi
Asfaltate

Puncte de interes

Recreere
parks
Parc
Recreere aprox. 564 m
parks
Parc
Recreere aprox. 607 m
parks
Parc
Recreere aprox. 790 m
parks
Parc
Recreere aprox. 805 m

Proprietăți similare

Apartament cu 3 camere decomandat în Rădăuți
65.000 €
Județul Suceava, Rădăuți
3 camere
80 mp
Etaj 3
Apartament cu 3 camere decomandat în Rădăuți
62.000 €
Județul Suceava, Rădăuți
3 camere
60 mp
Etaj 4
Apartament cu 3 camere decomandat în Rădăuți
60.000 €
Județul Suceava, Rădăuți
3 camere
60 mp
Apartament cu 2 camere semidecomandat în Rădăuți
66.500 €
Județul Suceava, Rădăuți
2 camere
48 mp
Etaj 4
Apartament cu 3 camere decomandat în Rădăuți
60.000 €
Județul Suceava, Rădăuți
3 camere
71 mp
Etaj 3
Apartament cu 2 camere decomandat în Rădăuți
67.000 €
Județul Suceava, Rădăuți
2 camere
67 mp
Etaj 4 / 4
Apartament cu 2 camere decomandat în Rădăuți
63.087 €
Județul Suceava, Rădăuți
2 camere
50 mp
Etaj 1 / 4
Apartament cu 2 camere decomandat în Rădăuți
63.087 €
Județul Suceava, Rădăuți
2 camere
50 mp
Etaj 4
Apartament cu 2 camere decomandat în Rădăuți
57.960 €
Județul Suceava, Rădăuți
2 camere
43 mp
Etaj 1

Abonează-te la newsletter să fii primul care primește cele mai noi recomandări de proprietăți și sfaturi de la experți.