3 camere mobilat utilat parcare 13 min Metrou Dimitrie Leonida Berceni

125.000 €

Popeşti-Leordeni, Judeţul Ilfov

Nr. camere:
3
Suprafață utilă:
70 mp
Etaj:
4 / 4
Nr. niveluri:
4

Descriere apartament

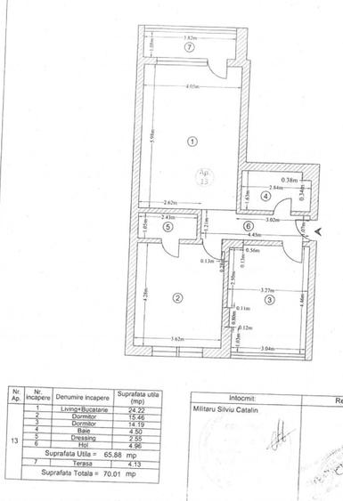
Vand apartament de 3 camere situat in Popesti Leordeni, pe Strada Solstitiului, nr. 43 (este exact la intersectia dintre Strada Biruintei si Strada Solstitiului). Imobilul este nou (finalizat in octombrie 2016) si este construit de Siena. Contructiile vecine au regim de inaltime mai mic si astfel este lumina naturala in toate camerele. Apartamentul este pozitionat la etajul 4 al unui imobil S+P+4+Pod (intre etajul 4 si pod este placa de beton iar tavanul este izolat cu vata minerala), este decomandat, are orientare Est-Vest si este format din doua dormitoare, camera de zi + bucatarie, dressing, baie si hol, toate insumand suprafata utila de 65,88 mp + balcon 4,13 mp = 70,01 mp. Termopanele sunt Rehau tripan (3 foi de sticla) iar balconul este inchis tot cu geam termopan Rehau tripan (3 foi de sticla) si are calorifer montat. Impreuna cu apartamentul se poate vinde si un loc de parcare subteran individual (are perete in dreapta si stalpi in stanga) la pretul de 10.000 euro. Blocul dispune de acces facil catre statia de metrou Dimitrie Leonida (13 min) si statia de metrou Berceni (18 min). Locuinta se vinde mobilata si utilata, exact ca in poze (mai putin televizoarele, masina de spalat vase si urcatorul): - aer conditionat Beko in dormitorul mare - canapea - termostat ambient wireless - msr Beko - combina frigorifica Hotpoint Ariston - plita Arctic - cuptor electric Beko - hota Beko - chiuveta + baterie Pyramis granit - mobila bucatarie MDF cu sertare box de aluminiu Vindem apartamentul pentru ca ne-am cumparat o casa. Direct de la proprietar.
Citește mai mult Citește mai puțin
Decomandat

Detalii apartament

ID anunț: 3796312 Actualizat în: 11 Martie 2026
Nr. camere: 3
Suprafață utilă: 70 mp
Suprafață utilă totală: 70 mp
Compartimentare: Decomandat
Etaj: Etaj 4 / 4
Regim înălțime: P+4E

Istoric preț

Puncte de interes

Mijloace transport
transport
Statia IMGB Poarta 1 linia 125
Mijloace transport aprox. 1056 m
transport
Prestige
Mijloace transport aprox. 1066 m
transport
Dimitrie Leonida (M2)
Mijloace transport aprox. 1068 m
transport
Statia Dimitrie Leonida (I.M.G.B) statie metrou M2
Mijloace transport aprox. 1142 m
Școală
education
Scoala nr. 2
Învățământ aprox. 1238 m
education
Scoala cu clasele I-VIII nr. 2
Învățământ aprox. 1238 m
education
Colegiul Tehnic Miron Nicolescu
Învățământ aprox. 1374 m
education
Grupul Industrial "Dacia"
Învățământ aprox. 1435 m
Recreere
shopping
Caro Mega Expres
Supermarket/Mall aprox. 223 m
shopping
Hanucamp Promotion
Supermarket/Mall aprox. 240 m
restaurants
4 Friends
Restaurante aprox. 298 m
parks
Teren sportiv
Recreere aprox. 672 m

Proprietăți similare

Apartament cu 3 camere decomandat în Est
125.000 €
Județul Ilfov, Popești-Leordeni
3 camere
70 mp
Etaj 4
Apartament cu 2 camere decomandat, mobilat în Popești-Leordeni
113.900 €
Județul Ilfov, Popești-Leordeni
2 camere
50 mp
Etaj 3
Apartament cu 2 camere decomandat, mobilat în Central
135.000 €
Județul Ilfov, Popești-Leordeni
2 camere
58 mp
Etaj 4
Apartament cu 2 camere decomandat în Central
127.000 €
Județul Ilfov, Popești-Leordeni
2 camere
55 mp
Parter / 5
Apartament cu 2 camere decomandat, mobilat în Central
125.000 €
Județul Ilfov, Popești-Leordeni
2 camere
50 mp
Parter / 3
Apartament cu 3 camere decomandat în Central
119.999 €
Județul Ilfov, Popești-Leordeni
3 camere
62 mp
Parter
Apartament cu 3 camere semidecomandat, mobilat în Central
123.900 €
Județul Ilfov, Popești-Leordeni
3 camere
66,9 mp
Etaj 3 / 3
Apartament cu 3 camere decomandat, mobilat în Central
129.900 €
Județul Ilfov, Popești-Leordeni
3 camere
101,5 mp
Etaj 2 / 11
Apartament cu 2 camere decomandat în Central
112.900 €
Județul Ilfov, Popești-Leordeni
2 camere
58 mp
Etaj 2 / 4

Abonează-te la newsletter să fii primul care primește cele mai noi recomandări de proprietăți și sfaturi de la experți.