MARASESTI - 2cam, cf1A, dec, 3/8, renovat total - 89900 eu

89.900 €

Vest, Ploieşti

Nr. camere:
2
Suprafață utilă:
52 mp
Etaj:
4 / 10
An construcție:
1972
Nr. niveluri:
10

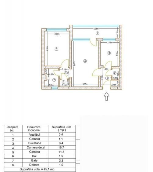
Descriere apartament

MARASESTI apartament 2 camere, confort1A, decomandat situat la etajul 3 al unui imobil cu 8 niveluri, constructie beton 1988. Apartamentul este renovat total cu materiale de calitate, baia este cu geam de aerisire, are centrala termica proprie cu incalzire in pardoseala in baie si bucatarie , aer conditionat etc . Pozitie foarte buna, aproape de centre comerciale, gara de vest , statie transport, etc. Acte la zi. Pret vanzare 89900 euro. Precizati ca ati vazut oferta cu ID-ul: 5083 Confort: Lux Tip imobil: Bloc de apartamente Numar Bai: 1 Publicat prin , vezi anuntul complet aici.
Citește mai mult Citește mai puțin
Confort 1 Semidecomandat

Detalii apartament

ID anunț: 3195244 Actualizat în: 01 Februarie 2026
Nr. camere: 2
Suprafață utilă: 52 mp
Suprafață utilă totală: 52 mp
Compartimentare: Semidecomandat
Confort: 1
Etaj: Etaj 4 / 10
An construcție: 1972
Regim înălțime: P+10E

Istoric preț

Puncte de interes

Mijloace transport
transport
Tache Ionescu
Mijloace transport aprox. 148 m
transport
Statia Galerii
Mijloace transport aprox. 218 m
transport
(type name here)
Mijloace transport aprox. 251 m
transport
Coreco
Mijloace transport aprox. 412 m
Școală
education
Liceul Economic
Învățământ aprox. 411 m
education
Colegiul Mihai Viteazu
Învățământ aprox. 562 m
education
Liceul Caragiale
Învățământ aprox. 735 m
education
Spiru Haret
Învățământ aprox. 754 m
Recreere
restaurants
Tres Olivos
Restaurante aprox. 146 m
shopping
Carrefour Express
Supermarket/Mall aprox. 158 m
parks
Parc
Recreere aprox. 190 m
shopping
MERCUR MALL
Supermarket/Mall aprox. 386 m

Proprietăți similare

Apartament cu 2 camere decomandat în Vest
81.000 €
Ploiești, Vest
2 camere
49 mp
Etaj 4 / 10
Apartament cu 3 camere semidecomandat în Vest
84.500 €
Ploiești, Vest
3 camere
51 mp
Etaj 1
Apartament cu 3 camere semidecomandat în Vest
95.000 €
Ploiești, Vest
3 camere
69 mp
Etaj 1
Apartament cu 2 camere decomandat în Vest
89.900 €
Ploiești, Vest
2 camere
54 mp
Etaj 3 / 8
Apartament cu 3 camere decomandat în Vest
88.000 €
Ploiești, Vest
3 camere
92 mp
Etaj 10
Apartament cu 2 camere decomandat în Exterior Nord
90.580 € + TVA
Ploiești, Exterior Nord
2 camere
53 mp
Etaj 1
Apartament cu 3 camere decomandat în Central
95.000 € + TVA
Ploiești, Central
3 camere
83 mp
Etaj 3
Apartament cu 3 camere decomandat, mobilat în Ultracentral
84.000 €
Ploiești, Ultracentral
3 camere
59 mp
Etaj 3
Apartament cu 2 camere decomandat, mobilat în Central
95.000 €
Ploiești, Central
2 camere
54 mp
Etaj 4

Abonează-te la newsletter să fii primul care primește cele mai noi recomandări de proprietăți și sfaturi de la experți.