Apartament 3 camere de vanzare , bloc nou 2023 parter inalt, balcon 10 mp |

110.000 €

Nord-Est, Ploieşti

Nr. camere:
3
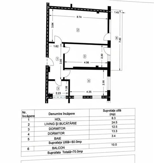
Suprafață utilă:
60 mp
Etaj:
Parter / 5
An construcție:
2023
Nr. niveluri:
5

Descriere apartament

Vă prezentăm spre vânzare un apartament modern cu 3 camere, situat într-un bloc nou, construit în anul 2023, ideal pentru cei care caută confort, funcționalitate și finisaje actuale. Apartamentul este amplasat la parter înalt, oferind atât siguranță, cât și acces facil, și dispune de o suprafață utilă de 60 mp, excelent compartimentată. Un mare avantaj îl reprezintă balconul generos de 10 mp, perfect pentru relaxare sau depozitare. Locuința se vinde complet mobilată și utilată, cu mobilier modern și electrocasnice incluse, fiind gata de mutare imediată. Compartimentarea este practică și eficientă, cu 3 camere luminoase, ideal pentru o familie sau pentru investiție. Caracteristici principale: • Apartament 3 camere • Bloc nou, an construcție 2023 • Parter înalt • Suprafață utilă: 60 mp • Balcon mare: 10 mp • Complet mobilat și utilat • Finisaje moderne • Ideal pentru locuință sau investiție Preț de vânzare: 110.000 € Acest apartament de vânzare în bloc nou este alegerea perfectă pentru cei care doresc un spațiu modern, bine compartimentat și pregătit pentru mutare imediată. Pentru mai multe informații sau pentru programarea unei vizionări, vă stau la dispoziție!
Citește mai mult Citește mai puțin
Confort 1 Decomandat Mobilat Complet Aer condiționat Centrală proprie

Detalii apartament

ID anunț: 3291611 Actualizat în: 10 Februarie 2026
Nr. camere: 3
Suprafață utilă: 60 mp
Suprafață utilă totală: 60 mp
Compartimentare: Decomandat
Confort: 1
Etaj: Parter / 5
Nr. băi: 1
An construcție: 2023
Regim înălțime: P+5E

Istoric preț

Facilități

Pereți
Faianță Vopsea lavabilă
Podele
Gresie Parchet
Ușă intrare
Parchet Metal PVC
Uși interior
PVC Celulare
Izolații termice
Exterior
Ferestre cu geam termopan
PVC
Contorizare
Contor gaz Apometre
Bucătărie
Mobilată Utilată
Mobilat
Complet
Electrocasnice
Mașină de spălat rufe Aragaz Hotă
Dotări imobil
Lift Interfon
Utilități
Curent Apă Gaze Mașină de spălat rufe Aragaz / Plită
Sistem încălzire
Centrală proprie
Acces internet
Fibră optică
Climatizare
Aer condiționat
Amenajare străzi
Asfaltate Iluminat stradal Mijloace de transport în comun
Servicii imobil
Menaj Administrare Pază

Puncte de interes

Mijloace transport
transport
Gara de Nord
Mijloace transport aprox. 328 m
transport
Boldescu
Mijloace transport aprox. 495 m
transport
Cina
Mijloace transport aprox. 1004 m
transport
Colinii
Mijloace transport aprox. 1046 m
Școală
education
Scoala nr. 13
Învățământ aprox. 704 m
education
Liceul Caragiale
Învățământ aprox. 1083 m
education
Gradinita
Învățământ aprox. 1210 m
education
Scoala nr. 23
Învățământ aprox. 1211 m
Recreere
parks
Parc
Recreere aprox. 515 m
restaurants
Molinari
Restaurante aprox. 1017 m
shopping
Complex comercial CINA
Supermarket/Mall aprox. 1058 m
shopping
AFI Ploiesti
Supermarket/Mall aprox. 1118 m

Proprietăți similare

Apartament cu 4 camere decomandat, mobilat în Vest
105.000 €
Ploiești, Vest
4 camere
78 mp
Etaj 3 / 4
Apartament cu 3 camere decomandat, mobilat în Cantacuzino
108.000 €
Ploiești, Cantacuzino
3 camere
73,16 mp
Etaj 4 / 4
Apartament cu 3 camere decomandat în Albert
120.000 €
Ploiești, Albert
3 camere
93,3 mp
Etaj 1 / 2
Apartament cu 4 camere decomandat, mobilat în 9 Mai
99.900 €
Ploiești, 9 Mai
4 camere
80 mp
Etaj 4
Apartament cu 2 camere semidecomandat în Albert
105.000 € + TVA
Ploiești, Albert
2 camere
52 mp
Etaj 1
Apartament cu 3 camere semidecomandat în Republicii
120.000 €
Ploiești, Republicii
3 camere
75 mp
Etaj 1 / 4
Apartament cu 2 camere decomandat în Albert
105.000 € + TVA
Ploiești, Albert
2 camere
49 mp
Etaj 1
Apartament cu 4 camere decomandat în Ultracentral
120.000 €
Ploiești, Ultracentral
4 camere
110 mp
Etaj 3
Apartament cu 2 camere decomandat în Ultracentral
119.900 €
Ploiești, Ultracentral
2 camere
60 mp
Parter

Abonează-te la newsletter să fii primul care primește cele mai noi recomandări de proprietăți și sfaturi de la experți.