Vanzare apartament 2 camere Ploie?ti, zona Albert Kaufland

105.000 €

Albert, Ploieşti

Nr. camere:
7
Suprafață utilă:
52 mp
Etaj:
1

Descriere apartament

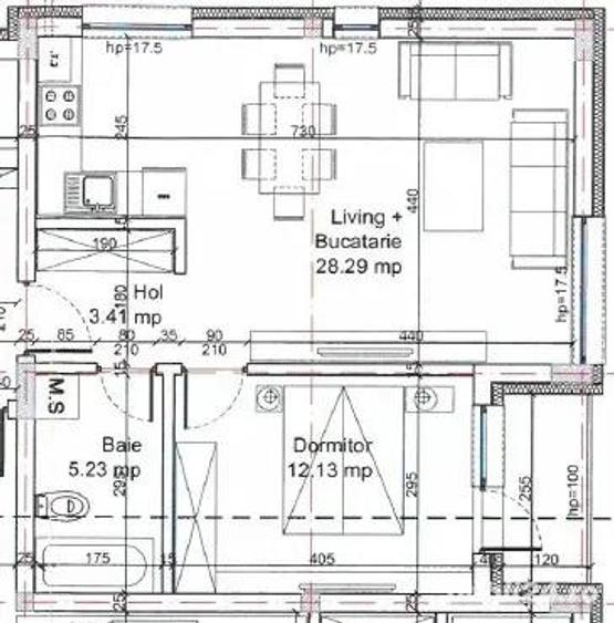
Apartament 2 camere situat intr-una dintre cele mai apreciate zone ale Ploie?tiului, in cartierul Albert Kaufland, pe o strada privata, ferita de trafic ?i inconjurata de case ?i blocuri noi. In apropiere: Kaufland, MRS Smart, MRS Gradinile, sta?ii de transport in comun, parc, pia?a, ?coli, gradini?e, restaurante. Detalii imobil Imobil P+3+4R, construit pe structura solida din cadre de beton armat, cu radier general. - Funda?ie: beton armat, cu polistiren extrudat + hidroizola?ie - Pere?i interior exterior: caramida Porotherm 24 cm - Izola?ie exterioara: polistiren expandat 15 cm - Terasa: polistiren extrudat 20 cm + hidroizola?ie + ?apa - Lift: Schindler - Casa scarii: placata cu gresie ?i faian?a - Curte: pavata, cu spa?ii verzi amenajate ?i sistem de aspersoare - Locuri de parcare: 25 locuri disponibile Suprafa?a & compartimentare - Suprafa?a utila: 52 mp Compartimentare: - Hol acces: 3,41 mp - Living + bucatarie: 28,29 mp - Dormitor: 12,13 mp - Baie: 5,23 mp - Logie: 3,06 mp Finisaje ?i dotari - U?a intrare metalica antiefrac?ie - U?i interioare MDF - Tamplarie PVC Salamander, 7 camere, geam tripan - Glafuri din granit - Incalzire in pardoseala cu distribuitor - Centrala termica in condensa?ie - Gresie ?i faian?a - Parchet laminat - Obiecte sanitare incluse - Vopsea lavabila - Preechipare aer condi?ionat - Logie placata cu gresie de exterior - Balustrada din sticla duplex Disponibilita?i - Parter - Etaj 1 - Etaj 2 - Etaj 3 Finalizare 2026 Pre?uri - Pre? apartament: 105.000 + TVA 21% - Loc de parcare: 6.500 + TVA 21% ID anun? : 1769496390
Citește mai mult Citește mai puțin
Semidecomandat

Detalii apartament

ID anunț: 2839880 Actualizat în: 08 Februarie 2026
Nr. camere: 7
Suprafață utilă: 52 mp
Suprafață utilă totală: 52 mp
Compartimentare: Semidecomandat
Etaj: Etaj 1

Istoric preț

Facilități

Utilități
Apă

Proprietăți similare

Apartament cu 2 camere decomandat în Albert
105.000 € + TVA
Ploiești, Albert
2 camere
59,27 mp
Etaj 1 / 3
Apartament cu 2 camere semidecomandat în Albert
105.000 € + TVA
Ploiești, Albert
2 camere
52 mp
Etaj 1 / 4
Apartament cu 2 camere în Albert
105.000 €
Ploiești, Albert
2 camere
52 mp
Etaj 1
Apartament cu 2 camere decomandat, mobilat în Albert
104.900 €
Ploiești, Albert
2 camere
67,49 mp
Etaj 1 / 4
Apartament cu 2 camere decomandat în Albert
113.000 € + TVA
Ploiești, Albert
2 camere
63,05 mp
Etaj 1 / 4
Apartament cu 2 camere decomandat, mobilat în Albert
104.900 €
Ploiești, Albert
2 camere
50 mp
Etaj 5
Apartament cu 2 camere decomandat în Albert
110.000 €
Ploiești, Albert
2 camere
60 mp
Etaj 1 / 4
Apartament cu 2 camere decomandat în Albert
105.000 € + TVA
Ploiești, Albert
2 camere
49 mp
Etaj 1 / 4
Apartament cu 4 camere decomandat, mobilat în Albert
107.000 €
Ploiești, Albert
4 camere
76 mp
Etaj 4

Abonează-te la newsletter să fii primul care primește cele mai noi recomandări de proprietăți și sfaturi de la experți.