3 camere Gavana 2 mobilat

106.000 €

Găvana, Piteşti

Nr. camere:
3
Suprafață utilă:
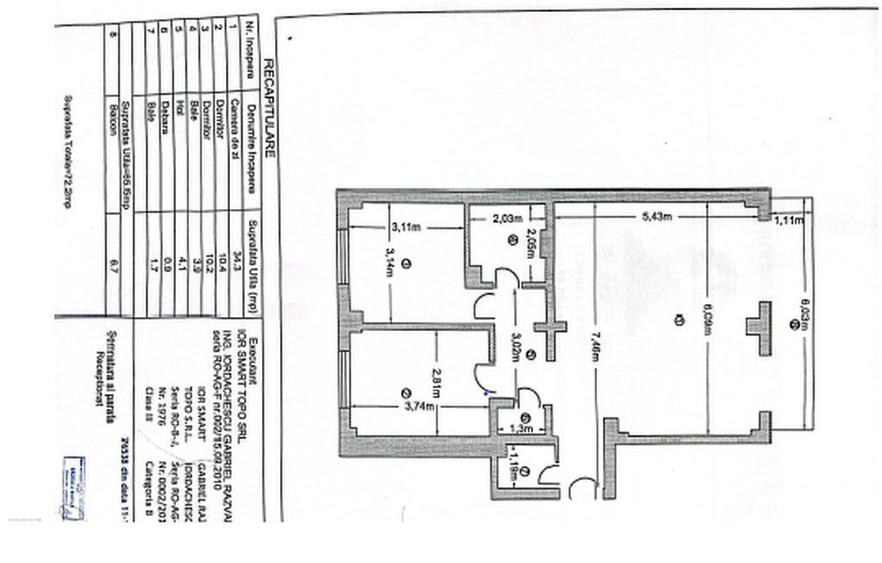
72,2 mp
Etaj:
4 / 4
An construcție:
1979
Nr. niveluri:
4

Descriere apartament

Proprietar, vand apartament 3 camere, decomandat, avand o suprafata utila totala de 72,2mpLiving-ul si bucataria au fost integrate intr-un singur spatiu , pentru a oferi o zona mai deschisa. In acest sens s-a optat si pentru inchiderea balconului cu tamplarie PVC pe toata inaltimea apartamentului , oferind acestuia un aspect vinde complet mobilat ,asa cum este prezentat in poze.Apartamentul se afla intr-un imobil stradal, vizavi de statia autobuz principala a cartierului, cu living+bucataria cu vedere la aceasta, iar cele doua dormitoare au vedere catre partea din spate a imobilului.Alte detalii pe scurt:-2 bai-mobilier inclus-TV,masina de spalat, frigider, plita, cuptor , incluse-centrala pe gaz-instalatie electrica schimbataPentru alte detalii specifice, va rog sa ma contactatiMultumesc.
Citește mai mult Citește mai puțin
Decomandat

Detalii apartament

ID anunț: 3338526 Actualizat în: 09 Aprilie 2026
Nr. camere: 3
Suprafață utilă: 72,2 mp
Suprafață utilă totală: 72,2 mp
Compartimentare: Decomandat
Etaj: Etaj 4 / 4
An construcție: 1979
Regim înălțime: P+4E

Istoric preț

Puncte de interes

Mijloace transport
transport
Statia Puturosilor
Mijloace transport aprox. 393 m
transport
Kaufland
Mijloace transport aprox. 540 m
transport
Autogara Nord
Mijloace transport aprox. 550 m
transport
Pitesti Nord
Mijloace transport aprox. 1328 m
Școală
education
Liceul Sanitar
Învățământ aprox. 146 m
education
Liceul Sanitar
Învățământ aprox. 238 m
education
Scoala Generala nr. 6 Pitesti
Învățământ aprox. 323 m
education
Scoala Postliceala Carol Davila
Învățământ aprox. 412 m
Recreere
restaurants
Restaurant Oscar
Restaurante aprox. 114 m
parks
PARC
Recreere aprox. 283 m
shopping
Supermarket Jam Gavana
Supermarket/Mall aprox. 359 m
shopping
Lidl
Supermarket/Mall aprox. 422 m

Proprietăți similare

Apartament cu 3 camere decomandat în Găvana
114.999 €
Pitești, Găvana
3 camere
80 mp
Parter
Apartament cu 3 camere decomandat, mobilat în Găvana
104.900 €
Pitești, Găvana
3 camere
63 mp
Etaj 3 / 4
Apartament cu 4 camere în Găvana
109.000 €
Pitești, Găvana
4 camere
85 mp
Etaj 4
Apartament cu 4 camere decomandat în Găvana
105.000 €
Pitești, Găvana
4 camere
82 mp
Etaj 4
Apartament cu 2 camere decomandat în Găvana
99.900 €
Pitești, Găvana
2 camere
60 mp
Etaj 3 / 4
Apartament cu 3 camere decomandat în Găvana
114.900 €
Pitești, Găvana
3 camere
63 mp
Parter
Apartament cu 3 camere decomandat în Găvana
110.000 €
Pitești, Găvana
3 camere
68 mp
Etaj 2
Apartament cu 3 camere decomandat, mobilat în Găvana
108.500 €
Pitești, Găvana
3 camere
80 mp
Etaj 8
Apartament cu 3 camere decomandat în Găvana
114.999 €
Pitești, Găvana
3 camere
80,54 mp
Parter / 3

Abonează-te la newsletter să fii primul care primește cele mai noi recomandări de proprietăți și sfaturi de la experți.