GAVANA 3 | Apartament 2 camere – imobil mic, doar 6 locuințe

84.600 € + TVA

Găvana 3, Piteşti

Nr. camere:
2
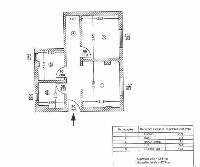
Suprafață utilă:
42,3 mp
Etaj:
1 / 2
An construcție:
2026
Nr. niveluri:
2

Descriere apartament

Vă propunem spre vânzare un apartament situat într-un imobil de dimensiuni reduse, gândit pentru cei care își doresc mai multă liniște, spațiu personal și mai puțini vecini. Clădirea cuprinde doar șase apartamente, ceea ce înseamnă un număr redus de locatari și o administrare mai simplă a spațiilor comune. Apartamentul are o suprafață utilă 42,3 mp și este proiectat astfel încât fiecare spațiu să fie utilizat eficient. Poate reprezenta atât o locuință permanentă, cât și o investiție, zona Găvana fiind una cu cerere constantă pe piața închirierilor. Dezvoltatorul a ales tencuială clasică, în locul pereților din rigips, pentru o izolare fonică mai bună și o rezistență mai mare în timp. Apartamentul se predă cu următoarele dotări incluse: • centrală termică proprie • aer condiționat • încălzire în pardoseală • ușă antiefracție • contoare individuale pentru utilități În interiorul ansamblului sunt amenajate aproximativ 12 locuri de parcare, disponibile pentru viitorii proprietari. Un loc de parcare poate fi achiziționat separat, la prețul de 10.000 euro. Accesul în incintă este privat, prin poartă acționată electric, iar ansamblul beneficiază de sistem de supraveghere video, pentru un plus de siguranță și confort.
Citește mai mult Citește mai puțin
Semidecomandat Aer condiționat Centrală proprie Bine întreținut (Bună)

Detalii apartament

ID anunț: 3927972 Actualizat în: 23 Martie 2026
Nr. camere: 2
Suprafață utilă: 42,3 mp
Suprafață utilă totală: 42,3 mp
Compartimentare: Semidecomandat
Etaj: Etaj 1 / 2
Nr. băi: 1
An construcție: 2026
Regim înălțime: P+2E

Istoric preț

Facilități

Pereți
Vopsea lavabilă Faianță
Podele
Parchet Gresie
Ușă intrare
Parchet PVC
Stare interior
Stare bună
Izolații termice
Exterior
Ferestre cu geam termopan
PVC
Utilități
Curent Apă Canalizare Gaze Supraveghere video
Sistem încălzire
Centrală proprie
Climatizare
Aer condiționat
Diverse
Telecomandă poartă acces auto
Amenajare străzi
Asfaltate Iluminat stradal Mijloace de transport în comun
Servicii imobil
Supraveghere video

Puncte de interes

Mijloace transport
transport
Kaufland
Mijloace transport aprox. 625 m
transport
Pitesti Nord
Mijloace transport aprox. 796 m
transport
Statia Puturosilor
Mijloace transport aprox. 840 m
transport
Autogara Nord
Mijloace transport aprox. 1116 m
Școală
education
Scoala Postliceala Carol Davila
Învățământ aprox. 501 m
education
Liceul Sanitar
Învățământ aprox. 713 m
education
Universitatea Constantin Brancoveanu
Învățământ aprox. 732 m
education
Scoala Nr. 14
Învățământ aprox. 738 m
Recreere
shopping
KAUFLAND
Supermarket/Mall aprox. 502 m
shopping
Kaufland
Supermarket/Mall aprox. 525 m
parks
Teren sportiv
Recreere aprox. 580 m
restaurants
Restaurant Oscar
Restaurante aprox. 758 m

Proprietăți similare

Apartament cu 3 camere semidecomandat în Găvana 3
78.100 €
Pitești, Găvana 3
3 camere
95,7 mp
Etaj 5 / 6
Apartament cu 2 camere decomandat, mobilat în Găvana 3
84.900 €
Pitești, Găvana 3
2 camere
60 mp
Etaj 4
Apartament cu 2 camere semidecomandat, mobilat în Găvana 3
85.000 €
Pitești, Găvana 3
2 camere
52 mp
Etaj 4 / 4
Apartament cu 3 camere decomandat în Nord
84.900 €
Pitești, Nord
3 camere
82,82 mp
Parter
Apartament cu 2 camere semidecomandat în Craiovei
83.900 €
Pitești, Craiovei
2 camere
48 mp
Etaj 1 / 9
Apartament cu 2 camere decomandat în Tudor Vladimirescu
77.999 €
Pitești, Tudor Vladimirescu
2 camere
54 mp
Etaj 4 / 4
Apartament cu 2 camere semidecomandat în Central
77.000 €
Pitești, Central
2 camere
47 mp
Etaj 1
Apartament cu 3 camere decomandat în Ultracentral
92.000 €
Pitești, Ultracentral
3 camere
60 mp
Etaj 4
Apartament cu 2 camere decomandat în Trivale
86.000 €
Pitești, Trivale
2 camere
57 mp
Etaj 2 / 2

Abonează-te la newsletter să fii primul care primește cele mai noi recomandări de proprietăți și sfaturi de la experți.