2 cam.Maratei 29.000

29.000 €

Precista, Piatra-Neamţ

Nr. camere:
2
Suprafață utilă:
43 mp
Etaj:
Parter
An construcție:
1983

Descriere apartament

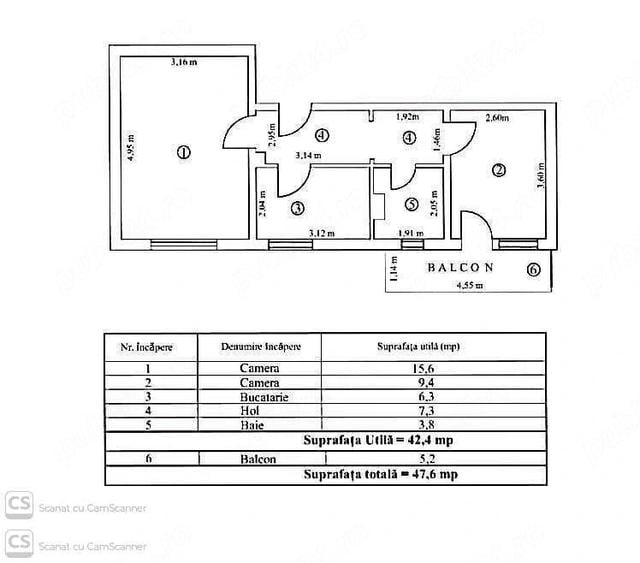
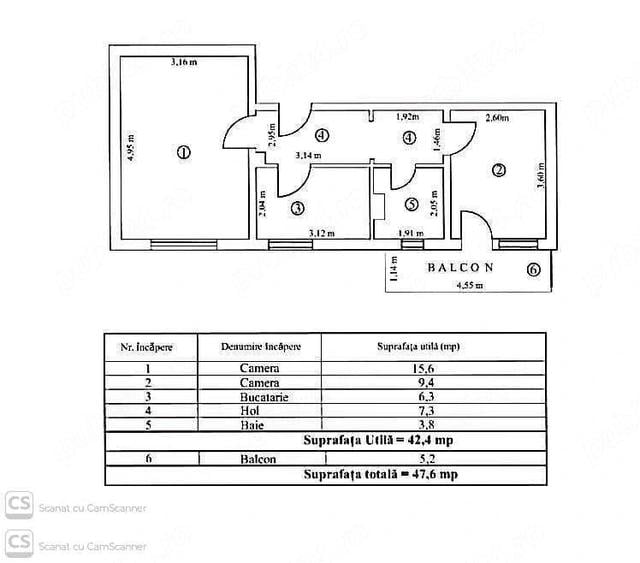
Va propunem spre vanzare un **apartament de 2 camere ## **SUPER OFERTA SE VINDE APARTAMENT 2 CAMERE, MARA?EI 29.000 ** Pre? Redus de la 35.000 la 29.000 **Caracteristici principale:** * **Tip:** apartament 2 camere, decomandat * **Etaj:** 4, **acoperit cu pod** * **Suprafa?a utila:** **42,35 mp** + **5,19 mp balcon** * **An construc?ie:** 1984 * **Stare:** **DE RENOVAT** * **Orientare:** sud apartament **insorit, luminos** * **Blocul nu este la varianta!** **Avantaje:** * Pozi?ionare buna in zona Mara?ei-Regal Pe interior * Compartimentare practica ?i balcon generos * Posibilitatea de a-l amenaja dupa propriul gust **Pre? ini?ial 35.000 **Contact ?i detalii:** **Sediul Agen?iei Fast Imobiliare** Str. M. Eminescu, Bl. D6, Ap. 39 ID anun? : 1757523257
Citește mai mult Citește mai puțin
Confort 1 Decomandat Zonă de deal / munte

Detalii apartament

ID anunț: 1709599 Actualizat în: 25 Martie 2026
Nr. camere: 2
Suprafață utilă: 43 mp
Suprafață utilă totală: 43 mp
Compartimentare: Decomandat
Confort: 1
Etaj: Parter
An construcție: 1983

Istoric preț

Facilități

Utilități
Apă

Proprietăți similare

Apartament cu 2 camere semidecomandat în Dărmănești
31.000 €
Piatra-Neamț, Dărmănești
2 camere
36 mp
Etaj 4
Apartament cu 2 camere semidecomandat, mobilat în Central
29.800 €
Județul Neamț, Roman
2 camere
44 mp
Etaj 4
Apartament cu 2 camere nedecomandat în Central
31.800 €
Județul Neamț, Roman
2 camere
42 mp
Etaj 3
Apartament cu 3 camere semidecomandat în Central
31.000 €
Județul Neamț, Bicaz
3 camere
Etaj 3
Apartament cu 2 camere în Central
29.900 €
Județul Neamț, Roman
2 camere
40 mp
Apartament cu 2 camere decomandat în Bodești
30.000 €
Județul Neamț, Bodești
2 camere
47 mp
Etaj 1
Apartament cu 3 camere decomandat în Central
30.000 €
Județul Neamț, Bicaz
3 camere
60 mp
Etaj 3
Apartament cu 2 camere decomandat în Central
26.500 €
Județul Neamț, Roman
2 camere
38 mp
Etaj 3

Abonează-te la newsletter să fii primul care primește cele mai noi recomandări de proprietăți și sfaturi de la experți.