Apartament 2 camere Ploiesti, Mihai Bravu

120.000 €

Păuleşti, Judeţul Prahova

Nr. camere:
2
Suprafață utilă:
58 mp
Etaj:
2 / 2
Nr. niveluri:
2

Descriere apartament

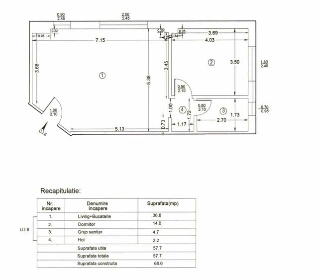
Apartament 2 camere de vanzare Ploiesti, Str. Mihai Bravu nr. 69-71 Va propunem spre vanzare un apartament modern cu 2 camere, situat intr-un imobil nou, amplasat pe Str. Mihai Bravu nr. 69-71, in Ploiesti. Locuinta are o suprafata utila de 58 mp si este conceputa pentru a oferi confort, eficienta energetica si posibilitatea personalizarii dupa preferintele viitorului proprietar. Caracteristici principale: Suprafata utila: 58 mp Compartimentare: 2 camere Incalzire prin centrala proprie + incalzire in pardoseala Tamplarie exterioara Salamander, 7 camere, geam tripan Finisajele se realizeaza la alegerea clientului, cu materialele dorite Imobil: Regim de inaltime: S+P+2E Structura pe cadre de beton, compartimentari din caramida Subsol prevazut cu adapost ALA Casa scarii finisata cu granit si balustrada din inox Beneficii incluse in pret: Boxa la subsol de 10 mp Sistem fotovoltaic propriu (3 kW) cu invertor Loc de parcare suprateran Pret: 120.000 euro Apartamentul este ideal atat pentru locuit, cat si pentru investitie, oferind un standard ridicat de calitate si posibilitatea de personalizare completa. Pentru mai multe detalii sau programarea unei vizionari, nu ezitati sa ne contactati! Ionescu Mihai - 07******63
Citește mai mult Citește mai puțin
Semidecomandat

Detalii apartament

ID anunț: 4013131 Actualizat în: 30 Martie 2026
Nr. camere: 2
Suprafață utilă: 58 mp
Suprafață utilă totală: 58 mp
Compartimentare: Semidecomandat
Etaj: Etaj 2 / 2
Regim înălțime: P+2E

Istoric preț

Puncte de interes

Școală
education
Toma Socolescu
Învățământ aprox. 596 m
Recreere
restaurants
Perla
Restaurante aprox. 506 m
parks
Parc
Recreere aprox. 686 m
parks
Teren sportiv
Recreere aprox. 808 m
shopping
Supermarket Maya
Supermarket/Mall aprox. 864 m

Proprietăți similare

Apartament cu 2 camere decomandat în Păulești
130.000 €
Județul Prahova, Păulești
2 camere
52 mp
Etaj 2
Apartament cu 2 camere decomandat, mobilat în Păulești
108.000 €
Județul Prahova, Păulești
2 camere
57 mp
Etaj 2 / 2
Apartament cu 2 camere decomandat în Păulești
109.000 €
Județul Prahova, Păulești
2 camere
57 mp
Etaj 2 / 2
Apartament cu 3 camere în Păulești
114.990 €
Județul Prahova, Păulești
3 camere
78 mp
Etaj 2 / 2
Apartament cu 4 camere decomandat în Câmpina
115.000 €
Județul Prahova, Câmpina
4 camere
93 mp
Etaj 3 / 4
Apartament cu 2 camere semidecomandat în Mihai Bravu
120.000 €
Ploiești, Mihai Bravu
2 camere
58 mp
Etaj 2
Apartament cu 4 camere decomandat, mobilat în Valea Alba
129.000 €
Județul Prahova, Bușteni
4 camere
96 mp
Etaj 1 / 1
Apartament cu 2 camere decomandat în Valea Alba
109.500 €
Județul Prahova, Bușteni
2 camere
73 mp
Parter
Apartament cu 2 camere decomandat, mobilat în Albert
123.000 €
Ploiești, Albert
2 camere
44 mp
Etaj 1 / 3

Abonează-te la newsletter să fii primul care primește cele mai noi recomandări de proprietăți și sfaturi de la experți.