PROPRIETAR. Apartament 4 camere, Palazu Mare

200.000 €

Palazu Mare, Judeţul Constanţa

Nr. camere:
4
Suprafață utilă:
82 mp
Etaj:
1

Descriere apartament

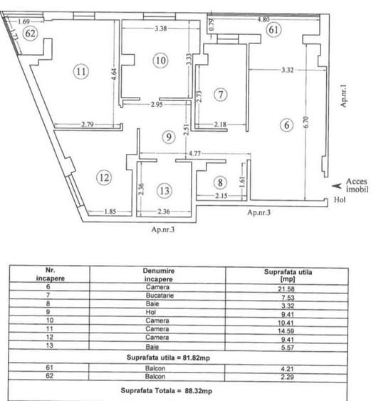
Apartament de 82 mp in Palazu Mare, Constanta, situat la etajul 1 al unui bloc cu 3 etaje. Acesta dispune de 4 camere si o bucatarie separata. Iti ofera un balcon si toate dotarile necesare: mobilier, masina de spalat, frigider, cuptor si televizor. Incalzirea este pe gaz, iar apartamentul beneficiaza de aer conditionat pentru confortul tau. Loc de parcare inclus in pret!!!Locatia este excelenta, aproape de:Magazine si supermarketuri: Carrefour, Mega Image, ProfiUnitati de invatamant: Gradinita Kidoera, Sectia de pregatire marinareascaTransport public: Statia Barbu Catargiu la doar 183 mServicii medicale: Spitalul Clinic de PneumoftiziologieRestaurante: Papa Ricardo, Burger KingCentre sportive: Baza nautica RATCMall-uri: TOM, VIVO!Daca te intereseaza aceasta proprietate, nu ezita sa ne contactezi pentru detalii suplimentare!
Citește mai mult Citește mai puțin

Detalii apartament

ID anunț: 3423474 Actualizat în: 02 Aprilie 2026
Nr. camere: 4
Suprafață utilă: 82 mp
Suprafață utilă totală: 82 mp
Etaj: Etaj 1

Istoric preț

Puncte de interes

Mijloace transport
transport
Statia Carrefour, autobuzele 100C, 43C
Mijloace transport aprox. 807 m
transport
Carrefour [43C 100C]
Mijloace transport aprox. 866 m
transport
Sere[3 43C 100C]
Mijloace transport aprox. 1120 m
transport
Sere[3 43C 100C]
Mijloace transport aprox. 1228 m
Școală
education
Baza nautica UMC
Învățământ aprox. 1404 m
education
Scoala Nr. 14
Învățământ aprox. 1445 m
education
Şcoala cu Clasele I-VIII Nr.14
Învățământ aprox. 1448 m
education
Gradinita Nr.39
Învățământ aprox. 1449 m
Recreere
shopping
Carrefour
Supermarket/Mall aprox. 656 m
shopping
Centrul Comercial Tom
Supermarket/Mall aprox. 708 m
parks
Parc
Recreere aprox. 1462 m
restaurants
Taverna Sarbului
Restaurante aprox. 1603 m

Proprietăți similare

Apartament cu 3 camere decomandat în Palazu Mare
197.000 €
Județul Constanța, Palazu Mare
3 camere
121 mp
Etaj 4 / 4
Apartament cu 3 camere în Palazu Mare
185.000 €
Județul Constanța, Palazu Mare
3 camere
115 mp
Etaj 5
Apartament cu 4 camere decomandat, mobilat în Nord
215.000 €
Județul Constanța, Mamaia
4 camere
101 mp
Etaj 4
Apartament cu 3 camere decomandat în Ultracentral
205.000 €
Constanța, Ultracentral
3 camere
167 mp
Etaj 1
Apartament cu 2 camere, mobilat în Nord
200.000 €
Județul Constanța, Mamaia
2 camere
50 mp
Parter / 5
Apartament cu 2 camere decomandat, mobilat în Tomis Nord
190.000 €
Constanța, Tomis Nord
2 camere
62 mp
Etaj 1
Apartament cu 4 camere decomandat în Central
200.000 €
Constanța, Central
4 camere
127 mp
Etaj 1 / 3
Apartament cu 3 camere semidecomandat, mobilat în Capitol
220.000 €
Constanța, Capitol
3 camere
81 mp
Etaj 5
Apartament cu 3 camere în Tomis Nord
220.000 €
Constanța, Tomis Nord
3 camere
95 mp
Etaj 1

Abonează-te la newsletter să fii primul care primește cele mai noi recomandări de proprietăți și sfaturi de la experți.