Apartament 3 camere | zona Maramures | Parc Unirii | Finalizat | Comision 0

€ 91.000 + TVA

Otopeni, Judeţul Ilfov

Nr. camere:
3
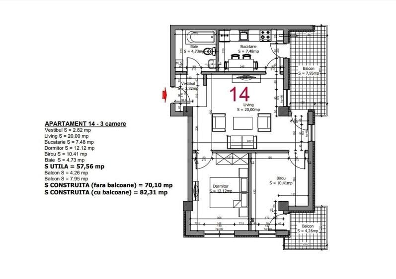
Suprafață utilă:
70 mp
Etaj:
3 / 3
An construcție:
2024
Nr. niveluri:
3

Descriere

Raportează anunț

Apartament 3 camere | zona Maramures | Parc Unirii | Finalizat | Comision 0

Ansamblu nou, situat in imediata vecinatete a Complexului Sportiv de Natatie Otopeni si Parcului Unirii din Strada Maramures. Oasului Residence , revine pe piata imobiliara din Otopeni cu un proiect nou, inedit si cu oferte de top, valabile pentru primele apartamente si numai in stadiul incipient al constructiei. Ansamblul rezidential este situat intr-o zona care iti ofera accesul rapid la punctele de interes din oras, cat si din afara lui. Proiectul va cuprinde un total de 5 blocuri cu regim de inaltime D+P+3, avand unitati locative precum garsoniere, 2,3 camere si este amplasat pe o suprafata generoasa, de aproape 7.000 de mp. Complexul dispune de multiple beneficii majore , loc de joaca pentru copii, accesul imediat la bazinul de inot, precum si scoli, gradinite care se afla pe o arie de aproape 2 kilometri. Ansamblul Rezidential Etalon 2 este alegerea perfecta pentru tine si familia ta! Ca si facilitate intalnim: · Locuri de parcare; · Acces facil; · Locuri de parcare pentru vizitatori; · Aproape de noua linie de metrou; · Supermarketuri si magazine in apropiere, Lidl, Mega Image, MyAuchan; Piata · Noul parc la 200 m de complex. . Statie Ratb 10 minute .Acees 2minute DNCB si DN 1 . Racordare la canalizare Finisaje · incalzaire in pardoseala · tamplarie Salamander, cu geam dublu 44mm low-e 4 anotimpuri cu tamplarie alba. · prize si intrerupatoare modulare · gresie, faianta, parchet · usi interior MDF · usa exterior metalica - · centrala termica proprie 24kw · obiecte sanitare Bloc C1 - Detalii constructie: · D+P+2+M · Finalizare Martie 2024 · Fundatia radier general · Constructie: cadre beton armat si caramida, beton B350 (stalpi, diafragme, grinzi, plansee), · Fier: PC52 Targoviste · Caramida Porotherm: exterior 25 cm, intre apartamente 20 cm,intre camere 12,5 cm + tencuiala · Izolatie exterioara polistiren Eps 70 de 10 cm + tencuiala decorativa structurata. Termen finalizare Ianuarie 2024 Preturile afisate nu cuprind TVA Locul de parcare este inclus in pret. Preturile difera in functie de tipul de apartament
Citește mai mult Citește mai puțin
ID anunț: 234249 Actualizat în: 17 Noiembrie 2025
Nr. camere: 3
Suprafață utilă: 70 mp
Suprafață utilă totală: 70 mp
Compartimentare: Decomandat
Confort: 1
Etaj: Etaj 3 / 3
Nr. băi: 1
An construcție: 2024
Regim înălțime: P+3E

Istoric preț

Utilități

Utilități
Apă Gaze Canalizare
Facilități
Terasă Balcon

Proprietăți similare

Apartament cu 2 camere decomandat în Central
€ 82.650 + TVA
Județul Ilfov, Otopeni
2 camere
45 mp
Etaj 2 / 3
Apartament cu 2 camere semidecomandat în Central
€ 90.900
Județul Ilfov, Otopeni
2 camere
54 mp
Etaj 1 / 3
Apartament cu 2 camere semidecomandat în Central
€ 84.500
Județul Ilfov, Otopeni
2 camere
62 mp
Parter / 3
Apartament cu 2 camere semidecomandat în Central
€ 90.900 + TVA
Județul Ilfov, Otopeni
2 camere
54 mp
Etaj 1
Apartament cu 2 camere semidecomandat în Central
€ 98.100
Județul Ilfov, Otopeni
2 camere
70 mp
Etaj 1
Apartament cu 2 camere semidecomandat în Central
€ 82.100
Județul Ilfov, Otopeni
2 camere
52 mp
Parter
Apartament cu 2 camere semidecomandat, mobilat în Central
€ 95.000 + TVA
Județul Ilfov, Otopeni
2 camere
62 mp
Etaj 1
Apartament cu 2 camere semidecomandat în Central
€ 84.000 + TVA
Județul Ilfov, Otopeni
2 camere
50 mp
Etaj 1 / 3
Apartament cu 2 camere decomandat în Central
€ 95.000
Județul Ilfov, Otopeni
2 camere
41 mp
Etaj 3

Abonează-te la newsletter să fii primul care primește cele mai noi recomandări de proprietăți și sfaturi de la experți.