Apartament 2 camere | Ultracentral

110.000 €

Ultracentral, Oradea

Nr. camere:
2
Suprafață utilă:
60 mp
Etaj:
1
An construcție:
1896

Descriere apartament

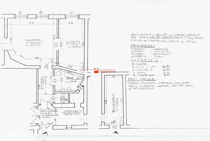
Va propunem spre achizitie un apartament situat la etajul 1 al unei cladiri istorice ridicate in 1905, in centrul Oradiei un spatiu de 57 mp utili, completat de o boxa de 10 mp la subsol, care ofera cadrul ideal pentru o renovare integrala si o reinterpretare completa, dupa propria viziune. Apartamentul pastreaza elementele definitorii ale arhitecturii de inceput de secol XX: tavane inalte, ferestre generoase si o structura solida, care permite recompartimentari creative si solutii de design cu adevarat spectaculoase. Orientarea spre bulevard aduce lumina naturala abundenta si vizibilitate, aspect relevant atat pentru rezidential, cat si pentru activitati profesionale compatibile cu imobilul. Pozitionarea ultracentrala asigura acces facil catre Facultatea de Medicina, Colegiul National Emanuil Gojdu, Piata Unirii, linia de tramvai si Parcul 1 Decembrie. Zona este dinamica, bine cotata si apreciata atat pentru locuire, cat si pentru investitii destinate inchirierii. Desi necesita renovare completa, acest apartament reprezinta o baza valoroasa pentru un proiect personalizat: poate deveni o locuinta eleganta cu aer clasic, un apartament boutique pentru inchiriere, un birou reprezentativ pentru profesii liberale sau un spatiu de consultanta cu expunere excelenta.
Citește mai mult Citește mai puțin

Detalii apartament

Actualizat în: 11 Aprilie 2026 ID anunț: 1322606
Nr. camere: 2
Suprafață utilă: 60 mp
Suprafață utilă totală: 60 mp
Etaj: Etaj 1
An construcție: 1896

Istoric preț

Puncte de interes

Mijloace transport
transport
Piata 1 Decembrie
Mijloace transport aprox. 33 m
transport
Emanuil Gojdu
Mijloace transport aprox. 250 m
transport
Primarie
Mijloace transport aprox. 377 m
transport
Casa de Cultura
Mijloace transport aprox. 382 m
Școală
education
Scoala Generala
Învățământ aprox. 561 m
education
Colegiul National Mihai Eminescu
Învățământ aprox. 746 m
education
Universitatea Crestina Partium - Cladirea Sulyok
Învățământ aprox. 956 m
education
Universitatea Crestina Partium - Cladirea Partium
Învățământ aprox. 1006 m
Recreere
restaurants
Scorillo
Restaurante aprox. 29 m
parks
Parc Copii
Recreere aprox. 75 m
shopping
Billa
Supermarket/Mall aprox. 503 m
shopping
Oradea Plaza
Supermarket/Mall aprox. 516 m

Proprietăți similare

Apartament cu 2 camere decomandat, mobilat în Ultracentral
109.000 €
Oradea, Ultracentral
2 camere
46,45 mp
Parter
Apartament cu 3 camere în Ultracentral
105.000 €
Oradea, Ultracentral
3 camere
59 mp
Parter
Apartament cu 2 camere în Ultracentral
119.500 €
Oradea, Ultracentral
2 camere
72,8 mp
Etaj 1
Apartament cu 3 camere decomandat în Ultracentral
100.000 €
Oradea, Ultracentral
3 camere
61 mp
Parter
Apartament cu 3 camere semidecomandat în Ultracentral
120.000 €
Oradea, Ultracentral
3 camere
58 mp
1980
Apartament cu 2 camere semidecomandat în Ultracentral
103.800 €
Oradea, Ultracentral
2 camere
57 mp
Etaj 1
Apartament cu 4 camere decomandat în Ultracentral
107.800 €
Oradea, Ultracentral
4 camere
90 mp
Parter
Apartament cu 2 camere în Ultracentral
114.500 €
Oradea, Ultracentral
2 camere
66,04 mp
Etaj 1
Apartament cu 3 camere semidecomandat, mobilat în Ultracentral
99.900 €
Oradea, Ultracentral
3 camere
67 mp
Demisol

Abonează-te la newsletter să fii primul care primește cele mai noi recomandări de proprietăți și sfaturi de la experți.