Apartament cu 2 camere, tip Q

97.900 €

Cantemir, Oradea

Nr. camere:
2
Suprafață utilă:
55 mp
Etaj:
3 / 4
Nr. niveluri:
4

Descriere apartament

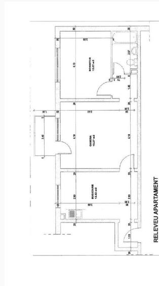
Apartament cu 2 camere, tip Q, semidecomandat, disponibil la etajul 3 din 4, bloc cu acoperis, in cartierul Cantemir, pe strada Feldiarei.Apartament compus din: 2 camere, balcon, baie, bucatarie, hol.Imobilul este in zona foarte buna, aproape deStatia de tramvai Ceyrat, Lidl, universitate din Oradea, Gradinita cu program prelungit nr. 46, Parcul 22 decembrie si alte puncte de interes.Apartamentul a fost renovat recent schimbata instalatia electrica si sanitara.Dispune de geamuri termopan, gresie si faianta, parchet, usi interioare, se vinde mobilat si prezent, apartamentul este inchiriat, ceea ce il face o oportunitate atractiva pentru investitie, cu posibilitatea de a prelua direct chiriasii existenti.Suprafata utila: 52.5mp + 3mp balconPret: 97 900Euro.
Citește mai mult Citește mai puțin
Confort 1 Semidecomandat

Detalii apartament

ID anunț: 3226209 Actualizat în: 27 Aprilie 2026
Nr. camere: 2
Suprafață utilă: 55 mp
Suprafață utilă totală: 55 mp
Compartimentare: Semidecomandat
Confort: 1
Etaj: Etaj 3 / 4
Nr. băi: 1
Regim înălțime: P+4E

Istoric preț

Puncte de interes

Mijloace transport
transport
Muntele Gaina
Mijloace transport aprox. 853 m
transport
Dimitrie Cantemir
Mijloace transport aprox. 866 m
transport
Piata Cetatii
Mijloace transport aprox. 913 m
transport
Casa de Cultura
Mijloace transport aprox. 1100 m
Școală
education
Partenie Cosma
Învățământ aprox. 949 m
education
Universitatea Oradea
Învățământ aprox. 984 m
education
Scoala Sportiva
Învățământ aprox. 1153 m
education
Scoala Generala
Învățământ aprox. 1446 m
Recreere
parks
Parc
Recreere aprox. 269 m
restaurants
Life Club
Restaurante aprox. 674 m
shopping
Oradea Plaza
Supermarket/Mall aprox. 914 m
shopping
Billa
Supermarket/Mall aprox. 920 m

Proprietăți similare

Apartament cu 4 camere în Cantemir
89.800 €
Oradea, Cantemir
4 camere
74 mp
Etaj 4
Apartament cu 2 camere decomandat în Cantemir
96.500 €
Oradea, Cantemir
2 camere
38 mp
Etaj 1
Apartament cu 3 camere semidecomandat în Cantemir
97.000 €
Oradea, Cantemir
3 camere
64 mp
Etaj 4
Apartament cu 3 camere decomandat în Cantemir
98.000 €
Oradea, Cantemir
3 camere
65 mp
Etaj 4 / 4
Apartament cu 3 camere decomandat în Cantemir
95.000 €
Oradea, Cantemir
3 camere
72 mp
Etaj 4 / 4
Apartament cu 2 camere în Cantemir
103.000 €
Oradea, Cantemir
2 camere
53 mp
Etaj 3
Apartament cu 3 camere semidecomandat în Cantemir
90.000 €
Oradea, Cantemir
3 camere
76 mp
Etaj 2
Apartament cu 3 camere decomandat în Cantemir
95.000 €
Oradea, Cantemir
3 camere
64 mp
Etaj 4 / 4
Apartament cu 2 camere decomandat în Cantemir
91.000 €
Oradea, Cantemir
2 camere
49 mp
Etaj 1 / 4

Abonează-te la newsletter să fii primul care primește cele mai noi recomandări de proprietăți și sfaturi de la experți.