Apartament 3 camere Centru

145.000 €

Năvodari, Judeţul Constanţa

Nr. camere:
3
Suprafață utilă:
87 mp
Etaj:
3
An construcție:
1990

Descriere apartament

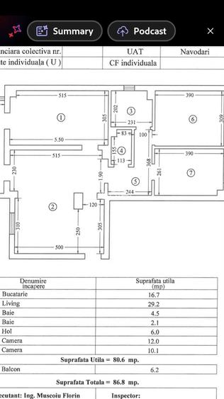
Acest apartament de 3 camere, construit intre 1990 si 2000, are o suprafata utila de 87 mp. Este decomandat si se afla la etajul 3. Apartamentul dispune de doua bai, o bucatarie separata si un balcon. Este ideal pentru familii sau pentru cei care apreciaza confortul. Locatia este foarte convenabila, fiind aproape de Scoala 1 , Scoala 2 si Liceu (2min) Astfel, ai acces usor la transportul in comun si la diverse facilitati Kaufland,Penny nou (2min) Se vinde mobilat! Contact doar whatssapp
Citește mai mult Citește mai puțin
Decomandat Zonă de litoral

Detalii apartament

ID anunț: 4075565 Actualizat în: 04 Aprilie 2026
Nr. camere: 3
Suprafață utilă: 87 mp
Suprafață utilă totală: 87 mp
Compartimentare: Decomandat
Etaj: Etaj 3
An construcție: 1990

Istoric preț

Puncte de interes

Mijloace transport
transport
fosta gară Năvodari
Mijloace transport aprox. 1500 m
transport
Petromidia - Remiza CFU
Mijloace transport aprox. 1623 m
transport
Petromidia - Expediţie
Mijloace transport aprox. 1768 m
transport
Petromidia - Rampă automată produse albe şi negre
Mijloace transport aprox. 1847 m
Recreere
restaurants
CHERHANA TASAUL
Restaurante aprox. 1208 m
parks
Teren de Sport
Recreere aprox. 1303 m
parks
Teren de sport
Recreere aprox. 1346 m
restaurants
Restaurant Delfinul
Restaurante aprox. 1481 m

Proprietăți similare

Apartament cu 2 camere decomandat, mobilat în Central
132.000 €
Județul Constanța, Năvodari
2 camere
48,2 mp
Etaj 6
Apartament cu 2 camere decomandat în Central
139.990 €
Județul Constanța, Năvodari
2 camere
56 mp
Etaj 2
Apartament cu 2 camere semidecomandat în Central
159.000 €
Județul Constanța, Năvodari
2 camere
78 mp
Etaj 2
Apartament cu 2 camere în Central
157.000 €
Județul Constanța, Năvodari
2 camere
46,2 mp
Etaj 1
Apartament cu 2 camere decomandat în Central
145.000 €
Județul Constanța, Năvodari
2 camere
47 mp
2018
Apartament cu 2 camere în Central
144.000 €
Județul Constanța, Năvodari
2 camere
55 mp
Etaj 2
Apartament cu 2 camere în Central
141.900 €
Județul Constanța, Năvodari
2 camere
50,6 mp
Etaj 3
Apartament cu 4 camere decomandat în Central
155.000 €
Județul Constanța, Năvodari
4 camere
85 mp
Etaj 1
Apartament cu 2 camere decomandat în Central
154.900 €
Județul Constanța, Năvodari
2 camere
46,9 mp
Etaj 6

Abonează-te la newsletter să fii primul care primește cele mai noi recomandări de proprietăți și sfaturi de la experți.