Apartament Spațios Renovat Premium

110.000 €

Nădlac, Judeţul Arad

Nr. camere:
4
Suprafață utilă:
104 mp
Etaj:
2 / 4
Nr. niveluri:
4

Descriere apartament

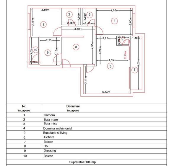
Descoperiți rafinamentul și confortul unui apartament (4 camere) renovat, situat în centrul orașului Nădlac, str. Victoriei, bloc A, nr. 51, ap. 5, etaj 2, jud. Arad. O combinație perfectă între un design modern și facilități premium. După renovare nu a fost locuit. Cu o suprafață de 104 metri pătrați, acest refugiu spațios include: - Living luminos perfect pentru relaxare sau divertisment - cu ieșire la un balcon generos spre parcul mic; - Dormitor confortabil pentru odihnă; - Cameră pentru copii; - Cameră (Dressing) - instalație pentru mașină de spălat, uscător și călcător; - Bucătărie cu cămară; - 2 Băi - una mare și una mai mică pentru confort sporit; - Balcon Mare - cu vedere impresionantă asupra centrului orașului; - Garaj: pentru mașină și depozitare în curtea blocului. Apartamentul este racordat și echipat cu o centrală nouă pe gaz. Pentru reducerea costurilor de întreținere au fost instalate două sisteme inovative de încălzire în pardoseală, electric și termic, iar pentru o eficiență ridicată fiecare încăpere este prevăzută cu termostat.Ușile și tâmplăria din lemn stratificat cu feronerie Siegenia Titan, pervaze granit, oferă o f. bună etanșare și siguranță ridicată. Prețul este de 110.000 euro - negociabil. Contact -
Citește mai mult Citește mai puțin
Decomandat

Detalii apartament

ID anunț: 1117271 Actualizat în: 14 Februarie 2026
Nr. camere: 4
Suprafață utilă: 104 mp
Suprafață utilă totală: 104 mp
Compartimentare: Decomandat
Etaj: Etaj 2 / 4
Nr. băi: 2
Regim înălțime: P+4E

Istoric preț

Puncte de interes

Recreere
parks
Teren Tenis
Recreere aprox. 1003 m
parks
Teren Fotbal
Recreere aprox. 1089 m

Proprietăți similare

Apartament cu 4 camere decomandat în Nădlac
111.000 €
Județul Arad, Nădlac
4 camere
132 mp
Etaj 3
Apartament cu 3 camere decomandat, mobilat în Pârneava
119.900 €
Arad, Pârneava
3 camere
116 mp
Etaj 3
Apartament cu 4 camere decomandat în Aurel Vlaicu
99.999 €
Arad, Aurel Vlaicu
4 camere
90 mp
Etaj 4
Apartament cu 4 camere în Aurel Vlaicu
119.500 €
Arad, Aurel Vlaicu
4 camere
85 mp
Etaj 8
Apartament cu 2 camere decomandat, mobilat în Central
119.800 €
Arad, Central
2 camere
53 mp
Parter
Apartament cu 3 camere decomandat în Malul Mureșului
109.900 €
Arad, Malul Mureșului
3 camere
76 mp
Etaj 2
Apartament cu 4 camere semidecomandat în Ultracentral
99.000 €
Arad, Ultracentral
4 camere
122 mp
Etaj 1
Apartament cu 2 camere decomandat în UTA
120.000 €
Arad, UTA
2 camere
60,25 mp
Etaj 7
Apartament cu 3 camere decomandat în Aurel Vlaicu
100.000 €
Arad, Aurel Vlaicu
3 camere
101 mp
Etaj 2

Abonează-te la newsletter să fii primul care primește cele mai noi recomandări de proprietăți și sfaturi de la experți.