Apartament 3 camere decomandat spatios Medgidia, zona VS-uri

73.000 €

Medgidia, Judeţul Constanţa

Nr. camere:
3
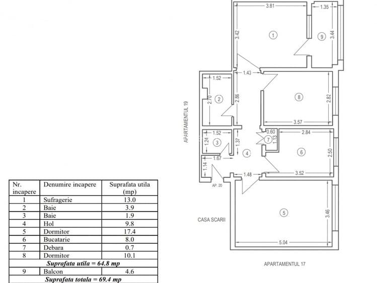
Suprafață utilă:
69,6 mp
Etaj:
4 / 4
An construcție:
1980
Nr. niveluri:
4

Descriere apartament

Apartament, într-o zonă liniștită din Medgidia Locuința este amplasată la etajul 4 din 4 al unui bloc solid, oferind lumină naturală pe tot parcursul zilei și o priveliște deschisă asupra cartierului. Dispune de o compartimentare decomandată, gândită pentru confort și intimitate: living spațios, două dormitoare balcon 2 bai și 1 bucătărie separata Apartamentul necesită renovare, oferind noului proprietar libertatea de a-l amenaja exact după propriul gust și stil. Avantaje zonă: Acces rapid către centre comerciale, magazine locale, școli și stații de autobuz. Zonă liniștită, cu spații verzi între blocuri Ideal pentru familie, cuplu tânăr sau investiție pe termen lung. Un apartament cu potențial excelent, la un preț corect, într-un oraș cu istorie
Citește mai mult Citește mai puțin
Confort 1 Decomandat Centrală proprie Necesită renovare

Detalii apartament

ID anunț: 3961428 Actualizat în: 25 Martie 2026
Nr. camere: 3
Suprafață utilă: 69,6 mp
Suprafață utilă totală: 69,6 mp
Compartimentare: Decomandat
Confort: 1
Etaj: Etaj 4 / 4
Nr. băi: 2
An construcție: 1980
Regim înălțime: P+4E

Istoric preț

Facilități

Pereți
Vopsea lavabilă Faianță
Podele
Parchet Gresie
Stare interior
Necesită renovare
Izolații termice
Exterior
Utilități
Curent Apă Canalizare Gaze
Sistem încălzire
Centrală proprie

Puncte de interes

Recreere
parks
Teren sportiv
Recreere aprox. 163 m
parks
Parcul Posta
Recreere aprox. 1119 m
parks
Parcul Central
Recreere aprox. 1123 m
parks
Stadionul I.M.U.M.
Recreere aprox. 1489 m

Proprietăți similare

Apartament cu 2 camere decomandat în Medgidia
70.000 €
Județul Constanța, Medgidia
2 camere
47 mp
Etaj 4
Apartament cu 3 camere semidecomandat în Medgidia
70.000 €
Județul Constanța, Medgidia
3 camere
58 mp
Etaj 4
Apartament cu 2 camere decomandat în Central
72.000 €
Județul Constanța, Medgidia
2 camere
52 mp
Etaj 2 / 2
Apartament cu 3 camere decomandat în Central
70.000 €
Județul Constanța, Medgidia
3 camere
55 mp
Etaj 4
Apartament cu 3 camere decomandat în Central
73.000 €
Județul Constanța, Medgidia
3 camere
69,6 mp
Etaj 4 / 4
Apartament cu 2 camere decomandat în Nord
70.000 €
Județul Constanța, Medgidia
2 camere
55 mp
Parter
Apartament cu 3 camere decomandat în Central
73.000 €
Județul Constanța, Medgidia
3 camere
70 mp
Etaj 4 / 4
Apartament cu 2 camere semidecomandat în Central
75.000 €
Județul Constanța, Medgidia
2 camere
44 mp
Etaj 1
Apartament cu 2 camere în Central
72.000 €
Județul Constanța, Medgidia
2 camere
52 mp
Etaj 2

Abonează-te la newsletter să fii primul care primește cele mai noi recomandări de proprietăți și sfaturi de la experți.