Apartament 2 camere – Ultracentral Medgidia, lângă Primărie

63.000 €

Medgidia, Judeţul Constanţa

Nr. camere:
2
Suprafață utilă:
40 mp
Etaj:
3 / 3
Nr. niveluri:
3

Descriere apartament

Apartament situat în zona 0 a orașului Medgidia, chiar lângă Primărie – una dintre cele mai căutate și apreciate locații din oraș. Poziția este excelentă, oferind acces facil către școli, grădinițe, magazine, instituții publice și toate facilitățile urbane. Apartamentul este compus din 2 camere nedecomandate, situat la etajul 3/3 al unui bloc solid din cărămidă, cunoscut pentru rezistență și confort termic. Locuința necesită renovare, ceea ce oferă viitorului proprietar posibilitatea de a o amenaja după propriul gust și stil. Dispune de centrală termică pe gaz, ceea ce asigură independență și eficiență energetică. ✅ Centrală proprie pe gaz ✅ Bloc din cărămidă ✅ Poziție ultracentrală – lângă Primărie, școli și magazine ✅ Ideal pentru locuință personală sau investiție închiriabilă 📞 Pentru mai multe detalii și programarea unei vizionări, contactează-ne.
Citește mai mult Citește mai puțin
Semidecomandat Centrală proprie Necesită renovare

Detalii apartament

ID anunț: 4231924 Actualizat în: 23 Aprilie 2026
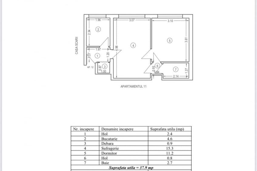
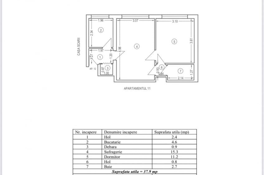
Nr. camere: 2
Suprafață utilă: 40 mp
Suprafață utilă totală: 40 mp
Compartimentare: Semidecomandat
Etaj: Etaj 3 / 3
Nr. băi: 1
Regim înălțime: P+3E

Istoric preț

Facilități

Utilități
Curent Apă Canalizare Gaze
Sistem încălzire
Centrală proprie
Stare interior
Necesită renovare

Puncte de interes

Recreere
parks
Parcul Central
Recreere aprox. 158 m
parks
Parcul Posta
Recreere aprox. 358 m
parks
Teren sportiv
Recreere aprox. 874 m
parks
Stadionul I.M.U.M.
Recreere aprox. 1349 m

Proprietăți similare

Apartament cu 2 camere semidecomandat în Central
63.000 €
Județul Constanța, Medgidia
2 camere
42 mp
Etaj 1 / 4
Apartament cu 2 camere semidecomandat în Central
59.000 €
Județul Constanța, Medgidia
2 camere
47 mp
Etaj 4
Apartament cu 2 camere semidecomandat în Central
57.000 €
Județul Constanța, Medgidia
2 camere
48 mp
Etaj 4
Apartament cu 2 camere nedecomandat în Ultracentral
63.000 €
Județul Constanța, Medgidia
2 camere
40 mp
Etaj 3 / 3
Apartament cu 3 camere semidecomandat în Central
59.000 €
Județul Constanța, Medgidia
3 camere
50 mp
Etaj 3
Apartament cu 2 camere decomandat în Central
62.000 €
Județul Constanța, Medgidia
2 camere
52 mp
Apartament cu 2 camere nedecomandat în Ultracentral
63.000 €
Județul Constanța, Medgidia
2 camere
40 mp
3E
Apartament cu 3 camere semidecomandat în Central
65.000 €
Județul Constanța, Medgidia
3 camere
59 mp
Etaj 2 / 4
Apartament cu 2 camere decomandat în Central
65.000 €
Județul Constanța, Medgidia
2 camere
49 mp
Etaj 2

Abonează-te la newsletter să fii primul care primește cele mai noi recomandări de proprietăți și sfaturi de la experți.