Apartament 3 camere, decomandat, liber, renovat, etaj 4, proprietar

147.500 €

Tudor Vladimirescu, Iaşi

Nr. camere:
3
Suprafață utilă:
72 mp
Etaj:
4
An construcție:
1997

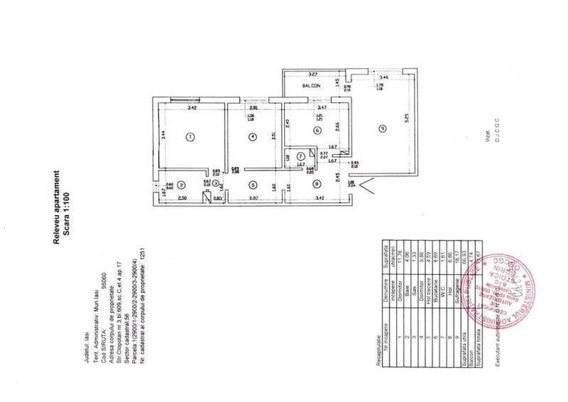
Descriere apartament

Proprietar, apartament liber, renovat, Str. Clopotari nr. 35, Nicolina 2, Iasi. Compartimentare = decomandat, living, 2 dormitoare, 2 bai, bucatarie cu deschidere in balcon inchis. Amplasat pe mijlocul blocului, orientare sud-est. Suprafata utila 71.67 mp, an constructie 1983. Usa intrare metalica Maco. Centrala termica Viessmann, instalatie incalzire cupru. Usi interioare cu furnir din lemn natural - stejar. Ferestre termopan si jaluzele exterioare la camere. Balcon inchis termopan cu intrare din bucatarie. Izolatie exterioara cu termosistem 100 mm. Instalatie electrica refacuta cu prize suplimentare. Parchet laminat 12 mm nou pe hol si in camere. Gresie si faianta in bucatarie, balcon si bai. Acoperis bloc cu sarpanta.
Citește mai mult Citește mai puțin
Decomandat

Detalii apartament

ID anunț: 3998465 Actualizat în: 31 Martie 2026
Nr. camere: 3
Suprafață utilă: 72 mp
Suprafață utilă totală: 72 mp
Compartimentare: Decomandat
Etaj: Etaj 4
An construcție: 1997

Istoric preț

Puncte de interes

Mijloace transport
transport
Statia "Scoala Ioan Ghica", linia 46
Mijloace transport aprox. 173 m
transport
Scoala Ion Ghica
Mijloace transport aprox. 178 m
transport
Tesatura
Mijloace transport aprox. 318 m
transport
Statia "RATP S1", linia 42, 43, 43C, 46
Mijloace transport aprox. 362 m
Școală
education
Facultatea de Constructii Masini
Învățământ aprox. 51 m
education
Facultatea de Constructii de Masini si Management Industrial
Învățământ aprox. 61 m
education
platforma politehnica
Învățământ aprox. 109 m
education
Facultatea de Textile-Pielarie si Management Industrial
Învățământ aprox. 126 m
Recreere
restaurants
Pizzeria Dopo Poco -Take Away
Restaurante aprox. 270 m
parks
Teren sportiv
Recreere aprox. 432 m
shopping
Minimarket Cidma
Supermarket/Mall aprox. 493 m
shopping
BAUMAX-X Iasi
Supermarket/Mall aprox. 527 m

Proprietăți similare

Apartament cu 2 camere, mobilat în Tudor Vladimirescu
145.000 €
Iași, Tudor Vladimirescu
2 camere
57 mp
Etaj 9
Apartament cu 2 camere semidecomandat, mobilat în Tudor Vladimirescu
152.500 €
Iași, Tudor Vladimirescu
2 camere
48 mp
Parter / 2
Apartament cu 2 camere decomandat, mobilat în Tudor Vladimirescu
142.000 €
Iași, Tudor Vladimirescu
2 camere
57 mp
Etaj 9 / 11
Apartament cu 3 camere decomandat, mobilat în Tudor Vladimirescu
139.900 €
Iași, Tudor Vladimirescu
3 camere
64 mp
Etaj 3
Apartament cu 2 camere în Copou
135.000 €
Iași, Copou
2 camere
55 mp
Etaj 5 / 10
Apartament cu 3 camere, mobilat în Nicolina
161.000 €
Iași, Nicolina
3 camere
72 mp
Etaj 2
Apartament cu 3 camere decomandat, mobilat în Nicolina
135.000 €
Iași, Nicolina
3 camere
68 mp
Etaj 3 / 4
Apartament cu 3 camere decomandat, mobilat în Nicolina
140.000 €
Iași, Nicolina
3 camere
70 mp
Etaj 3
Apartament cu 3 camere în Podul de Fier
140.000 €
Iași, Podul de Fier
3 camere
60 mp
Etaj 3 / 4

Abonează-te la newsletter să fii primul care primește cele mai noi recomandări de proprietăți și sfaturi de la experți.