Apartament de vanzare 7 camere Sararie

750.000 €

Sărărie, Iaşi

Nr. camere:
4
Suprafață utilă:
151 mp
Etaj:
2 / 2
Nr. niveluri:
2

Descriere apartament

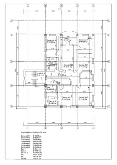
Va propunem spre vanzare un apartament spatios si bine compartimentat, situat la etajul 2 al unei cladiri impunatoare cu patru niveluri (D+P+2E), aflata pe strada Sararie, intr-una dintre cele mai apreciate si linistite zone rezidentiale ale Iasului. Locatia se remarca prin accesul rapid catre puncte de interes, institutii importante, zone verzi si principalele artere ale orasului, oferind un cadru ideal atat pentru locuire, cat si pentru activitati profesionale.Apartamentul are o suprafata de 151,43 mp si dispune de 7 camere luminoase, cu posibilitati multiple de amenajare, fiind potrivit pentru familii numeroase, birouri sau diverse activitati care necesita spatiu generos. Cele 2 bai sunt bine pozitionate, iar holurile largi asigura o circulatie fluenta in interiorul locuintei. Terasa reprezinta un avantaj important, oferind un spatiu placut pentru relaxare sau pentru momente petrecute in aer liber.Cladirea este solid construita, bine intretinuta si se remarca prin arhitectura sa eleganta. Proprietatea include 2 locuri de parcare, un beneficiu esential intr-o zona atat de cautata, precum si cote indivize din imobil, ceea ce adauga valoare suplimentara investitiei. Un avantaj major al proprietatii il reprezinta accesul la terenul de 2.300 m.p. aferent cladirii. Curtea si gradina pot fi folosite, oferind un spatiu verde amplu, ideal pentru relaxare sau activitati in aer liber. Acest beneficiu este rar intalnit in zona si adauga o valoare semnificativa apartamentului.Acest apartament reprezinta o oportunitate excelenta pentru cei care isi doresc o locuinta ampla intr-o zona premium sau pentru profesionisti care cauta un spatiu reprezentativ si bine pozitionat pretabil pentru diverse utilizari.Pret: 750.000 euroPentru mai multe informatii, contactati-ne!
Citește mai mult Citește mai puțin

Detalii apartament

Actualizat în: 24 Aprilie 2026 ID anunț: 1393054
Nr. camere: 4
Suprafață utilă: 151 mp
Suprafață utilă totală: 151 mp
Etaj: Etaj 2 / 2
Regim înălțime: P+2E

Istoric preț

Puncte de interes

Mijloace transport
transport
Statia "Piata Independentei", linia 6b,18,20,28,41,42,43,43c,41b,46
Mijloace transport aprox. 659 m
transport
Piata Independentei
Mijloace transport aprox. 662 m
transport
Statia "Piata Eminescu", linia 6b
Mijloace transport aprox. 682 m
transport
Statia "Piata Eminescu", linia 1,13
Mijloace transport aprox. 693 m
Școală
education
baza de invatamant stomatologic
Învățământ aprox. 151 m
education
Colegiul National Mihai Eminescu - Curtea Domnească din Sărărie
Învățământ aprox. 153 m
education
Scoala Varlaam Mitropolitul
Învățământ aprox. 226 m
education
Gradinita cu program prelugit nr.8
Învățământ aprox. 231 m
Recreere
parks
Teren sportiv
Recreere aprox. 90 m
restaurants
Arte Cafe
Restaurante aprox. 116 m
shopping
Magazinul Casei Tale
Supermarket/Mall aprox. 1019 m
shopping
Supermagazin Copou
Supermarket/Mall aprox. 1098 m

Abonează-te la newsletter să fii primul care primește cele mai noi recomandări de proprietăți și sfaturi de la experți.