3 camere Podu Roș (1001 Articole) | renovat | 2 balcoane | 10 min Palas

128.000 €

Podu Roş, Iaşi

Nr. camere:
3
Suprafață utilă:
72 mp
Etaj:
4 / 8
An construcție:
1971
Nr. niveluri:
8

Descriere apartament

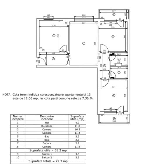
Apartament 3 camere, situat în Podu Roș – bloc 1001 Articole, la etajul 4 din 8. Suprafață utilă: 65.2 mp + 2 balcoane (72.3 mp total) Compartimentare practică, conform releveului atașat (refăcut în 2021). Apartamentul a fost complet renovat în urmă cu câțiva ani și se prezintă în stare foarte bună. Se vinde mobilat și utilat, exact ca în poze. • 2 balcoane închise cu termopan (vedere bulevard + spate) • bucătărie complet utilată • gresie, faianță, parchet • ușă metalică Localizare excelentă: • ~10 minute mers pe jos până la Palas Iași • acces rapid la mijloace de transport (Rond Podu Roș – autobuze 30, 30B; tramvaie 5, 11) • aproape de Colegiul „Emil Racoviță”, școli, bănci (ING, BRD), magazine Ideal atât pentru locuință personală, cât și pentru investiție (zonă cu cerere mare la închiriere). 📌 Acte la zi (cadastru, releveu actualizat) 📌 Tranzacție directă de la proprietar 📌 Nu se acceptă achiziție prin credit bancar
Citește mai mult Citește mai puțin
Confort 1 Semidecomandat Mobilat Termoficare Renovat

Detalii apartament

ID anunț: 4113479 Actualizat în: 09 Aprilie 2026
Nr. camere: 3
Suprafață utilă: 72 mp
Suprafață utilă totală: 72 mp
Compartimentare: Semidecomandat
Confort: 1
Etaj: Etaj 4 / 8
Nr. băi: 1
An construcție: 1971
Regim înălțime: P+8E

Istoric preț

Facilități

Utilități
Apă Canalizare Gaze Supraveghere video
Sistem încălzire
Termoficare
Mobilat
Mobilat
Stare interior
Renovat
Servicii imobil
Administrare Supraveghere video

Puncte de interes

Mijloace transport
transport
Podul Ros
Mijloace transport aprox. 52 m
transport
Statia "Podu Rosu", linia 28,41,41b
Mijloace transport aprox. 93 m
transport
statia "Podu Rosu", linia 19,29
Mijloace transport aprox. 108 m
transport
Podul Ros
Mijloace transport aprox. 138 m
Școală
education
Facultatea de Constructii Iasi
Învățământ aprox. 243 m
education
Facultatea de Constructii si Instalatii
Învățământ aprox. 243 m
education
Gradinita cu program prelungit nr.3
Învățământ aprox. 245 m
education
Scoala Titu Maiorescu
Învățământ aprox. 265 m
Recreere
parks
Parcul Podu Ros-Zona fostului magazin 1001Articole
Recreere aprox. 35 m
restaurants
Prima Food
Restaurante aprox. 41 m
shopping
Minimarket Cidma
Supermarket/Mall aprox. 450 m
shopping
Auchan
Supermarket/Mall aprox. 523 m

Proprietăți similare

Apartament cu 2 camere semidecomandat, mobilat în Podu Roș
129.900 €
Iași, Podu Roș
2 camere
50 mp
Etaj 2
Apartament cu 2 camere în Podu Roș
120.000 €
Iași, Podu Roș
2 camere
69 mp
2019
Apartament cu 2 camere semidecomandat în Podu Roș
119.000 €
Iași, Podu Roș
2 camere
56 mp
Etaj 1
Apartament cu 3 camere semidecomandat, mobilat în Podu Roș
120.000 €
Iași, Podu Roș
3 camere
62 mp
Etaj 1
Apartament cu 3 camere decomandat în Podu Roș
120.000 €
Iași, Podu Roș
3 camere
68 mp
Parter
Apartament cu 3 camere decomandat în Podu Roș
123.900 €
Iași, Podu Roș
3 camere
74 mp
Etaj 1
Apartament cu 3 camere decomandat, mobilat în Podu Roș
123.999 €
Iași, Podu Roș
3 camere
75 mp
Etaj 1 / 8
Apartament cu 3 camere decomandat în Podu Roș
131.900 €
Iași, Podu Roș
3 camere
72 mp
Etaj 3
Apartament cu 2 camere semidecomandat, mobilat în Podu Roș
129.990 €
Iași, Podu Roș
2 camere
52 mp
Etaj 2

Abonează-te la newsletter să fii primul care primește cele mai noi recomandări de proprietăți și sfaturi de la experți.