Apartament 3 camere, decomandat | Pacurari-str. Neculau | 64mp, bloc 1982

125.000 €

Păcurari, Iaşi

Nr. camere:
3
Suprafață utilă:
64 mp
Etaj:
4 / 4
An construcție:
1982
Nr. niveluri:
4

Descriere apartament

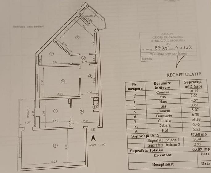
ONor imobiliare va propune spre vanzare un apartament cu 3 camere, model decomandat, cu suprafata totala de 64mp, situat la etajul 4 cu POD (spatiu de depozitare) intr-un bloc din 1982 amplasat pe strada Neculau, zona Pacurari. Strada Neculau este apreciata deoarece fiind in planul doi, are accesibilitate imediata catre Bulervardul principal cat si la Toma Cozma. Accesibilitate imediata spre Copou si Centru. Apartamentul este un model aparte deoarece este decomandat cu camere spatioase, cu spatii de depozitare, 2 balcoane iar baia are aerisirea naturala (geam). Orientarea este Sud-Vest, iar amplasamentul in bloc este pe mijloc. Apartamentul se prezinta modest, acesta fiind inchiriat pana in prezent. Cu toate acestea unele dotari la gasim: -centrala termica; -tamplarie PVC cu geamuri si usi de termopan; -termoizolatie exterioara; -un balcon inchis si unul deschis; -pod cu acces din casa scarii care ofera izolarea apartamentului si poate fi si spatiu de depozitare. Pretul solicitat este de 125.000 euro usor negociabil. Se accepta credit. Pentru mai multe detalii puteti contacta prin apel sau whatapp la O755.9O4.O97.
Citește mai mult Citește mai puțin
Confort 1 Decomandat Parțial mobilat Centrală proprie Bine întreținut (Bună)

Detalii apartament

ID anunț: 3919807 Actualizat în: 22 Martie 2026
Nr. camere: 3
Suprafață utilă: 64 mp
Suprafață utilă totală: 64 mp
Compartimentare: Decomandat
Confort: 1
Etaj: Etaj 4 / 4
Nr. băi: 1
An construcție: 1982
Regim înălțime: P+4E

Istoric preț

Facilități

Pereți
Faianță Var
Podele
Gresie Parchet
Ușă intrare
Parchet Metal PVC
Uși interior
Celulare Panel PVC
Stare interior
Stare bună
Izolații termice
Exterior
Ferestre cu geam termopan
PVC
Contorizare
Contor gaz Apometre
Bucătărie
Parțial utilată Parțial mobilată
Mobilat
Parțial mobilat
Utilități
Gaze Curent Canalizare Apă
Sistem încălzire
Centrală proprie
Amenajare străzi
Asfaltate Betonate Iluminat stradal Mijloace de transport în comun

Puncte de interes

Mijloace transport
transport
Iasi Vest
Mijloace transport aprox. 144 m
transport
Moara 1 Mai
Mijloace transport aprox. 236 m
transport
Moara 1 Mai
Mijloace transport aprox. 267 m
transport
Moara 1 Mai
Mijloace transport aprox. 277 m
Școală
education
Scoala "Ion Creanga"
Învățământ aprox. 241 m
education
Sc Gen Ion Creanga
Învățământ aprox. 261 m
education
Fun Fan - Kids Club
Învățământ aprox. 369 m
education
Scoala "Petru Poni"
Învățământ aprox. 412 m
Recreere
parks
Ciprian Ionascu
Recreere aprox. 91 m
restaurants
Pizza Smile
Restaurante aprox. 166 m
shopping
Profi
Supermarket/Mall aprox. 201 m
shopping
LIDL
Supermarket/Mall aprox. 255 m

Proprietăți similare

Apartament cu 3 camere decomandat în Păcurari
127.000 €
Iași, Păcurari
3 camere
59,77 mp
Etaj 3
Apartament cu 3 camere decomandat în Păcurari
120.000 €
Iași, Păcurari
3 camere
59 mp
Etaj 3
Apartament cu 3 camere în Păcurari
125.000 €
Iași, Păcurari
3 camere
64 mp
Etaj 4
Apartament cu 3 camere decomandat, mobilat în Păcurari
125.000 €
Iași, Păcurari
3 camere
64 mp
Etaj 4
Apartament cu 3 camere decomandat în Păcurari
129.890 €
Iași, Păcurari
3 camere
64 mp
Etaj 3
Apartament cu 3 camere semidecomandat în Păcurari
130.000 €
Iași, Păcurari
3 camere
75 mp
Etaj 3 / 3
Apartament cu 3 camere decomandat, mobilat în Păcurari
125.000 €
Iași, Păcurari
3 camere
57,6 mp
Etaj 4
Apartament cu 3 camere semidecomandat în Păcurari
130.000 € + TVA
Iași, Păcurari
3 camere
65 mp
Etaj 1
Apartament cu 2 camere decomandat, mobilat în Păcurari
115.000 €
Iași, Păcurari
2 camere
60 mp
Etaj 1

Abonează-te la newsletter să fii primul care primește cele mai noi recomandări de proprietăți și sfaturi de la experți.