Nicolina - Apartament 4 camere, mobilat ?i utilat, etaj 1/4

250.000 €

Nicolina, Iaşi

Nr. camere:
4
Suprafață utilă:
94 mp
Etaj:
1 / 4
An construcție:
1990
Nr. niveluri:
4

Descriere apartament

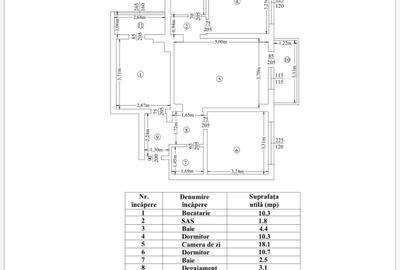
DESTINE IMOBILIARE va prezinta pentru vanzare : Apartament 4 camere decomandat zona Nicolina, la bulevard PRET: 250.000 DETALII DESPRE PROPRIETATE: -APARTAMENT DECOMANDAT, foarte spatios -HOL MARE, acces catre toate incaperile -Suprafata totala: 106,43mp -4 CAMERE fiecare cu spatiu de dormit si BIROU PROPRIU -2 BAI una cu DUS, una fara DUS -2 BALCOANE MARI -BUCATARIE MARE, complet utilata DOTARI: -Masina de spalat vase -Centrala termica PROPRIE (inlocuita in 2025) -INCALZIRE IN PARDOSEALA pe hol -PLITA, CUPTOR -AER CONDITIONAT -TV in bucatarie -Masina de spalat rufe -GEAMURI la baie LOCATIE EXCELENTA: -Vedere directa catre PARC -LIDL Nicolina 3 minute -STATIE AUTOBUZ / TRAMVAI 1 minut pe jos -PALAS MALL 20 minute pe jos LOC DE PARCARE disponibil in parcarea de sub Podul Nicolina (acesta se schita separat la primarie anual, aprox 500 lei) Apartamentul se preda conform fotografiilor si este disponibil pentru MUTARE IMEDIATA. VINO LA VIZIONARE: Contact: Danut Ilinca Cod oferta: P-4729 Id intern: P4729 Confort: 1 Tip imobil: Bloc de apartamente Numar Bai: 2 Nr. locuri parcare: 1
Citește mai mult Citește mai puțin
Decomandat

Detalii apartament

ID anunț: 3657657 Actualizat în: 26 Februarie 2026
Nr. camere: 4
Suprafață utilă: 94 mp
Suprafață utilă totală: 94 mp
Compartimentare: Decomandat
Etaj: Etaj 1 / 4
An construcție: 1990
Regim înălțime: P+4E

Istoric preț

Puncte de interes

Mijloace transport
transport
Statia "Podu de Piatra", linia 2,5
Mijloace transport aprox. 487 m
transport
Statia "Podu de Piatra", linia 19
Mijloace transport aprox. 490 m
transport
Statia "Subpasaj ACB", linia 2,6
Mijloace transport aprox. 516 m
transport
Statia "Subpasaj ACB", linia 6b
Mijloace transport aprox. 520 m
Școală
education
Grup scolar "VIRGIL MADGEARU"
Învățământ aprox. 183 m
education
Scoala de Soferi ProDrive
Învățământ aprox. 209 m
education
Scoala Trei Ierarhi
Învățământ aprox. 387 m
education
Scoala Auto Jordache
Învățământ aprox. 426 m
Recreere
parks
Teren sportiv
Recreere aprox. 51 m
restaurants
Umami
Restaurante aprox. 180 m
shopping
Kaufland (Pavlov)
Supermarket/Mall aprox. 347 m
shopping
Galeriile Ştefan cel Mare
Supermarket/Mall aprox. 367 m

Proprietăți similare

Apartament cu 3 camere decomandat în Nicolina
239.819 € + TVA
Iași, Nicolina
3 camere
141,07 mp
Etaj 9
Apartament cu 4 camere decomandat în Nicolina
250.000 €
Iași, Nicolina
4 camere
110 mp
Etaj 1
Apartament cu 6 camere decomandat, mobilat în Nicolina
250.000 € + TVA
Iași, Nicolina
6 camere
101 mp
Parter / 4
Apartament cu 3 camere decomandat în Nicolina
229.499 €
Iași, Nicolina
3 camere
125 mp
Etaj 9 / 11
Apartament cu 4 camere decomandat, mobilat în Moara de Vânt
228.500 €
Iași, Moara de Vânt
4 camere
98 mp
Etaj 1 / 4
Apartament cu 2 camere circular, mobilat în Copou
247.000 €
Iași, Copou
2 camere
70 mp
Etaj 8
Apartament cu 3 camere decomandat în Piața Unirii
250.000 €
Iași, Piața Unirii
3 camere
97 mp
Etaj 3
Apartament cu 3 camere semidecomandat în Central
250.000 €
Iași, Central
3 camere
64 mp
Etaj 3
Apartament cu 3 camere decomandat, mobilat în Tătărași
244.900 €
Iași, Tătărași
3 camere
75 mp
Etaj 7

Abonează-te la newsletter să fii primul care primește cele mai noi recomandări de proprietăți și sfaturi de la experți.