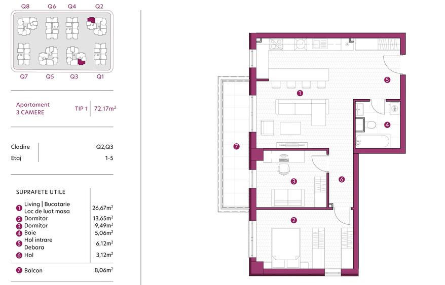
Apartament 3 camere, 72 mp, 118.170 euro, avans minim 15%, GALATA, tva 21 INCLUS

117.941 €

Galata, Iaşi

Nr. camere:
3
Suprafață utilă:
72 mp
Etaj:
2 / 5
An construcție:
2025
Nr. niveluri:
5

Descriere apartament

Apartament 3 camere, 72.17 mp - de la 117.941 euro cu tva 21% INCLUS (in functie de avansul achitat la antecontract) Se accepta plata prin CREDIT BANCAR! Cumparati direct de la dezvoltator! 0% comision de intermediere! 0746 |758| 458 Apartamentul se afla in cel mai nou ansamblu rezidential din zona Galata - sos. Voinesti, cu acces extrem de facil din Nicolina, Cug si Galata, conectat la transportul in comun (trasee autobuz 23 si 502), in imediata apropiere a noului hipermarket Kaufland. Blocurile din complex sunt construite respectand cele mai stricte standarde, pe cadre din beton, cu zidarie din caramida YTONG, termoizolate la exterior cu vata bazaltica. Apartamentele se predau complet finisate, cu centrala termica Ariston in condensare, incalzire in pardoseala, tamplarie PVC Salamander, cu geam tripan 4S, gresie si faianta Delta Studio, parchet 10 mm Classen, usi MDF si bai complet utilate. Complexul va fi amenajat cu spatii verzi, piste de biciclete, preechipare statii de incarcare auto si panouri fotovoltaice. Locurile de parcare - 7000 euro la exterior si 12.000 euro la interior COMISION 0% LA CUMPARARE Pentru mai multe detalii si informatii, consultati reprezentantul de vanzari, Tudor Cojocaru, la tel. 0746 |758| 458
Citește mai mult Citește mai puțin
Confort 1 Semidecomandat Nemobilat Curte comună Aer condiționat Centrală proprie Renovat

Detalii apartament

ID anunț: 397979 Actualizat în: 22 Ianuarie 2026
Nr. camere: 3
Suprafață utilă: 72 mp
Suprafață utilă totală: 72 mp
Compartimentare: Semidecomandat
Confort: 1
Etaj: Etaj 2 / 5
Nr. băi: 1
An construcție: 2025
Regim înălțime: P+5E

Istoric preț

Facilități

Pereți
Faianță Vopsea lavabilă
Podele
Gresie Parchet
Rulouri/Obloane
PVC
Ușă intrare
Parchet Metal PVC
Uși interior
Panel PVC
Stare interior
Renovat
Izolații termice
Exterior
Ferestre cu geam termopan
PVC
Utilități
Apă Climă Canalizare
Sistem încălzire
Centrală proprie
Acces internet
Cablu Fibră optică Wireless Dial-up
Climatizare
Aer condiționat
Dotări
Lift
Mobilat
Nemobilat
Diverse
Sistem de alarmă Telecomandă poartă garaj Telecomandă poartă acces auto
Dotări imobil
Lift Interfon Acoperiș Curte comună Videointerfon
Amenajare străzi
Asfaltate Iluminat stradal Mijloace de transport în comun
Servicii imobil
Administrare Supraveghere video
Facilități
Lift Balcon

Puncte de interes

Mijloace transport
transport
Statia "Policlinica Recuperare", linia 28,44,121
Mijloace transport aprox. 1813 m
transport
Mircea cel Batran
Mijloace transport aprox. 1877 m
transport
Statia "Mircea cel Batran", linia 28,44
Mijloace transport aprox. 1896 m
transport
Spital Recuperare
Mijloace transport aprox. 1900 m
Școală
education
Şcoala nr. 32 Tudor Arghezi (en)
Învățământ aprox. 1107 m
education
Sc Ctin Langa
Învățământ aprox. 1584 m
education
Sc.gen. Miroslava
Învățământ aprox. 1585 m
education
Scoala Generala nr. 16 Mircea cel Batran
Învățământ aprox. 1812 m
Recreere
parks
Parc
Recreere aprox. 1115 m
restaurants
Rospeto pizza
Restaurante aprox. 1475 m
shopping
MONELO STILL
Supermarket/Mall aprox. 1576 m
shopping
Gemi
Supermarket/Mall aprox. 1706 m

Proprietăți similare

Apartament cu 2 camere decomandat, mobilat în Galata
124.000 €
Iași, Galata
2 camere
55 mp
Etaj 2
Apartament cu 2 camere decomandat, mobilat în Galata
107.900 €
Iași, Galata
2 camere
43 mp
Etaj 1
Apartament cu 3 camere decomandat în Galata
128.000 €
Iași, Galata
3 camere
57 mp
Parter / 4
Apartament cu 2 camere decomandat în Galata
127.000 €
Iași, Galata
2 camere
62 mp
Etaj 1 / 3
Apartament cu 3 camere decomandat în Galata
127.000 €
Iași, Galata
3 camere
71 mp
Etaj 2
Apartament cu 2 camere decomandat, mobilat în Galata
128.800 €
Iași, Galata
2 camere
57,7 mp
Etaj 1 / 4
Apartament cu 2 camere semidecomandat în Galata
122.000 €
Iași, Galata
2 camere
45 mp
Etaj 2 / 2
Apartament cu 3 camere decomandat în Galata
120.224 €
Iași, Galata
3 camere
75 mp
Parter / 5
Apartament cu 3 camere în Galata
122.536 €
Iași, Galata
3 camere
72,17 mp
Etaj 1

Abonează-te la newsletter să fii primul care primește cele mai noi recomandări de proprietăți și sfaturi de la experți.