PF - Apartament 3 Camere - 76 MP - Frumoasa Poitiers Continental

117.900 €

Frumoasa, Iaşi

Nr. camere:
3
Suprafață utilă:
76 mp
Etaj:
2 / 4
Nr. niveluri:
4

Descriere apartament

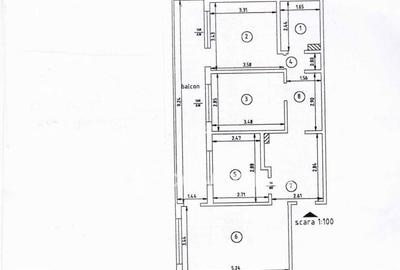
Vand apartament cu 3 camere, spatios si bine compartimentat. Locuinta are o suprafata de 76 mp si este decomandata, fiind situata in zona Poitiers-Frumoasa, in imediata apropiere de Continental (Aumovio). Apartamentul este amplasat la etajul 2 din 4 si dispune de o compartimentare practica: 3 camere, 1 baie, bucatarie separata (nu este open space), balcon si debara. Este dotat cu ferestre termopan si centrala termica proprie pe gaz. Se poate achizitiona atat mobilat si utilat, cat si nemobilat, mobilierul si electrocasnicele fiind incluse in pret. Pret: 117.900 euro. Se accepta plata cash sau prin credit. Locuinta este disponibila pentru mutare imediata, fara a necesita termen de habitatie. Pentru mai multe detalii sau pentru programarea unei vizionari, va stau la dispozitie.
Citește mai mult Citește mai puțin
Decomandat

Detalii apartament

ID anunț: 4167629 Actualizat în: 17 Aprilie 2026
Nr. camere: 3
Suprafață utilă: 76 mp
Suprafață utilă totală: 76 mp
Compartimentare: Decomandat
Etaj: Etaj 2 / 4
Regim înălțime: P+4E

Istoric preț

Puncte de interes

Mijloace transport
transport
Statia "Moldova Mall", linia 13
Mijloace transport aprox. 323 m
transport
Statia "Moldova Mall", linia 1
Mijloace transport aprox. 330 m
transport
Moldova Mall
Mijloace transport aprox. 334 m
transport
Moldova Mall
Mijloace transport aprox. 337 m
Școală
education
Gradinita cu program prelungit nr.28
Învățământ aprox. 32 m
education
Departamentul de Ingineria Instalatiilor
Învățământ aprox. 382 m
education
Facultatea de Automatica si Calculatoare
Învățământ aprox. 417 m
education
Institutul politehnic de cercetare Iasi
Învățământ aprox. 457 m
Recreere
restaurants
KFC
Restaurante aprox. 38 m
shopping
Palas Mall
Supermarket/Mall aprox. 94 m
shopping
Palas Mall
Supermarket/Mall aprox. 97 m
parks
Carusel
Recreere aprox. 108 m

Proprietăți similare

Apartament cu 3 camere decomandat în Frumoasa
110.856 €
Iași, Frumoasa
3 camere
74 mp
Etaj 2
Apartament cu 2 camere decomandat în Frumoasa
119.000 €
Iași, Frumoasa
2 camere
64 mp
Etaj 2
Apartament cu 2 camere decomandat, mobilat în Frumoasa
122.000 €
Iași, Frumoasa
2 camere
62 mp
Etaj 4
Apartament cu 2 camere decomandat, mobilat în Frumoasa
122.000 €
Iași, Frumoasa
2 camere
62 mp
Etaj 4
Apartament cu 2 camere decomandat în Frumoasa
112.400 €
Iași, Frumoasa
2 camere
60 mp
Etaj 6
Apartament cu 3 camere decomandat în Frumoasa
110.000 €
Iași, Frumoasa
3 camere
70 mp
Etaj 1
Apartament cu 2 camere decomandat, mobilat în Frumoasa
119.000 €
Iași, Frumoasa
2 camere
60 mp
Etaj 2
Apartament cu 2 camere decomandat, mobilat în Frumoasa
125.000 €
Iași, Frumoasa
2 camere
58 mp
Etaj 6
Apartament cu 3 camere decomandat, mobilat în Frumoasa
125.000 €
Iași, Frumoasa
3 camere
82 mp
Etaj 4 / 4

Abonează-te la newsletter să fii primul care primește cele mai noi recomandări de proprietăți și sfaturi de la experți.