Apartament 3 camere Frumoasa, etaj 1, ideal investitie

110.000 €

Frumoasa, Iaşi

Nr. camere:
3
Suprafață utilă:
70 mp
Etaj:
1 / 4
An construcție:
1984
Nr. niveluri:
4

Descriere apartament

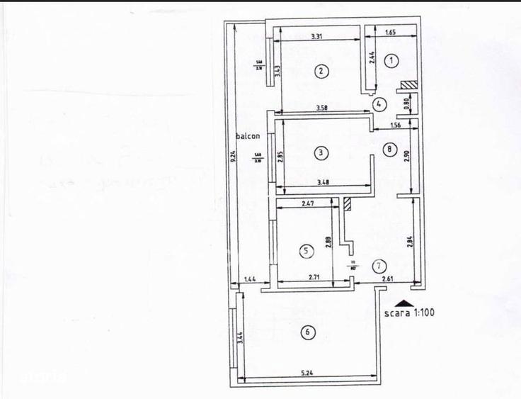
COD OFERTA; CP6937Agentia Casa Prima va propune spre vanzare un apartament cu 3 camere decomandat cu suprafata de 70 mp, modelul cu 2 bai, 2 balcoane, situat in zona Frumoasa la etajul 1 intr-un bloc cu 4 etaje construit in anul 1984.Apartamentul necesita renovare in totalitate, dispune de;-centrala termica;-tamplarie PVC;In zona se gasesc Manastirea Frumoasa, scoala gimnaziala Dimitrie Sturdza, cu acces la mijloace de transport in comun, autobuzele 19, 27, 42, 43, 43c, 44.Pentru mai multe informatii, consultati agentul imobiliar la numarul de telefon 074]5 8]52 973
Citește mai mult Citește mai puțin
Decomandat

Detalii apartament

ID anunț: 4176910 Actualizat în: 17 Aprilie 2026
Nr. camere: 3
Suprafață utilă: 70 mp
Suprafață utilă totală: 70 mp
Compartimentare: Decomandat
Etaj: Etaj 1 / 4
An construcție: 1984
Regim înălțime: P+4E

Istoric preț

Puncte de interes

Mijloace transport
transport
Statia "Blocuri Cetatuia", linia 19,27,43,43c,42
Mijloace transport aprox. 199 m
transport
Statia "Bariera Nicolina", linia 44
Mijloace transport aprox. 269 m
transport
Bariera Nicolina
Mijloace transport aprox. 272 m
transport
Bariera Nicolina
Mijloace transport aprox. 317 m
Școală
education
Scoala "Dimitrie Sturdza" nr. 43
Învățământ aprox. 52 m
education
Sc Gen 43 M Sturdza
Învățământ aprox. 52 m
education
Scoala Alecu Russo
Învățământ aprox. 388 m
education
Happy Party
Învățământ aprox. 412 m
Recreere
parks
Teren sportiv
Recreere aprox. 376 m
shopping
Zerkat
Supermarket/Mall aprox. 380 m
restaurants
Trabant
Restaurante aprox. 418 m
shopping
Profi (Nicolina)
Supermarket/Mall aprox. 458 m

Proprietăți similare

Apartament cu 2 camere decomandat în Frumoasa
119.000 €
Iași, Frumoasa
2 camere
64 mp
Etaj 2
Apartament cu 2 camere decomandat în Frumoasa
110.650 € + TVA
Iași, Frumoasa
2 camere
59 mp
Etaj 6 / 6
Apartament cu 2 camere în Frumoasa
107.000 €
Iași, Frumoasa
2 camere
56 mp
Etaj 1
Apartament cu 3 camere decomandat în Frumoasa
105.000 €
Iași, Frumoasa
3 camere
67 mp
Etaj 3
Apartament cu 2 camere decomandat în Frumoasa
118.000 €
Iași, Frumoasa
2 camere
65 mp
Etaj 7
Apartament cu 2 camere decomandat, mobilat în Frumoasa
119.999 €
Iași, Frumoasa
2 camere
58 mp
Etaj 1
Apartament cu 2 camere decomandat în Frumoasa
102.566 €
Iași, Frumoasa
2 camere
58 mp
Etaj 4
Apartament cu 2 camere decomandat, mobilat în Frumoasa
105.900 €
Iași, Frumoasa
2 camere
56 mp
Etaj 1
Apartament cu 2 camere decomandat, mobilat în Frumoasa
104.000 €
Iași, Frumoasa
2 camere
56 mp
Etaj 4

Abonează-te la newsletter să fii primul care primește cele mai noi recomandări de proprietăți și sfaturi de la experți.