Apartament 2CD, Frumoasa, Et 2

79.000 €

Frumoasa, Iaşi

Nr. camere:
2
Suprafață utilă:
51 mp
Etaj:
2 / 4
An construcție:
1980
Nr. niveluri:
4

Descriere apartament

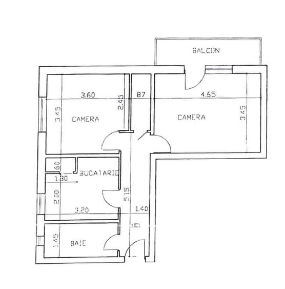
Apartament 2 camere decomandat, la etaj intermediar 2 din 4, contructie dupa 1980, fara risc seismic, se accepta credit ipotecar. Apartamentul este foarte bine compartimentat, la etaj intermediar, scara de bloc curata cu interfon, locatie ferita de zgomotul traficului intens, fiind langa manastirea Frumoasa. Apartamentul are nevoie de renovare, de asta si pretul pe mp este de doar 1500euro.
Citește mai mult Citește mai puțin
Confort 2 Decomandat Nemobilat Curte comună Calorifere Centrală proprie Necesită renovare

Detalii apartament

ID anunț: 3710548 Actualizat în: 16 Aprilie 2026
Nr. camere: 2
Suprafață utilă: 51 mp
Suprafață utilă totală: 51 mp
Compartimentare: Decomandat
Confort: 2
Etaj: Etaj 2 / 4
Nr. băi: 1
An construcție: 1980
Regim înălțime: P+4E

Istoric preț

Facilități

Contorizare
Contor gaz Apometre
Mobilat
Nemobilat
Facilități imobil
Uscătorie Interfon Acoperiș Curte comună
Utilități
Gaze Curent Canalizare Apă
Sistem încălzire
Calorifere Centrală proprie
Internet
Fibră optică
Ușă intrare
Metal Lemn
Uși interior
Lemn
Stare interior
Necesită renovare
Ferestre cu geam termopan
Lemn Aluminiu
Amenajare străzi
Asfaltate Iluminat stradal Mijloace de transport în comun

Puncte de interes

Mijloace transport
transport
Bariera Nicolina
Mijloace transport aprox. 353 m
transport
Bariera Nicolina
Mijloace transport aprox. 384 m
transport
Statia "Bariera Nicolina", linia 44
Mijloace transport aprox. 392 m
transport
Liceul CUG
Mijloace transport aprox. 425 m
Școală
education
Scoala "Dimitrie Sturdza" nr. 43
Învățământ aprox. 272 m
education
Sc Gen 43 M Sturdza
Învățământ aprox. 272 m
education
Scoala Alecu Russo
Învățământ aprox. 441 m
education
Grupul Scolar "Dumitru Mangeron"
Învățământ aprox. 474 m
Recreere
shopping
Zerkat
Supermarket/Mall aprox. 137 m
parks
Teren sportiv
Recreere aprox. 363 m
shopping
Kaufland
Supermarket/Mall aprox. 514 m
restaurants
Agatha
Restaurante aprox. 541 m

Proprietăți similare

Apartament cu 2 camere decomandat în Frumoasa
77.000 €
Iași, Frumoasa
2 camere
52,17 mp
Parter / 2
Apartament cu 2 camere decomandat în Frumoasa
75.000 €
Iași, Frumoasa
2 camere
51 mp
Etaj 3 / 4
Apartament cu 2 camere decomandat în Frumoasa
76.139 €
Iași, Frumoasa
2 camere
51 mp
Etaj 2
Apartament cu 2 camere decomandat în Frumoasa
75.000 €
Iași, Frumoasa
2 camere
51 mp
Etaj 3
Apartament cu 2 camere decomandat, mobilat în Frumoasa
83.000 €
Iași, Frumoasa
2 camere
52 mp
Etaj 1
Apartament cu 2 camere nedecomandat, mobilat în Alexandru cel Bun
75.000 €
Iași, Alexandru cel Bun
2 camere
35 mp
Etaj 2
Apartament cu 2 camere semidecomandat, mobilat în Lunca Cetățuii
74.900 €
Iași, Lunca Cetățuii
2 camere
40 mp
Parter
Apartament cu 2 camere nedecomandat în Alexandru cel Bun
79.500 €
Iași, Alexandru cel Bun
2 camere
38 mp
Etaj 3
Apartament cu 2 camere decomandat în Nicolina
81.900 €
Iași, Nicolina
2 camere
47 mp
Etaj 4 / 4

Abonează-te la newsletter să fii primul care primește cele mai noi recomandări de proprietăți și sfaturi de la experți.