Apartament/spatiu bloc nou finalizat 2 camere Copou- Royal Town

149.900 €

Copou, Iaşi

Nr. camere:
2
Suprafață utilă:
50 mp
Etaj:
Parter / 11
An construcție:
2025
Nr. niveluri:
11

Descriere apartament

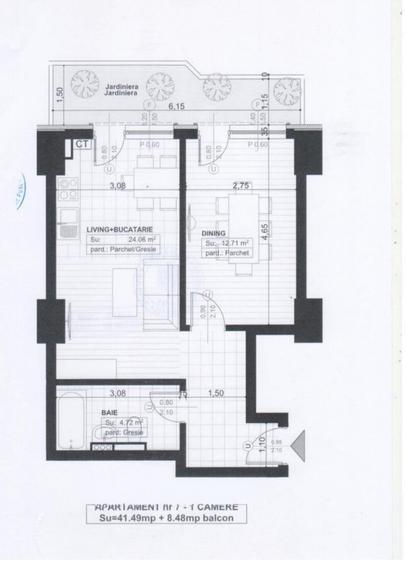
Ideal pentru o firma ca: spatiu de birouri sau diferite activitati. Deschiderea acestui apartament este catre magazinul Mega Image, la parter. !!Loc parcare+Tva 21% inclus Apartamentul/spatiu este nou,intabulat, are suprafata totala de 50 mp, din care 9 mp terasa si este situat la parter/11 într-un bloc care este finalizat în 2025. Apartamentul dispune de: · – Centrală termică în condensare marca Ariston cu operare digitală de pe telefonul mobil – Tâmplărie exterioară PVC Qfort 82 cm, 7 camere profil, cu 3 foi de sticlă – Uși interioare din lemn cu toc reglabil – Parchet 10 mm conceput special pentru încălzirea în pardoseală – Încălzire în pardoseală, kit complet REHAU – Obiecte sanitare încastrate și suspendate VILLEROY & BOCH, robineți GROHE – Pardoseli placate cu marmură (hol, baie, bucătărie) – Întrerupătoare digitale și videointerfon – Aer condiționat – Glafuri marmură interior/exterior – Înălțimea camerelor de 2,75 m – Gresie holuri comune ITALIA – Lifturi SCHINDLER de ultima generație Viteza 1m/s Clasa energetică : A Consumul total de energie primară: 122,24 Indicele de emisii echivalent CO2: 26,12 Consumul total specific de energie din surse regenerabile : 0 Pret 149900 euro. !!! Prețul include locul de parcare si TVA 21% inclus. Pentru detalii si vizionari apelati la numarul: Mihaela Tehutu
Citește mai mult Citește mai puțin
Confort 1 Nemobilat Alte metode electrice Centrală proprie

Detalii apartament

ID anunț: 3571930 Actualizat în: 20 Februarie 2026
Nr. camere: 2
Suprafață utilă: 50 mp
Suprafață utilă totală: 50 mp
Confort: 1
Etaj: Parter / 11
Nr. băi: 1
An construcție: 2025
Regim înălțime: P+11E

Istoric preț

Facilități

Pereți
Faianță
Podele
Gresie Parchet
Utilități
Gaze Curent Canalizare Apă
Sistem încălzire
Centrală proprie Alte metode electrice
Mobilat
Nemobilat
Diverse
Senzor de fum
Facilități imobil
Lift Videointerfon
Amenajare străzi
Mijloace de transport în comun

Puncte de interes

Mijloace transport
transport
Liceul Agricol
Mijloace transport aprox. 507 m
transport
Statia "Liceul Pedagogic", linia 6b
Mijloace transport aprox. 529 m
transport
Statia "I.V.V Copou", linia 6b
Mijloace transport aprox. 713 m
transport
Statia "Liceul Agricol", linia 6b
Mijloace transport aprox. 1019 m
Școală
education
Colegiul Agricol si de industrie alimentara Vasile Adamachi
Învățământ aprox. 393 m
education
Scoala Normala 'Vasile Lupu'
Învățământ aprox. 523 m
education
SEMINARUL TEOLOGIC LICEAL ORTODOX SF. VASILE CEL MARE
Învățământ aprox. 590 m
education
Universitatea de Ştiinţe Agricole şi Medicină Veterinară "Ion Ionescu de la Brad"- Facultatea de Medicina Veterinara si Facultatea de Zootehnie
Învățământ aprox. 1379 m
Recreere
parks
Parc dendrologic
Recreere aprox. 458 m
parks
Parc
Recreere aprox. 474 m
restaurants
Restaurant Turnul de apa
Restaurante aprox. 1247 m
restaurants
La Castel
Restaurante aprox. 1529 m

Proprietăți similare

Apartament cu 2 camere, mobilat în Copou
147.000 €
Iași, Copou
2 camere
60 mp
Parter
Apartament cu 2 camere în Copou
136.000 €
Iași, Copou
2 camere
45 mp
Etaj 2
Apartament cu 2 camere decomandat, mobilat în Copou
135.000 €
Iași, Copou
2 camere
64 mp
Etaj 5
Apartament cu 3 camere decomandat în Copou
155.438 € + TVA
Iași, Copou
3 camere
72,9 mp
Etaj 5
Apartament cu 3 camere semidecomandat în Copou
148.600 €
Iași, Copou
3 camere
88 mp
Etaj 4 / 10
Apartament cu 3 camere decomandat în Copou
150.000 €
Iași, Copou
3 camere
80 mp
Etaj 2
Apartament cu 2 camere decomandat în Copou
142.000 €
Iași, Copou
2 camere
60 mp
Parter
Apartament cu 2 camere decomandat, mobilat în Copou
140.000 €
Iași, Copou
2 camere
64 mp
Etaj 10
Apartament cu 2 camere decomandat în Copou
145.000 €
Iași, Copou
2 camere
60 mp
Etaj 1

Abonează-te la newsletter să fii primul care primește cele mai noi recomandări de proprietăți și sfaturi de la experți.