Apartament cu 3 camere, 2 bai, UMF CENTRU, decomandat, bloc din 1980

174.000 €

Centru Civic, Iaşi

Nr. camere:
3
Suprafață utilă:
65 mp
Etaj:
4 / 4
An construcție:
1980
Nr. niveluri:
4

Descriere apartament

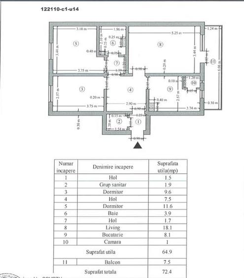
Apartamentul propus spre vanzare este situat vis-a-vis de UMF, pe Strada Vasile Alecsandri, intr-un imobil construit in anul 1980, la etajul 4. Este decomandat, impartit in 2 holuri, 2 bai, 3 camere, bucatarie, balcon cu dubla iesire, atat din bucatarie cat si din sufragerie. Suprafata totala a apartamentului este de 72.4 mp, din care 64.9 utili. Este orientat pe Est si Vest, beneficiaza de lumina naturala pe durata zilei. Este partial renovat pana in punctul in care se pot pune finisajele interioare (gresie, faianta, parchet.) Recent au fost inlocuite geamurile, usa de intrare, indreptati peretii, izolat exterior, instalatiile, s-a pus inclusiv sapa autonivelanta. Se accepta plata prin credit.
Citește mai mult Citește mai puțin
Confort 1 Decomandat Necesită renovare

Detalii apartament

Actualizat în: 12 Mai 2026 ID anunț: 1202441
Nr. camere: 3
Suprafață utilă: 65 mp
Suprafață utilă totală: 65 mp
Compartimentare: Decomandat
Confort: 1
Etaj: Etaj 4 / 4
Nr. băi: 2
An construcție: 1980
Regim înălțime: P+4E

Istoric preț

Facilități

Contorizare
Apometre Contor gaz
Facilități imobil
Interfon
Utilități
Apă Curent Gaze Canalizare
Stare interior
Necesită renovare
Izolații termice
Exterior
Amenajare străzi
Asfaltate

Puncte de interes

Mijloace transport
transport
Piata Independentei
Mijloace transport aprox. 194 m
transport
Statia "Piata Independentei", linia 6b,18,20,28,41,42,43,43c,41b,46
Mijloace transport aprox. 246 m
transport
Piata Independentei
Mijloace transport aprox. 261 m
transport
Statia "Piata Unirii", linia 6b,18,20,43,43c,46
Mijloace transport aprox. 413 m
Școală
education
Universitatea Veche"
Învățământ aprox. 157 m
education
UMF "Gr. T. Popa" Iasi
Învățământ aprox. 164 m
education
Scoala Postliceala Sanitara de Stat "Grigore Ghica Voda"
Învățământ aprox. 164 m
education
Scoala soferi Vip Bdb Class
Învățământ aprox. 232 m
Recreere
parks
Piata Independentei
Recreere aprox. 163 m
restaurants
Rapsodia
Restaurante aprox. 186 m
shopping
Galeriile Ştefan cel Mare
Supermarket/Mall aprox. 660 m
shopping
Magazinul Casei Tale
Supermarket/Mall aprox. 776 m

Proprietăți similare

Apartament cu 3 camere decomandat, mobilat în Centru Civic
170.000 €
Iași, Centru Civic
3 camere
64 mp
Etaj 4 / 4
Apartament cu 3 camere decomandat în Centru Civic
190.000 €
Iași, Centru Civic
3 camere
70 mp
Etaj 3 / 7
Apartament cu 3 camere în Centru Civic
185.000 €
Iași, Centru Civic
3 camere
95 mp
1955
Apartament cu 3 camere decomandat, mobilat în Centru Civic
159.000 €
Iași, Centru Civic
3 camere
61 mp
Etaj 1 / 4
Apartament cu 3 camere decomandat în Centru Civic
165.000 €
Iași, Centru Civic
3 camere
69 mp
Etaj 10 / 11
Apartament cu 3 camere decomandat, mobilat în Centru Civic
175.000 €
Iași, Centru Civic
3 camere
60 mp
Parter / 12
Apartament cu 2 camere decomandat, mobilat în Centru Civic
169.000 €
Iași, Centru Civic
2 camere
56 mp
Etaj 1 / 8
Apartament cu 3 camere decomandat, mobilat în Centru Civic
160.000 €
Iași, Centru Civic
3 camere
70 mp
Etaj 10 / 10
Apartament cu 3 camere decomandat în Centru Civic
173.900 €
Iași, Centru Civic
3 camere
73 mp
Etaj 4 / 4

Abonează-te la newsletter să fii primul care primește cele mai noi recomandări de proprietăți și sfaturi de la experți.