FINALIZAT!Apartament2 Camere/Vi?oianu-Pepco/ZERO COMISION/TVA INCLUS

72.600 €

Central, Iaşi

Nr. camere:
2
Suprafață utilă:
44 mp
Etaj:
3 / 3
An construcție:
2025
Nr. niveluri:
3

Descriere apartament

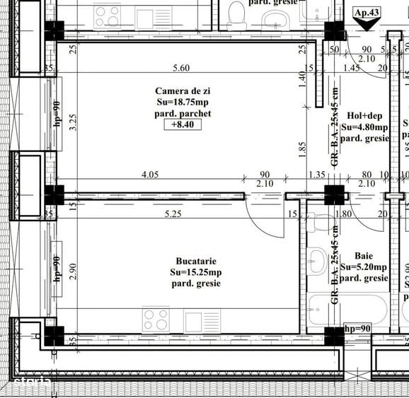
Apartament 2 camere | Visoianu zona Pepco | Bloc nou | Geam la baie | Mutare imediataSe ofera spre vanzare apartament cu 2 camere, situat in Visoianu, in apropiere de Pepco si spalatorie auto, intr-un imobil nou finalizat.Locuinta beneficiaza de compartimentare practica si suprafete generoase:camera de zi 18,75 mpbucatarie 15,25 mpbaie 5,20 mp, prevazuta cu geam pentru aerisire naturalahol cu spatiu de depozitare 4,80 mpApartamentul este potrivit atat pentru locuit personal, cat si pentru investitie, oferind costuri reduse de intretinere si posibilitate de mutare imediata.Zona este bine conectata cu orasul prin mijloacele de transport in comun CTP si se afla in apropierea magazinelor Penny si Lidl, sala de fitness, frizerie, scoli si alte facilitati necesare vietii de zi cu zi.Imobil nou, finisaje moderne si acces rapid catre oras.Pret: 72.600 euro, TVA inclus.Pentru detalii suplimentare si programarea unei vizionari, ne puteti contacta telefonic.
Citește mai mult Citește mai puțin

Detalii apartament

Actualizat în: 12 Martie 2026 ID anunț: 1389075
Nr. camere: 2
Suprafață utilă: 44 mp
Suprafață utilă totală: 44 mp
Etaj: Etaj 3 / 3
An construcție: 2025
Regim înălțime: P+3E

Istoric preț

Puncte de interes

Mijloace transport
transport
Statia ""Sere", linia 41b,44
Mijloace transport aprox. 122 m
transport
Sere
Mijloace transport aprox. 125 m
transport
Sere
Mijloace transport aprox. 207 m
transport
Statia ""Horpaz", linia 41b,44
Mijloace transport aprox. 554 m
Școală
education
Sc Lunca Cetatuiei
Învățământ aprox. 1090 m
education
Scoala de Soferi Auto Tifache
Învățământ aprox. 1248 m
Recreere
restaurants
Capitol
Restaurante aprox. 837 m
parks
Parc
Recreere aprox. 906 m
parks
Teren sportiv
Recreere aprox. 924 m
restaurants
Ana Maria (autoservire)
Restaurante aprox. 1724 m

Proprietăți similare

Apartament cu 2 camere în Central
69.500 €
Iași, Central
2 camere
39 mp
Etaj 3
Apartament cu 2 camere decomandat în Central
67.000 €
Iași, Central
2 camere
43 mp
Parter
Apartament cu 2 camere în Central
70.500 €
Iași, Central
2 camere
47 mp
Parter / 2
Apartament cu 2 camere în Central
67.500 €
Iași, Central
2 camere
62 mp
Etaj 4
Apartament cu 2 camere decomandat în Central
74.900 €
Iași, Central
2 camere
39 mp
Etaj 3
Apartament cu 2 camere decomandat în Central
76.900 €
Iași, Central
2 camere
60 mp
Etaj 1
Apartament cu 2 camere semidecomandat în Central
72.000 €
Iași, Central
2 camere
35 mp
Etaj 1
Apartament cu 2 camere decomandat în Central
79.000 €
Iași, Central
2 camere
43 mp
Etaj 2 / 3
Apartament cu 2 camere nedecomandat în Central
72.000 €
Iași, Central
2 camere
40 mp

Abonează-te la newsletter să fii primul care primește cele mai noi recomandări de proprietăți și sfaturi de la experți.