Apartament cu 2 camere în Bucium (Family Market)

99.384 €

Bucium, Iaşi

Nr. camere:
2
Suprafață utilă:
58,55 mp
Etaj:
4 / 7
An construcție:
2025
Nr. niveluri:
7

Descriere apartament

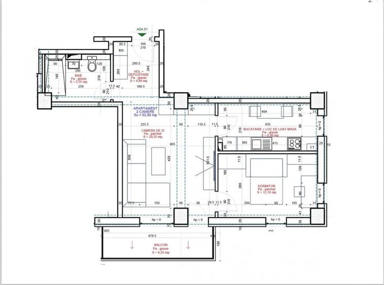
Vă propunem spre achiziționare un apartament cu 2 camere - 58,55 mp (cu balcon inclus) într-un complex rezidențial din Bucium-Iași. Preț: 99.384 € ( fără TVA ) – Prețurile pot varia în funcție de bloc, suprafață și avansul ales. Avantaje ale apartamentelor: Investiție sigură și valoroasă – cererea pentru locuințe noi este în continuă creștere; Spațiu eficient pentru trai urban – perfect pentru tineri, cupluri sau investiție; Posibilitate de personalizare – ești primul proprietar; Caracteristici premium: -Încălzire în pardoseală; -Izolație termică prin vată bazaltică și izolație fonică prin vată minerală; -Balcon spațios (6,55 mp); -Instalații electrice din cupru; -Tâmplărie tripan, 7 camere – lumină naturală optimă; -Uși metalice de securitate, videointerfon; -Pregătire pentru sistem de aer condiționat; *Termen de predare: Blocurile C9-C13 : Predare septembrie 2026. *Avans flexibil, în funcție de nevoile tale: C9 – C13: (termen de predare, jumatatea anului 2026) Avans minim – 1.798 €/mp Avans 70%+ – 1.709 €/mp Balconul este calculat la 50% din prețul pe mp util. Locuri de parcare: Achiziție: 10.000 € Închiriere: 119 lei/lună Prețurile sunt calculate fără cota de TVA. Pentru mai multe detalii, nu ezitați să ne contactați la numărul: – Lorian Gherasim
Citește mai mult Citește mai puțin
Confort 1 Semidecomandat Curte comună Centrală proprie Bine întreținut (Bună)

Detalii apartament

ID anunț: 36464 Actualizat în: 02 Aprilie 2026
Nr. camere: 2
Suprafață utilă: 58,55 mp
Suprafață utilă totală: 58,55 mp
Compartimentare: Semidecomandat
Confort: 1
Etaj: Etaj 4 / 7
Nr. băi: 1
An construcție: 2025
Regim înălțime: P+7E

Istoric preț

Facilități

Pereți
Var Faianță
Podele
Parchet Gresie
Ușă intrare
Parchet Metal PVC
Stare interior
Stare bună
Izolații termice
Exterior Bloc izolat termic
Ferestre cu geam termopan
PVC
Utilități
Curent Apă Canalizare Gaze Supraveghere video
Sistem încălzire
Centrală proprie
Internet
Fibră optică
Amenajare străzi
Asfaltate Betonate Iluminat stradal Mijloace de transport în comun
Servicii imobil
Supraveghere video
Facilități imobil
Videointerfon Lift Spații agrement Curte comună

Puncte de interes

Mijloace transport
transport
Statia "Spitalul nr.7", linia 30,30b,46
Mijloace transport aprox. 527 m
transport
Statia "PECO Bucium", linia 30,30b,46
Mijloace transport aprox. 552 m
transport
Statia "Centrofarm", linia 30,30b,46
Mijloace transport aprox. 740 m
transport
Statia "Camine CUG", linia 19,27,42,43,43c
Mijloace transport aprox. 784 m
Școală
education
Grupul Scolar "Dumitru Mangeron"
Învățământ aprox. 1187 m
education
Liceul Mihail Sturdza
Învățământ aprox. 1215 m
education
Liceul Tehnoton
Învățământ aprox. 1277 m
education
Grupul Scolar Constantin Brancusi
Învățământ aprox. 1279 m
Recreere
parks
Teren sportiv
Recreere aprox. 169 m
restaurants
Bellaria
Restaurante aprox. 437 m
shopping
Dedeman (Manta Rosie)
Supermarket/Mall aprox. 976 m
shopping
Zerkat
Supermarket/Mall aprox. 1502 m

Proprietăți similare

Apartament cu 2 camere în Bucium
92.500 €
Iași, Bucium
2 camere
43 mp
Etaj 2
Apartament cu 2 camere semidecomandat în Bucium
96.500 €
Iași, Bucium
2 camere
57 mp
Etaj 1
Apartament cu 3 camere decomandat, mobilat în Bucium
105.000 €
Iași, Bucium
3 camere
80 mp
Etaj 4
Apartament cu 2 camere decomandat în Bucium
106.900 €
Iași, Bucium
2 camere
50 mp
Etaj 3
Apartament cu 2 camere semidecomandat în Bucium
91.000 €
Iași, Bucium
2 camere
58 mp
Etaj 1
Apartament cu 2 camere semidecomandat în Bucium
104.900 €
Iași, Bucium
2 camere
53 mp
Etaj 2
Apartament cu 2 camere decomandat în Bucium
108.900 €
Iași, Bucium
2 camere
66 mp
Etaj 1
Apartament cu 2 camere semidecomandat în Bucium
103.305 €
Iași, Bucium
2 camere
58,55 mp
Etaj 4
Apartament cu 3 camere nedecomandat în Bucium
102.500 €
Iași, Bucium
3 camere
67 mp
Etaj 1

Abonează-te la newsletter să fii primul care primește cele mai noi recomandări de proprietăți și sfaturi de la experți.