Etaj 2, 2 camere, 56mp // COMISION 0%

82.950 €

Bucium, Iaşi

Nr. camere:
2
Suprafață utilă:
56 mp
Etaj:
2 / 3
An construcție:
2024
Nr. niveluri:
3

Descriere apartament

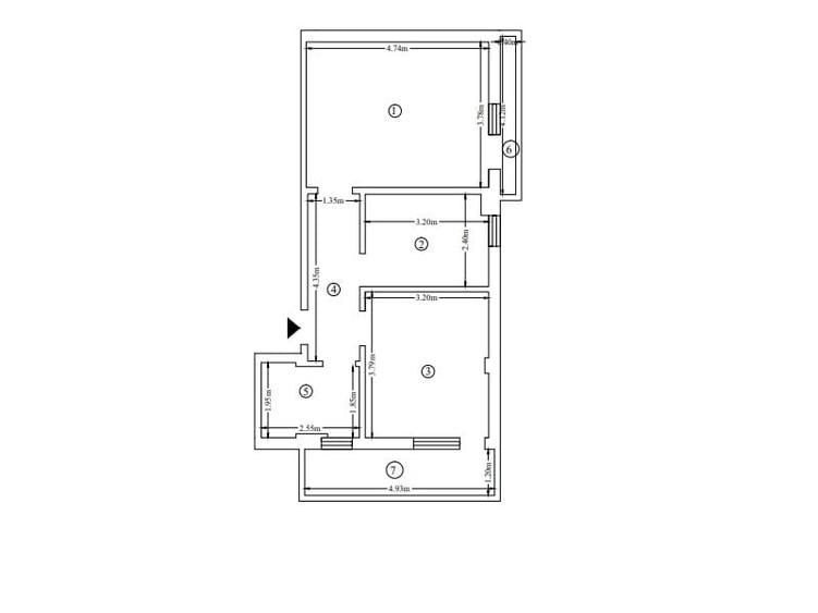
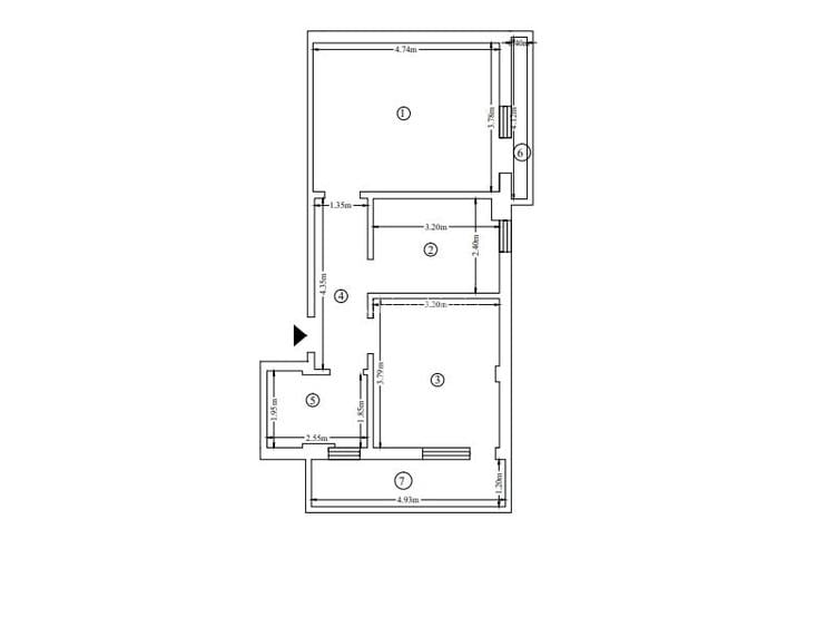
Vă propun spre vânzare un apartament cu 2 camere decomandat, având o suprafață utilă de 48,2 mp, la care se adaugă un balcon generos de 7,8 mp, situat la etajul 2 din 3, într-un bloc nou, construit pe structură solidă din cadre de beton armat. Locuința beneficiază de o compartimentare eficientă și finisaje de calitate, fiind potrivită atât pentru locuit, cât și pentru investiție. Dotări și beneficii: Compartimentare decomandatăBalcon spațios – 7,8 mpCentrală termică proprieTâmplărie PVC cu geam tripanParchet și gresie de calitate superioarăUșă metalică la intrareBucătărie mobilatăBloc nou, construcție pe cadre din beton armatEtaj 2/3 – poziționare idealăPreț: 82.950 euro✔️ Comision 0% pentru cumpărător Pentru mai multe detalii și programarea unei vizionări:Adrian Irimia –
Citește mai mult Citește mai puțin
Decomandat

Detalii apartament

ID anunț: 4014400 Actualizat în: 31 Martie 2026
Nr. camere: 2
Suprafață utilă: 56 mp
Suprafață utilă totală: 56 mp
Compartimentare: Decomandat
Etaj: Etaj 2 / 3
Nr. băi: 1
An construcție: 2024
Regim înălțime: P+3E

Istoric preț

Facilități

Facilități
Balcon

Puncte de interes

Mijloace transport
transport
Statia "han Trei Sarmale", linia 30,30b,46
Mijloace transport aprox. 6 m
transport
Han Trei Sarmale
Mijloace transport aprox. 6 m
transport
Han Trei Sarmale
Mijloace transport aprox. 130 m
transport
Statia "han Trei Sarmale", linia 30,30b,46
Mijloace transport aprox. 143 m
Școală
education
Scoala Veronica Micle
Învățământ aprox. 158 m
education
Scoala Generala nr. 2 Veronica Micle
Învățământ aprox. 360 m
education
Gradinita PP Surorile Providentei
Învățământ aprox. 531 m
Recreere
restaurants
La Taifas
Restaurante aprox. 46 m
restaurants
La Matale
Restaurante aprox. 53 m
parks
Teren sportiv
Recreere aprox. 218 m
parks
Teren sportiv
Recreere aprox. 297 m

Proprietăți similare

Apartament cu 2 camere decomandat, mobilat în Bucium
75.485 €
Iași, Bucium
2 camere
44 mp
Parter
Apartament cu 2 camere semidecomandat în Bucium
79.700 €
Iași, Bucium
2 camere
53 mp
Etaj 5
Apartament cu 2 camere decomandat în Bucium
86.500 €
Iași, Bucium
2 camere
53 mp
Etaj 1
Apartament cu 2 camere decomandat în Bucium
88.845 €
Iași, Bucium
2 camere
63 mp
Etaj 1
Apartament cu 3 camere semidecomandat, mobilat în Bucium
80.000 €
Iași, Bucium
3 camere
70 mp
2019
Apartament cu 2 camere în Bucium
82.100 €
Iași, Bucium
2 camere
55 mp
Etaj 1
Apartament cu 2 camere în Bucium
88.900 €
Iași, Bucium
2 camere
63 mp
Etaj 1
Apartament cu 2 camere decomandat în Bucium
75.000 €
Iași, Bucium
2 camere
46 mp
Etaj 1 / 3
Apartament cu 2 camere semidecomandat în Bucium
91.000 €
Iași, Bucium
2 camere
58 mp
Etaj 2

Abonează-te la newsletter să fii primul care primește cele mai noi recomandări de proprietăți și sfaturi de la experți.