Complex NOU! Ap 2 camere, Pret Promotional!

73.000 €

Aeroport, Iaşi

Nr. camere:
2
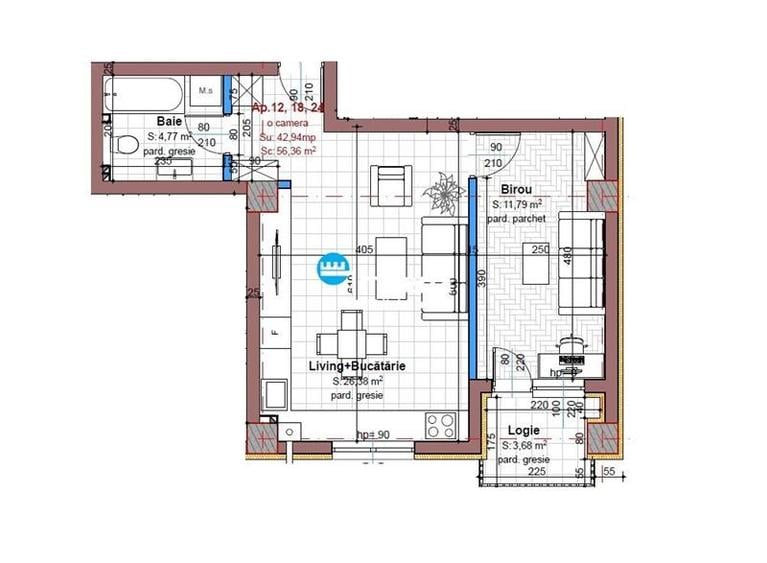
Suprafață utilă:
42 mp
Etaj:
1 / 3
An construcție:
2025
Nr. niveluri:
3

Descriere apartament

PANORAMIC RESIDENCE deschide vanzarile pentru noul proiect imobiliar situat in zona Cug – Valea Adanca, una dintre cele mai dinamice si cautate arii ale orasului. Amplasat excelent, ansamblul se afla in imediata apropiere a supermarketurilor, farmaciilor, spalatoriei auto, restaurantelor, cofetariilor si statiilor de transport in comun, oferind viitorilor locatari confort maxim si acces rapid la toate facilitatile esentiale. Proiectul se remarca printr-un concept modern, atent gandit pentru a raspunde nevoilor actuale ale clientilor: spatii bine compartimentate, blocuri bine organizate si o comunitate rezidentiala in plina dezvoltare. Panoramic Residence cuprinde 530 de apartamente noi, cu 1, 2 si 3 camere, toate decomandate si proiectate pentru a oferi luminozitate, confort si eficienta in utilizarea spatiului. Constructiile sunt realizate la standarde ridicate de siguranta si calitate, folosind materiale si tehnologii moderne pentru durabilitate pe termen lung. Ansamblul pune la dispozitia viitorilor proprietari 550 de locuri de parcare, atat supraterane, cat si subterane, disponibile spre achizitie. Cele 13 blocuri ale complexului au un regim de inaltime P + 3 etaje, formand un ansamblu aerisit si bine structurat. Accesul este facil datorita liniilor de autobuz care fac legatura directa cu zonele centrale ale orasului. Apartamentele se predau la cheie, complet finisate, bransate la utilitati si contorizate individual. Toate spatiile comune, inclusiv casa scarii si caile de acces, sunt finalizate si amenajate la standarde superioare. Pentru mai multe detalii vizite contactati reprezentantul nostru Tiberiu Ghiatau :
Citește mai mult Citește mai puțin
Decomandat Aer condiționat Centrală proprie Bine întreținut (Bună)

Detalii apartament

ID anunț: 2910258 Actualizat în: 24 Martie 2026
Nr. camere: 2
Suprafață utilă: 42 mp
Suprafață utilă totală: 42 mp
Compartimentare: Decomandat
Etaj: Etaj 1 / 3
Nr. băi: 1
An construcție: 2025
Regim înălțime: P+3E

Istoric preț

Facilități

Sistem încălzire
Centrală proprie
Izolații termice
Exterior
Ferestre cu geam termopan
PVC

Puncte de interes

Mijloace transport
transport
Statia "Biserica Inaltarea Domnului", linia 27,41,41b,44
Mijloace transport aprox. 368 m
transport
Statia "Tehnopolis", linia 27,41,41b,44
Mijloace transport aprox. 482 m
transport
Tehnopolis
Mijloace transport aprox. 496 m
transport
CUG 1 (Selgros)
Mijloace transport aprox. 824 m
Școală
education
Scoala Generala nr. 42
Învățământ aprox. 633 m
education
Scoala "Nicolae Iorga"
Învățământ aprox. 635 m
education
Gradinita cu program normal nr.26
Învățământ aprox. 844 m
education
GRADINITA SI SCOALA PRIMARA LORELAY
Învățământ aprox. 1023 m
Recreere
shopping
Supermarket SMART CUG
Supermarket/Mall aprox. 164 m
parks
Park (en)
Recreere aprox. 214 m
restaurants
Selya-
Restaurante aprox. 247 m
shopping
Selgros
Supermarket/Mall aprox. 881 m

Proprietăți similare

Apartament cu 3 camere decomandat în Aeroport
79.900 € + TVA
Iași, Aeroport
3 camere
71 mp
Etaj 1 / 10
Apartament cu 3 camere decomandat în Tătărași
70.000 €
Iași, Tătărași
3 camere
62 mp
Etaj 3
Apartament cu 2 camere decomandat în Galata
77.650 € + TVA
Iași, Galata
2 camere
49,15 mp
Etaj 1
Apartament cu 2 camere nedecomandat, mobilat în Mircea cel Bătrân
76.900 €
Iași, Mircea cel Bătrân
2 camere
38 mp
Etaj 2
Apartament cu 2 camere nedecomandat în Podu Roș
80.000 €
Iași, Podu Roș
2 camere
48 mp
Parter
Apartament cu 2 camere decomandat, mobilat în Vișani
75.000 €
Iași, Vișani
2 camere
42 mp
Etaj 3
Apartament cu 3 camere semidecomandat, mobilat în Bucium
80.000 €
Iași, Bucium
3 camere
70 mp
2019
Apartament cu 2 camere în Podu Roș
71.900 €
Iași, Podu Roș
2 camere
35 mp
Etaj 4 / 4
Apartament cu 2 camere semidecomandat, mobilat în Tătărași
75.000 €
Iași, Tătărași
2 camere
47 mp
Parter

Abonează-te la newsletter să fii primul care primește cele mai noi recomandări de proprietăți și sfaturi de la experți.