Apartament cu 2 camere si bucatarie inchisa 56 mp in Giroc

82.999 €

Giroc, Judeţul Timiş

Nr. camere:
2
Suprafață utilă:
56 mp
Etaj:
2 / 3
An construcție:
2025
Nr. niveluri:
3

Descriere apartament

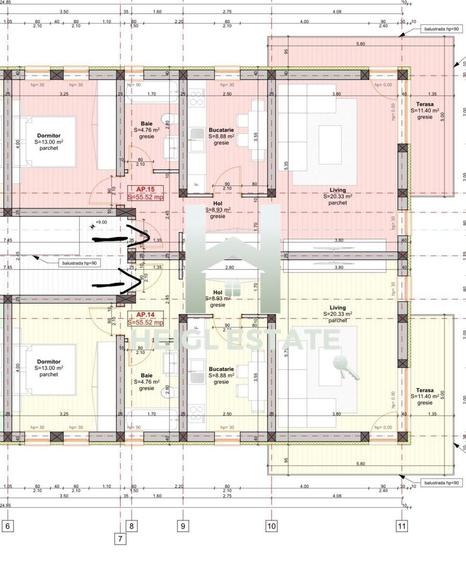
Heigl Estate vă propune spre vânzare în exclusivitate apartamente cu 2 camere in Giroc! Blocul este construit din caramida Porotherm de 25 cm cu vata bazaltica in interior pentru izolare fonica si termica superioara! Regim de inaltime: P+3E Compartimentare: -antreu -living -bucatarie inchisa -hol -2 dormitoare -baie -terasa 12 mp Incalzirea se realizează cu ajutorul centralei proprii prin pardosea! Iar finisajele vor fii alese de catre noul proprietar! Avantaj achizitie acum: Pretul este mai mic acum, blocul fiind in constructie. Pe masura ce lucrarile avanseaza, pretul va creste. Doar cumparatorii care investesc acum blocheaza pretul si primesc apartamentul complet finisat dupa bunul plac, la termenul de predare. (Iunie 2026) Aceasta este o oportunitate ideala pentru cei care cauta un camin confortabil sau o investitie sigura cu potential de venit lunar din inchiriere, intr-o zona care se dezvolta rapid si ofera toate facilitatile la indemana! În preț este inclus tva! Poze cu caracter informativ! Dispunem de apartamente finalizate, pentru vizionare! Oferim solutii financiare gratuite prin colaboratorii nostri pentru orice tip de credit! Va astept cu drag la o vizionare!
Citește mai mult Citește mai puțin
Centrală proprie

Detalii apartament

ID anunț: 1797867 Actualizat în: 25 Martie 2026
Nr. camere: 2
Suprafață utilă: 56 mp
Suprafață utilă totală: 56 mp
Etaj: Etaj 2 / 3
Nr. băi: 1
An construcție: 2025
Regim înălțime: P+3E

Istoric preț

Facilități

Pereți
Faianță Vopsea lavabilă
Podele
Gresie Parchet
Ușă intrare
Parchet Metal
Utilități
Curent Apă Canalizare Gaze Cablu
Sistem încălzire
Centrală proprie
Internet
Cablu
Amenajare străzi
Iluminat stradal Mijloace de transport în comun Asfaltate

Puncte de interes

Mijloace transport
transport
Giroceana
Mijloace transport aprox. 890 m
transport
Halta Giroc hc
Mijloace transport aprox. 1195 m
transport
Giroc
Mijloace transport aprox. 1214 m
transport
Halta Semenic Hm (en)
Mijloace transport aprox. 1304 m
Școală
education
Scoala Generala si Gradinita Giroc (en)
Învățământ aprox. 612 m
education
Scoala Gimnaziala Giroc
Învățământ aprox. 628 m
Recreere
restaurants
Trio hotel/restaurant (en)
Restaurante aprox. 647 m
shopping
Jelly Market
Supermarket/Mall aprox. 728 m
shopping
Profi City
Supermarket/Mall aprox. 733 m
parks
Parc
Recreere aprox. 1051 m

Proprietăți similare

Apartament cu 2 camere decomandat în Giroc
89.000 € + TVA
Județul Timiș, Giroc
2 camere
42 mp
Etaj 1 / 3
Apartament cu 2 camere semidecomandat, mobilat în Giroc
87.000 €
Județul Timiș, Giroc
2 camere
52 mp
Etaj 3 / 3
Apartament cu 2 camere decomandat în Giroc
79.999 €
Județul Timiș, Giroc
2 camere
53 mp
Etaj 3
Apartament cu 2 camere în Giroc
83.000 €
Județul Timiș, Giroc
2 camere
45 mp
Etaj 1
Apartament cu 2 camere decomandat în Giroc
89.000 €
Județul Timiș, Giroc
2 camere
42 mp
Etaj 1 / 2
Apartament cu 2 camere semidecomandat în Giroc
88.000 €
Județul Timiș, Giroc
2 camere
43 mp
Etaj 1 / 3
Apartament cu 2 camere decomandat, mobilat în Giroc
87.000 €
Județul Timiș, Giroc
2 camere
52 mp
Etaj 3
Apartament cu 2 camere semidecomandat în Giroc
83.999 €
Județul Timiș, Giroc
2 camere
43 mp
Etaj 3 / 3
Apartament cu 2 camere decomandat, mobilat în Giroc
78.000 €
Județul Timiș, Giroc
2 camere
35 mp
Parter

Abonează-te la newsletter să fii primul care primește cele mai noi recomandări de proprietăți și sfaturi de la experți.