SX661 Giroc (Eso) - Predare la cheie - Loc parcare

86.695 €

Giroc, Judeţul Timiş

Nr. camere:
2
Suprafață utilă:
42 mp
Etaj:
1 / 2
An construcție:
2026
Nr. niveluri:
2

Descriere apartament

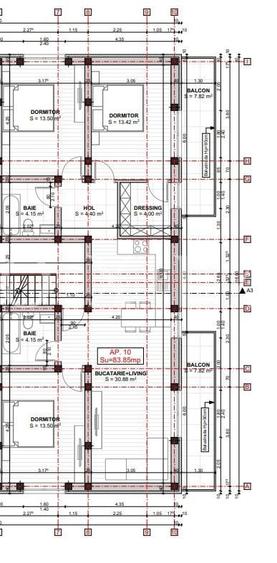
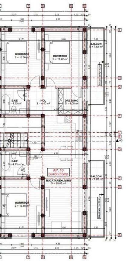
OXIA The Real Estate Agency prezinta spre vanzare apartamente cu 2 si 4 camere in Giroc, in vecinatatea benzinariei Eso, situate in imobil P+2E+M, cu suprafete cuprinse intre 42 si 84 MP cu balcoane de 8 MP compartimentate astfel: TIP 1: 2 Camere - hol acces - baie cu cada - living - bucatarie (cu posibilitate de inchidere) - camera - balcon cu acces din bucatarie TIP 2: 4 Camere - hol acces - baie dotata cu cada - living - bucatarie (cu posibilitate de inchidere) - hol tranzit - 2 dormitoare - baie cu cada - 2 balcoane cu acces din dormitor si living Apartamentele sunt in curs de finisare acest aspect va ofera posibilitatea de a interveni in amenajarea interioara sau in planurile electrice conform preferințelor dumneavoastra. Puteti personaliza inca din constructii designul interior sau sa apelați la un designer pentru a construi casa visurilor dumneavoastra cu costuri reduse. Acestea se predau finisat la cheie: usa intrare metal, usi interioare celulare, ferestre PVC cu geam termopan, placi de gresie/faianta, parchet laminat, vopsea lavabila, interfon, etc. Confortul termic este asigurat prin intermediul centralei proprii pe gaz cu incalzire in pardoseala cu termostate ambientale in fiecare incapere. Apartamentul dispun de un loc propriu de parcare . *Termenul de predare august 2026 PRETURI 2 Camere : 42.29 MP - 86.694 Euro + Comision Agentie 42.79 MP - 87.719 Euro + Comision Agentie 44.03 MP - 90.261 Euro + Comision Agentie PRET 4 Camere - 83.85 MP - 171.892 Euro + Comision Agentie SERVICII OXIA Echipa noastra dedicata ofera consultanta juridica si financiara pe tot parcursul tranzactiei, asigurand un proces simplu si transparent. CONTACT Pentru mai multe detalii sau pentru stabilirea unei vizionari, va rugam sa ne contactati la numarul de telefon . Echipa OXIA este pregatita sa va ofere toate informatiile necesare si sa va asiste pe tot parcursul procesului de achizitie. ID anunt SX661
Citește mai mult Citește mai puțin
Confort 1 Semidecomandat Nemobilat Aer condiționat Centrală proprie

Detalii apartament

ID anunț: 2685439 Actualizat în: 30 Martie 2026
Nr. camere: 2
Suprafață utilă: 42 mp
Suprafață utilă totală: 42 mp
Compartimentare: Semidecomandat
Confort: 1
Etaj: Etaj 1 / 2
Nr. băi: 1
An construcție: 2026
Regim înălțime: P+2E

Istoric preț

Facilități

Pereți
Faianță Vopsea lavabilă
Podele
Gresie Parchet
Ușă intrare
Parchet Metal PVC
Izolații termice
Exterior
Ferestre cu geam termopan
PVC
Contorizare
Apometre Contor gaz
Mobilat
Nemobilat
Diverse
Senzor de fum
Facilități imobil
Acoperiș Interfon
Utilități
Curent Apă Canalizare Gaze Cablu
Sistem încălzire
Centrală proprie
Internet
Cablu
Climatizare
Aer condiționat
Amenajare străzi
Iluminat stradal Mijloace de transport în comun Asfaltate

Puncte de interes

Mijloace transport
transport
Statie Apicultorilor E3
Mijloace transport aprox. 312 m
transport
Apicultorilor
Mijloace transport aprox. 325 m
transport
Statie Muzicescu E3
Mijloace transport aprox. 616 m
transport
Statie P. Pavlov Tv7
Mijloace transport aprox. 683 m
Școală
education
CENTRU REGIONALDE PREGATIRE PROFESIONALA PENTRU MAGISTRATI, GIROC, tIMISOARA
Învățământ aprox. 467 m
education
Institutul de Cercetari pentru Energii Regenerabile
Învățământ aprox. 474 m
education
Gradinita Program Prelungit Nr. 1
Învățământ aprox. 584 m
education
Şcoala generală nr. 14
Învățământ aprox. 625 m
Recreere
restaurants
Restaurant Regent
Restaurante aprox. 575 m
parks
Teren sportiv
Recreere aprox. 968 m
shopping
Lidl
Supermarket/Mall aprox. 970 m
shopping
Profi
Supermarket/Mall aprox. 1300 m

Proprietăți similare

Apartament cu 2 camere semidecomandat, mobilat în Giroc
85.990 €
Județul Timiș, Giroc
2 camere
52 mp
Etaj 3
Apartament cu 2 camere decomandat, mobilat în Giroc
87.000 €
Județul Timiș, Giroc
2 camere
52 mp
Etaj 3
Apartament cu 2 camere semidecomandat în Giroc
90.000 €
Județul Timiș, Giroc
2 camere
43 mp
Etaj 2 / 3
Apartament cu 2 camere semidecomandat, mobilat în Giroc
95.000 €
Județul Timiș, Giroc
2 camere
57 mp
Etaj 3
Apartament cu 2 camere semidecomandat, mobilat în Giroc
89.900 €
Județul Timiș, Giroc
2 camere
43 mp
Etaj 3 / 3
Apartament cu 2 camere decomandat în Giroc
90.000 €
Județul Timiș, Giroc
2 camere
43 mp
Etaj 2
Apartament cu 2 camere semidecomandat, mobilat în Giroc
89.900 €
Județul Timiș, Giroc
2 camere
43 mp
Etaj 3
Apartament cu 2 camere în Giroc
89.990 €
Județul Timiș, Giroc
2 camere
43 mp
Etaj 2
Apartament cu 2 camere decomandat în Giroc
88.000 €
Județul Timiș, Giroc
2 camere
48 mp
Etaj 3 / 3

Abonează-te la newsletter să fii primul care primește cele mai noi recomandări de proprietăți și sfaturi de la experți.