Apartament luminos în Țiglina 1 – ideal pentru personalizare, aproape de Faleza

54.000 €

Ţiglina 1, Galaţi

Nr. camere:
2
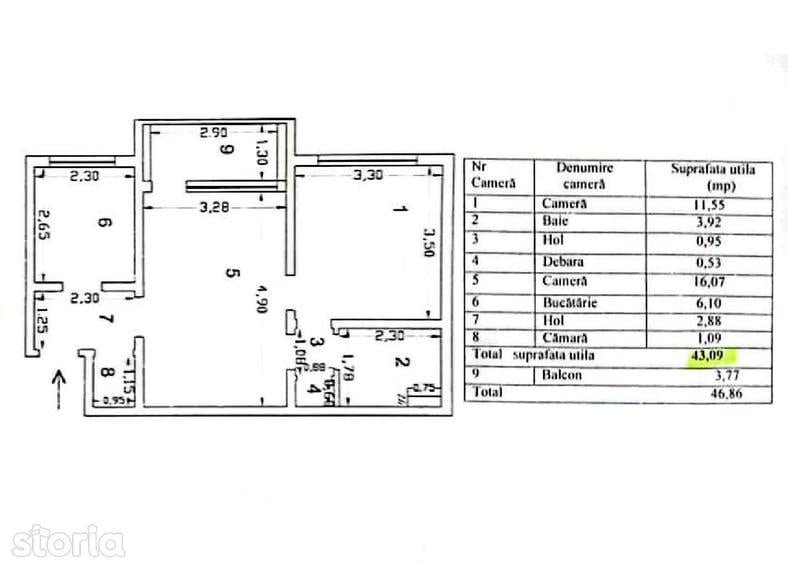
Suprafață utilă:
47 mp
Etaj:
3 / 4
An construcție:
1965
Nr. niveluri:
4

Descriere apartament

anubius Imobiliare vă propune spre achiziție un apartament cu adevărat promițător, situat în inima cartierului Țiglina 1, pe strada Saturn. Poziționat la etajul 3 și orientat către Vest, imobilul se bucură de lumină naturală pe tot parcursul după-amiezii, oferind un ambient cald și plăcut. Apartamentul dispune de izolație exterioară, tâmplărie PVC cu geam termopan și centrală termică – avantaje esențiale pentru confort și eficiență energetică. Interiorul necesită renovare, oferindu-vă însă oportunitatea ideală de a-l amenaja exact după gustul și nevoile dumneavoastră – transformându-l într-un cămin cu adevărat personal. Localizarea este unul dintre marile atuuri: la doar câteva minute de Faleza Dunării, cu acces rapid către piață, școli și instituții de învățământ apreciate, mijloace de transport în comun și numeroase facilități urbane. Zona este bine conectată și oferă acces facil către toate punctele importante ale orașului. Pentru detalii suplimentare sau programarea unei vizionări, nu ezitați să mă contactați!
Citește mai mult Citește mai puțin
Confort 1 Semidecomandat Centrală proprie

Detalii apartament

Actualizat în: 28 Mai 2026 ID anunț: 1431150
Nr. camere: 2
Suprafață utilă: 47 mp
Suprafață utilă totală: 47 mp
Compartimentare: Semidecomandat
Confort: 1
Etaj: Etaj 3 / 4
Nr. băi: 1
An construcție: 1965
Regim înălțime: P+4E

Istoric preț

Facilități

Utilități
Gaze Apă Canalizare Curent
Sistem încălzire
Centrală proprie
Amenajare străzi
Asfaltate Iluminat stradal Mijloace de transport în comun

Puncte de interes

Mijloace transport
transport
Oraselul Copiilor
Mijloace transport aprox. 384 m
transport
Tiglina 1
Mijloace transport aprox. 446 m
transport
Tiglina 2
Mijloace transport aprox. 481 m
transport
CEC Tiglina 2
Mijloace transport aprox. 725 m
Școală
education
Liceul Alexandru Ioan Cuza
Învățământ aprox. 220 m
education
Liceul Alexandru Ioan Cuza
Învățământ aprox. 235 m
education
Scoala Generala nr. 2
Învățământ aprox. 539 m
education
Gradinita nr. 9 Sf. Nicolae
Învățământ aprox. 892 m
Recreere
parks
Oraselul Copiilor
Recreere aprox. 273 m
restaurants
Interplaza
Restaurante aprox. 336 m
shopping
Kaufland
Supermarket/Mall aprox. 613 m
shopping
La doi pasi Market
Supermarket/Mall aprox. 721 m

Proprietăți similare

Apartament cu 2 camere decomandat în Țiglina 1
55.000 €
Galați, Țiglina 1
2 camere
54 mp
Etaj 4
Apartament cu 3 camere semidecomandat în Țiglina 1
59.000 €
Galați, Țiglina 1
3 camere
54 mp
Etaj 2 / 4
Apartament cu 2 camere semidecomandat în Țiglina 1
50.000 €
Galați, Țiglina 1
2 camere
39 mp
Apartament cu 2 camere semidecomandat în Țiglina 1
52.000 €
Galați, Țiglina 1
2 camere
48 mp
Etaj 1
Apartament cu 2 camere decomandat în Țiglina 1
55.000 €
Galați, Țiglina 1
2 camere
54 mp
1997
Apartament cu 2 camere semidecomandat în Țiglina 1
55.000 €
Galați, Țiglina 1
2 camere
43 mp
Parter
Apartament cu 2 camere semidecomandat în Țiglina 1
58.000 €
Galați, Țiglina 1
2 camere
47 mp
1965
Apartament cu 2 camere decomandat în Țiglina 1
55.000 €
Galați, Țiglina 1
2 camere
48 mp
Etaj 4
Apartament cu 2 camere semidecomandat în Țiglina 1
59.000 €
Galați, Țiglina 1
2 camere
44 mp
Etaj 2

Abonează-te la newsletter să fii primul care primește cele mai noi recomandări de proprietăți și sfaturi de la experți.