
5 luni în urmă
2
- Agenție
Apartament cu 3 camere in Galati, Nord City Residence, TVA inclus de 9%
127.857 €
Nord, Galați
Descriere
Raportează anunț
Sesizează o problemă
Apartament cu 3 camere in Galati, Nord City Residence, TVA inclus de 9%
Apartament cu 3 camere in Galati, Nord City Residence, TVA inclus de 9%
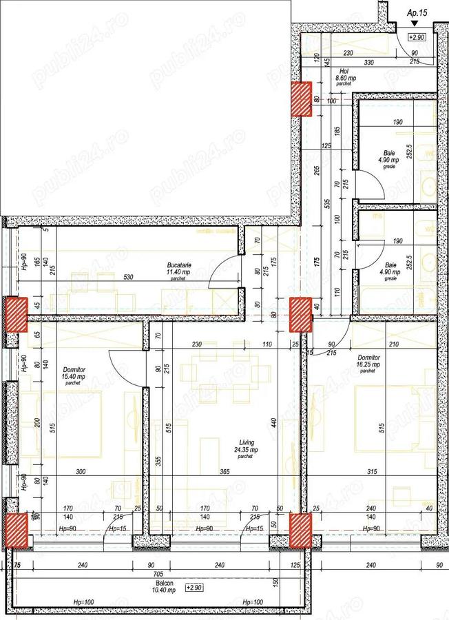
Agentia Imobiliara FAMILIA va propune oferta Exclusiva de vanzare a unui apartament cu trei camere in complexul Nord City Residence situat pe strada Traian langa Complex VIVA cu piscina, hai sa aprofundam putin proiectul pentru cei care nu cunosc zona putem spune ca in ultimii ani s-a dezvoltat foarte mult prin construirea multor imobile comerciale( sala de fitness, marketuri LIDL, Metro, diverse servicii si activitati comerciale), proprietati rezidentiale in special case si vile iar acum avem oportunitatea de a alege un apartament cu loc de parcare privat in acest nou complex, daca v-am facut curiosi ne puteti scrie pe whatsapp si va vom furniza toate informatiile necesare. Imobilul are 5 etaje, la parter vom avea spatii comerciale care vor deservi nevoilor rezidentiale, preturile difera in functie de etaj, iar la ultimul etaj avem oportunitatea de a alege apartamente de tip penthouse cu o terasa generoasa si de ce nu pentru ca sunteti primii puteti alege doua apartamente unul langa altul si sa va faceti un apartament cu o suprafata mai generoasa, depinde de bugetul dumneavoastra si preferinte. Apartamentul pe care il prezentam este cu 3 camere dipus la etajul 3, pozitionat pe Sud-Vest, din schita observam compartimentarea in 2 dormitoare mari, 1 living,1 bucatarie care este separata, 2 grupuri sanitare si un balcon generos, toate in suprafata utila de 96mp. si suprafata construita de 112.5mp. In acest pret se va preda cu incalzire in pardoseala, finisat pana la var, parchet, gresie si faianta la alegere din paleta de modele oferite de dezvoltator, optional se poate opta pentru alte modele care vor genera costuri suplimentare dar aceste aspecte se vor discuta dupa ce va decideti pe ce varianta de pret optati. * LOC PARCARE EXTERIOARA - 4000 euro + TVA 19% * LA PRETUL DE 117.300 Euro SE ADAUGA TVA DE 9% = 127.857 Euro * LA PRETUL DE 117.300 Euro SE ADAUGA TVA DE 19% = 139.587 Euro in cazul in care ati beneficiat deja de o achizitie locuinta noua cu TVA 9% atunci va incadrati la varianta de TVA 19% Acest apartament pe care l-am prezentat este o varianta pe care o puteti alege iar preturile difera in fuctie de etaj, optiunea de plata, momentul la care faceti oferta in functie de fazele de constructie. Va multumim, pentru mai multe detalii va rog sa ne contactati, Ionut Ganea
0744 ****phone_0
Vezi tot numărul
Agentia Imobiliara FAMILIA ID anun?
Citește mai mult
Citește mai puțin
ID anunț: 6768977
Actualizat în: 24 August 2025
Nr. camere:
3
Suprafață utilă:
96 mp
Suprafață utilă totală:
96 mp
Etaj:
Etaj 3
Istoric preț
Utilități
Utilități
Apă
Gaze
Proprietăți similare
Abonează-te la newsletter să fii primul care primește cele mai noi recomandări de proprietăți și sfaturi de la experți.
Căutări similare
- Apartamente de vânzare în Nord
- Apartamente de vânzare în Galați
- Apartamente de vânzare în Central
- Apartamente de vânzare în Siderurgiștilor
- Apartamente de vânzare în I. C. Frimu
- Apartamente de vânzare în Țiglina 1
- Apartamente de vânzare în Țiglina 2
- Apartamente de vânzare în Mazepa 1
- Apartamente de vânzare în Faleză
- Apartamente de vânzare în Micro 16
- Apartamente de vânzare în Micro 17
- Apartamente de vânzare în Micro 19