REA1024706 2 Camere - Bloc Nou Fundeni-Dobroesti

96.000 €

Fundeni, Judeţul Ilfov

Nr. camere:
2
Suprafață utilă:
58 mp
Etaj:
1 / 3
An construcție:
2025
Nr. niveluri:
3

Descriere apartament

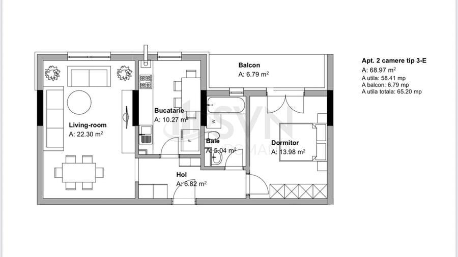
Avem deosebita placere de a va oferi spre vanzare un apartament de 2 camere aflat in zona Fundeni-Dobroesti. Apartamentul este situat la etajul 1 al unui imobil cu 3 etaje finalizat in anul 2025 (imobilul detine lift). Apartamentul dispune de o impartire decomandata, este compus din: hol, living, bucatarie separata, dormitor, baie si terasa, astfel suprafata totala a apartamentului fiind de 65,20 mp. Imobilul are o structura de rezistenta din beton armat, peretii exteriori si interiori sunt realizati din caramida Porotherm, izolatie termica exterioara din polistiren de 10 cm grosime. Apartamentul beneficiaza de finisaje de calitate superioara: parchet, gresie, faianta, centrala termica individuala marca Romstal, ferestre termopan cu tamplarie PVC Salamander, usa metalica, interfon. Separat, se poate achizitiona si 1 loc de parcare exterior la pretul de 3000 euro. Nu se accepta plata prin rate la dezvoltator. In vecinatate se afla complexul comercial Dragonul Rosu, Scoala Campus, Institutul clinic Fundeni, gradinite, restaurante, farmacii si magazine. Pentru mai multe detalii si vizionari va stau la dispozitie.
Citește mai mult Citește mai puțin
Confort 1 Decomandat Aer condiționat Calorifere Centrală proprie

Detalii apartament

ID anunț: 3065650 Actualizat în: 19 Martie 2026
Nr. camere: 2
Suprafață utilă: 58 mp
Suprafață utilă totală: 58 mp
Compartimentare: Decomandat
Confort: 1
Etaj: Etaj 1 / 3
Nr. băi: 1
An construcție: 2025
Regim înălțime: P+3E

Istoric preț

Facilități

Pereți
Faianță
Podele
Gresie Parchet
Ferestre cu geam termopan
PVC
Utilități
Gaze Curent
Sistem încălzire
Centrală proprie Calorifere
Internet
Wireless
Climatizare
Aer condiționat
Facilități imobil
Interfon Lift

Puncte de interes

Mijloace transport
transport
Complex Comercial Niro statie 254
Mijloace transport aprox. 1068 m
transport
p.o. Pantelimon Sud
Mijloace transport aprox. 1125 m
transport
Pantelimon Sud
Mijloace transport aprox. 1135 m
transport
Pantelimon
Mijloace transport aprox. 1363 m
Școală
education
Scoala Nr. 41
Învățământ aprox. 1666 m
education
Şcoala generală nr.1
Învățământ aprox. 1767 m
education
Colegiul national Victor Babes
Învățământ aprox. 1877 m
education
"Victor Babes" Highschool (en)
Învățământ aprox. 1898 m
Recreere
shopping
Dragonul Rosu 4
Supermarket/Mall aprox. 748 m
shopping
Dragonul Rosu 5
Supermarket/Mall aprox. 848 m
parks
Teren sportiv
Recreere aprox. 943 m
restaurants
Carnaciori cu bere
Restaurante aprox. 950 m

Proprietăți similare

Apartament cu 3 camere semidecomandat, mobilat în Fundeni
100.000 €
Județul Ilfov, Fundeni
3 camere
67 mp
Parter / 4
Apartament cu 2 camere decomandat, mobilat în Fundeni
105.000 €
Județul Ilfov, Fundeni
2 camere
69 mp
Etaj 3
Apartament cu 2 camere în Chiajna
103.455 €
Județul Ilfov, Chiajna
2 camere
57 mp
Etaj 5
Apartament cu 2 camere decomandat în Central
87.920 €
Județul Ilfov, Popești-Leordeni
2 camere
58 mp
Etaj 2
Apartament cu 2 camere decomandat, mobilat în Dobroești
98.500 €
Județul Ilfov, Dobroești
2 camere
52 mp
Etaj 1 / 3
Apartament cu 2 camere semidecomandat în Berceni
88.500 €
Județul Ilfov, Berceni
2 camere
56 mp
Etaj 1
Apartament cu 2 camere decomandat în Central
98.250 €
Județul Ilfov, Popești-Leordeni
2 camere
63 mp
Etaj 1
Apartament cu 3 camere decomandat, mobilat în Chiajna
105.000 €
Județul Ilfov, Chiajna
3 camere
62 mp
Etaj 1 / 7
Apartament cu 3 camere decomandat în Chiajna
90.000 €
Județul Ilfov, Chiajna
3 camere
67 mp
Etaj 4

Abonează-te la newsletter să fii primul care primește cele mai noi recomandări de proprietăți și sfaturi de la experți.