Apartament cu 3 camere/70mp/parcare/zona Somesului.

144.000 €

Floreşti, Judeţul Cluj

Nr. camere:
3
Suprafață utilă:
70,3 mp
Etaj:
1 / 4
An construcție:
2020
Nr. niveluri:
4

Descriere apartament

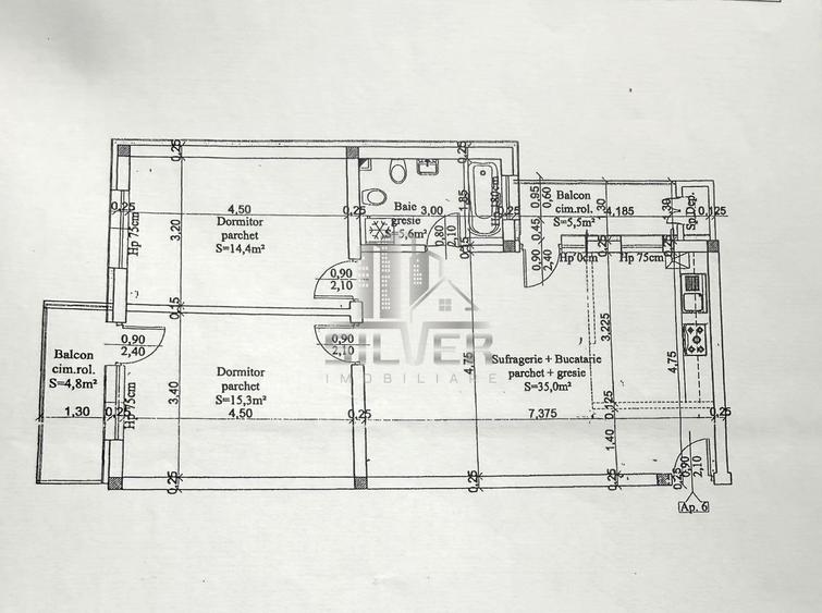
Apartament in zona linistita si aerisita! Silver Imobiliare ofera spre vanzare apartament cu 3 camere situat in Floresti, zona strazii Somesului la etaj 1 intr-un imobil calitativ dispus pe 4 niveluri cu acces facil spre Cluj-Napoca. Apartamentul este orientat sud-este, are suprafata utila de 70.3mp+2 balcoane (1 balcon prevazut cu camara) cu suprafata totala de 11.55 mp+camara, fiind compartimentat astfel: - camera de zi spatioasa impreuna cu bucataria; - 2 dormitoare; - baie prevazuta cu geam; - balcon de 5.5 mp+camara de 1,25 mp cu acces din camera de zi; - balcon de 4.8 mp inchis cu tamplarie din Pvc cu acces din dormitorul principal La nivel de finisaje apartamentul se prezinta in stare foarte buna, avand pereti zugraviti cu vopsea lavabila, pardosea cu gresie si parchet laminat, usi interioare tip Porta Doors, geamuri termoizolante din Pvc, usa acces metalica cu 6 puncte de inchidere/antiefractie, iar confortul termic este cu centrala termica proprie in condensare marca BOSCH ( in garantie) si calorifere. Apartamentul se vinde complet mobilat si utilat cu mici exceptii+1 PARCARE exterioara inclusa in pretul listat. Pentru alte detalii sau programarea unei vizionari, apelati cu incredere!
Citește mai mult Citește mai puțin
Confort 1 Semidecomandat Mobilat Mobilat Calorifere Centrală proprie

Detalii apartament

ID anunț: 3604446 Actualizat în: 24 Februarie 2026
Nr. camere: 3
Suprafață utilă: 70,3 mp
Suprafață utilă totală: 70,3 mp
Compartimentare: Semidecomandat
Confort: 1
Etaj: Etaj 1 / 4
Nr. băi: 1
An construcție: 2020
Regim înălțime: P+4E

Istoric preț

Facilități

Pereți
Vopsea lavabilă
Podele
Gresie Parchet
Ușă intrare
PVC Parchet Metal
Izolații termice
Exterior
Ferestre cu geam termopan
PVC
Contorizare
Apometre Contor gaz
Bucătărie
Mobilată Utilată
Mobilat
Mobilat
Electrocasnice
Aragaz Frigider Hotă Mașină de spălat TV
Diverse
Telecomandă poartă acces auto
Alte spații utile
Debara
Facilități imobil
Interfon
Utilități
Curent Apă Canalizare Gaze Aragaz / Plită Frigider Mașină de spălat rufe TV Cablu
Sistem încălzire
Calorifere Centrală proprie
Internet
Cablu
Amenajare străzi
Iluminat stradal Mijloace de transport în comun Asfaltate

Puncte de interes

Mijloace transport
transport
Iuliu Hossu
Mijloace transport aprox. 485 m
transport
M-Complex Floresti
Mijloace transport aprox. 550 m
transport
Somesului
Mijloace transport aprox. 663 m
transport
Poligonului E
Mijloace transport aprox. 675 m
Recreere
shopping
Diana
Supermarket/Mall aprox. 355 m
restaurants
City Cafe
Restaurante aprox. 483 m
shopping
Lidl
Supermarket/Mall aprox. 869 m
parks
Parc
Recreere aprox. 908 m

Proprietăți similare

Apartament cu 2 camere semidecomandat în Florești
141.000 €
Județul Cluj, Florești
2 camere
49 mp
Etaj 3
Apartament cu 3 camere semidecomandat, mobilat în Florești
130.000 €
Județul Cluj, Florești
3 camere
64 mp
Etaj 1
Apartament cu 3 camere semidecomandat, mobilat în Florești
135.000 €
Județul Cluj, Florești
3 camere
58,7 mp
Etaj 3
Apartament cu 3 camere semidecomandat, mobilat în Florești
147.000 €
Județul Cluj, Florești
3 camere
67 mp
Etaj 1 / 4
Apartament cu 2 camere decomandat în Florești
133.900 €
Județul Cluj, Florești
2 camere
50 mp
Etaj 1
Apartament cu 2 camere semidecomandat în Florești
145.000 €
Județul Cluj, Florești
2 camere
52 mp
Etaj 4
Apartament cu 4 camere decomandat, mobilat în Florești
135.000 €
Județul Cluj, Florești
4 camere
125 mp
Etaj 3
Apartament cu 2 camere decomandat, mobilat în Florești
145.000 €
Județul Cluj, Florești
2 camere
55 mp
Etaj 1
Apartament cu 2 camere semidecomandat, mobilat în Florești
129.900 €
Județul Cluj, Florești
2 camere
50,6 mp
Parter

Abonează-te la newsletter să fii primul care primește cele mai noi recomandări de proprietăți și sfaturi de la experți.