Apartament 3 camere | 2 băi | zona Tăuțului / Subcetate / Poligon

146.000 €

Floreşti, Judeţul Cluj

Nr. camere:
3
Suprafață utilă:
69,66 mp
Etaj:
Parter / 3
An construcție:
2024
Nr. niveluri:
3

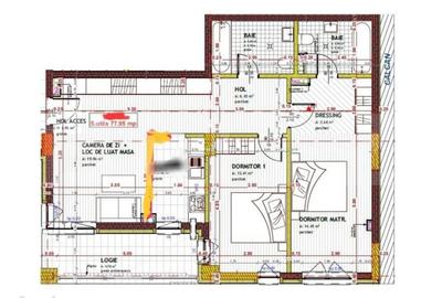
Descriere apartament

Vă propunem spre vânzare un apartament cu 3 camere, situat în zona Tăuțiului, într-un ansamblu rezidențial modern, conceput pentru a oferi confort, siguranță și acces facil către oraș. Locuința are o suprafață utilă de 70 mp și este amplasată la parter, fiind ideală atât pentru familii, cât și pentru persoane care își doresc acces facil, fără scări. Compartimentarea este practică și bine optimizată, incluzând un living generos cu bucătărie open-space, două dormitoare și două băi, oferind un plus de confort și funcționalitate. Apartamentul se predă finisat, realizat cu materiale de calitate superioară și atenție la detalii. Beneficiază de tâmplărie PVC premium REHAU (3 foi de sticlă, 5 camere), încălzire în pardoseală cu centrală termică proprie Saunier Duval, parchet Egger, gresie și faianță de calitate (Cesarom/import), ușă de intrare antiefracție Mega Doors și uși interioare Porta Doors. Instalațiile electrice sunt complet echipate, iar cele sanitare sunt trase la poziție, cu obiecte sanitare incluse. Imobilul este dotat cu lift și face parte dintr-un ansamblu modern, ce oferă locatarilor spații verzi amenajate, zone de relaxare, parcări securizate (supraterane și subterane) și sistem de supraveghere video 24/7. Zona este în plină dezvoltare și oferă multiple avantaje: proximitatea parcului Poligon și a pădurii, acces facil către mijloace de transport, școli, grădinițe și centre comerciale, precum și două rute rapide de legătură cu Cluj-Napoca. În apropiere se află și viitorul spital regional. Opțional, se poate achiziționa loc de parcare exterior la 6.000 € sau garaj la 8.000 €. Proprietatea este potrivită atât pentru locuință proprie, cât și pentru investiție, oferind un echilibru excelent între spațiu, confort și locație. Pentru mai multe detalii sau programarea unei vizionări, vă stau la dispoziție. P155887
Citește mai mult Citește mai puțin
Semidecomandat Nemobilat Centrală proprie Bine întreținut (Bună)

Detalii apartament

ID anunț: 4245888 Actualizat în: 24 Aprilie 2026
Nr. camere: 3
Suprafață utilă: 69,66 mp
Suprafață utilă totală: 69,66 mp
Compartimentare: Semidecomandat
Etaj: Parter / 3
Nr. băi: 2
An construcție: 2024
Regim înălțime: P+3E

Istoric preț

Facilități

Jaluzele
Verticale
Pereți
Vopsea lavabilă
Podele
Parchet
Ușă intrare
Parchet PVC Metal Lemn
Uși interior
PVC Lemn
Stare interior
Stare bună
Izolații termice
Exterior
Ferestre cu geam termopan
PVC Lemn
Utilități
Curent Apă Canalizare Gaze
Sistem încălzire
Centrală proprie
Mobilat
Nemobilat
Facilități imobil
Interfon Lift
Amenajare străzi
Asfaltate Iluminat stradal Mijloace de transport în comun

Puncte de interes

Mijloace transport
transport
Tautiului S
Mijloace transport aprox. 704 m
transport
Tautiului N
Mijloace transport aprox. 726 m
transport
Sub Cetate E
Mijloace transport aprox. 753 m
transport
Sub Cetate V
Mijloace transport aprox. 771 m
Recreere
parks
Parcul Poligon
Recreere aprox. 398 m
restaurants
Atelierul de Pizza
Restaurante aprox. 1115 m
shopping
Diana
Supermarket/Mall aprox. 1632 m
shopping
Profi Floresti
Supermarket/Mall aprox. 1698 m

Proprietăți similare

Apartament cu 2 camere semidecomandat în Florești
135.000 €
Județul Cluj, Florești
2 camere
52 mp
Etaj 1 / 2
Apartament cu 3 camere semidecomandat, mobilat în Florești
145.000 €
Județul Cluj, Florești
3 camere
72,5 mp
Parter / 4
Apartament cu 2 camere semidecomandat, mobilat în Florești
135.000 €
Județul Cluj, Florești
2 camere
52 mp
Etaj 1 / 7
Apartament cu 4 camere semidecomandat în Florești
139.000 €
Județul Cluj, Florești
4 camere
77,95 mp
2026
Apartament cu 4 camere semidecomandat în Florești
139.000 €
Județul Cluj, Florești
4 camere
77,95 mp
Parter
Apartament cu 2 camere semidecomandat, mobilat în Florești
144.720 €
Județul Cluj, Florești
2 camere
53,6 mp
Parter
Apartament cu 2 camere decomandat, mobilat în Florești
142.500 €
Județul Cluj, Florești
2 camere
54 mp
Etaj 1
Apartament cu 3 camere semidecomandat, mobilat în Florești
134.000 €
Județul Cluj, Florești
3 camere
56 mp
Etaj 3
Apartament cu 2 camere decomandat, mobilat în Florești
159.900 €
Județul Cluj, Florești
2 camere
53 mp
Parter

Abonează-te la newsletter să fii primul care primește cele mai noi recomandări de proprietăți și sfaturi de la experți.