Apartament 3 Camere | 64 mp | Curte 60 mp | Parcare | Terra Floresti

€ 115.000

Floreşti, Judeţul Cluj

Nr. camere:
3
Suprafață utilă:
64,23 mp
Etaj:
Parter / 4
An construcție:
2012
Nr. niveluri:
4

Descriere

Raportează anunț

Apartament 3 Camere | 64 mp | Curte 60 mp | Parcare | Terra Floresti

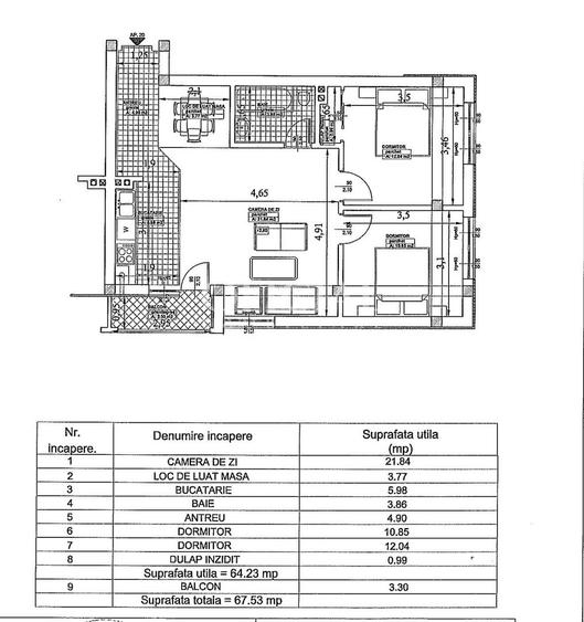
ID: OFC 2849490 Oferta in Reprezentare Exclusiva cu Comision 0% pentru cumparator. Va oferim spre vanzare un apartament de 3 camere semidecomandat, situat in zona Terra, mai exact pe strada Sesul de Sus. Proprietatea este ideala pentru o familie care isi doreste confort, intimitate, si acces facil catre toate punctele de interes din zona. Locuinta are o suprafata utila de 64,23 mp si este compartimentata astfel: - 1 living spatios impreuna cu bucataria si cu iesire in curte - 2 dormitoare - 1 baie - 1 hol de acces - 1 balcon de 3,30 mp Curtea are o suprafata de aproximativ 60 mp, este amenajata, contine si un foisor, spatiu verde, fiind ideala pentru relaxare sau momente petrecute impreuna cu familia si prietenii. Apartamentul se vinde partial mobilat, utilat si cu un loc de parcare exterior, inclus in pretul afisat. Confortul termic este asigurat de centrala termica proprie si izolatia exterioara, iar la nivelul finisajelor regasim: parchet, geamuri termopan, gresie, faianta, aer conditionat, usa de metal la intare, vopsea lavabila, etc. Proprietatea este amplasta in imediata vecinatate a multor puncte majore de interes: statie de autobuz, gradinita, supermarket, diferite magazine, farmacie, cabinete medicale, restaurante, etc. Pentru mai multe detalii sau programarea unei vizionari, nu ezitati sa ne contactati! ID: OFC 2849490
Citește mai mult Citește mai puțin
ID anunț: 3175149 Actualizat în: 15 Ianuarie 2026
Nr. camere: 3
Suprafață utilă: 64,23 mp
Suprafață utilă totală: 64,23 mp
Compartimentare: Semidecomandat
Confort: 1
Etaj: Parter / 4
Nr. băi: 1
An construcție: 2012
Regim înălțime: P+4E

Istoric preț

Utilități

Utilități
Apă Gaze Climă Canalizare Mașină de spălat vase Mașină de spălat rufe Frigider Aragaz / Plită TV
Facilități
Mobilat Balcon

Proprietăți similare

Apartament cu 3 camere semidecomandat, mobilat în Florești
€ 122.500
Județul Cluj, Florești
3 camere
73,58 mp
Etaj 1 / 2
Apartament cu 2 camere decomandat, mobilat în Florești
€ 107.500
Județul Cluj, Florești
2 camere
58 mp
Parter
Apartament cu 2 camere semidecomandat, mobilat în Florești
€ 109.500
Județul Cluj, Florești
2 camere
44 mp
Etaj 5
Apartament cu 2 camere decomandat, mobilat în Florești
€ 117.500
Județul Cluj, Florești
2 camere
50 mp
Etaj 1 / 3
Apartament cu 3 camere semidecomandat în Florești
€ 110.000
Județul Cluj, Florești
3 camere
60 mp
Etaj 2 / 3
Apartament cu 2 camere semidecomandat în Florești
€ 124.900
Județul Cluj, Florești
2 camere
60 mp
Etaj 2 / 2
Apartament cu 2 camere semidecomandat în Florești
€ 118.000
Județul Cluj, Florești
2 camere
53 mp
Etaj 1
Apartament cu 2 camere semidecomandat, mobilat în Florești
€ 125.000
Județul Cluj, Florești
2 camere
54,85 mp
Etaj 6 / 8
Apartament cu 3 camere în Florești
€ 109.000
Județul Cluj, Florești
3 camere
58,53 mp
Etaj 3 / 3

Abonează-te la newsletter să fii primul care primește cele mai noi recomandări de proprietăți și sfaturi de la experți.