Apartament modern cu 2 camere, complet mobilat, 56 mp, parcare, terasa, Eroilor

127.000 €

Floreşti, Judeţul Cluj

Nr. camere:
2
Suprafață utilă:
56 mp
Etaj:
3 / 8
An construcție:
2025
Nr. niveluri:
8

Descriere apartament

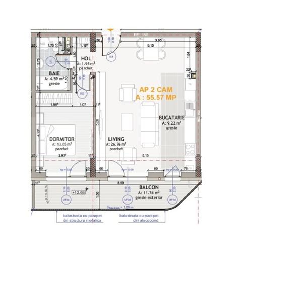
Blitz va ofera spre vanzare un apartament modern cu 2 camere, situat pe strada Eroilor, intr-o zona foarte cautata datorita accesului excelent catre magazine, statii de transport in comun si spatii verzi. Apartamentul este pozitionat la etajul 4 al unui imobil cu 8 etaje, intr-o cladire ingrijita si bine construita. Acesta dispune de o suprafata utila de 56 mp, la care se adauga o terasa de 12mp, ideala pentru relaxare. Compartimentarea semidecomandata este eficient realizata si se prezinta astfel: living modern cu bucatarie open-space, dormitor luminos, baie complet echipata si hol cu spatii de depozitare. Finisajele si mobilierul sunt de categorie superioara, apartamentul avand bucatarie complet mobilata, dotata cu electrocasnice incorporabile, living amenajat modern, dormitor mobilat functional si baie complet utilata. Locuinta este foarte luminoasa si ofera o atmosfera primitoare, fiind potrivita atat pentru locuit, cat si ca investitie cu randament excelent. Optional se poate achizitiona un loc de parcare subteran la pretul de 9.000 euro. Nu ezitati sa ne contactati pentru mai multe detalii sau pentru stabilirea unei vizionari! Cod oferta / ID BLITZ: P164312
Citește mai mult Citește mai puțin
Confort 1 Semidecomandat Nemobilat Centrală proprie

Detalii apartament

ID anunț: 3507122 Actualizat în: 16 Februarie 2026
Nr. camere: 2
Suprafață utilă: 56 mp
Suprafață utilă totală: 56 mp
Compartimentare: Semidecomandat
Confort: 1
Etaj: Etaj 3 / 8
Nr. băi: 1
An construcție: 2025
Regim înălțime: P+8E

Istoric preț

Facilități

Pereți
Vopsea lavabilă
Izolații termice
Exterior
Contorizare
Apometre Contor căldură Contor gaz
Bucătărie
Mobilată
Mobilat
Nemobilat
Utilități
Curent Apă Canalizare Gaze
Sistem încălzire
Centrală proprie

Puncte de interes

Mijloace transport
transport
M-Cartier Terra
Mijloace transport aprox. 902 m
transport
M-Prof. Dumitru Mocanu
Mijloace transport aprox. 1128 m
transport
M-Prof. Dumitru Mocanu E
Mijloace transport aprox. 1132 m
transport
M-Prof. Dumitru Mocanu V
Mijloace transport aprox. 1138 m
Recreere
parks
Parc
Recreere aprox. 622 m
restaurants
Pizza Pizza
Restaurante aprox. 739 m
shopping
Profi
Supermarket/Mall aprox. 1380 m
shopping
Profi Floresti
Supermarket/Mall aprox. 1380 m

Proprietăți similare

Apartament cu 3 camere decomandat, mobilat în Florești
120.000 €
Județul Cluj, Florești
3 camere
53 mp
Parter / 4
Apartament cu 2 camere semidecomandat în Florești
114.900 €
Județul Cluj, Florești
2 camere
58 mp
Etaj 4
Apartament cu 3 camere semidecomandat, mobilat în Florești
118.000 €
Județul Cluj, Florești
3 camere
60 mp
Etaj 1
Apartament cu 2 camere semidecomandat, mobilat în Florești
125.000 €
Județul Cluj, Florești
2 camere
52 mp
Parter
Apartament cu 3 camere semidecomandat, mobilat în Florești
130.000 €
Județul Cluj, Florești
3 camere
64 mp
Etaj 1 / 4
Apartament cu 3 camere semidecomandat, mobilat în Florești
132.500 €
Județul Cluj, Florești
3 camere
55 mp
Etaj 6
Apartament cu 3 camere decomandat, mobilat în Florești
137.000 €
Județul Cluj, Florești
3 camere
60 mp
Etaj 3
Apartament cu 3 camere decomandat, mobilat în Florești
135.000 €
Județul Cluj, Florești
3 camere
60 mp
Etaj 2
Apartament cu 3 camere semidecomandat, mobilat în Florești
139.000 €
Județul Cluj, Florești
3 camere
74 mp
Etaj 2 / 4

Abonează-te la newsletter să fii primul care primește cele mai noi recomandări de proprietăți și sfaturi de la experți.