Apartament de 2 camere finisat modern, 52mp, parcare subterana, Terra

114.999 €

Floreşti, Judeţul Cluj

Nr. camere:
2
Suprafață utilă:
52 mp
Etaj:
3 / 3
An construcție:
2025
Nr. niveluri:
3

Descriere apartament

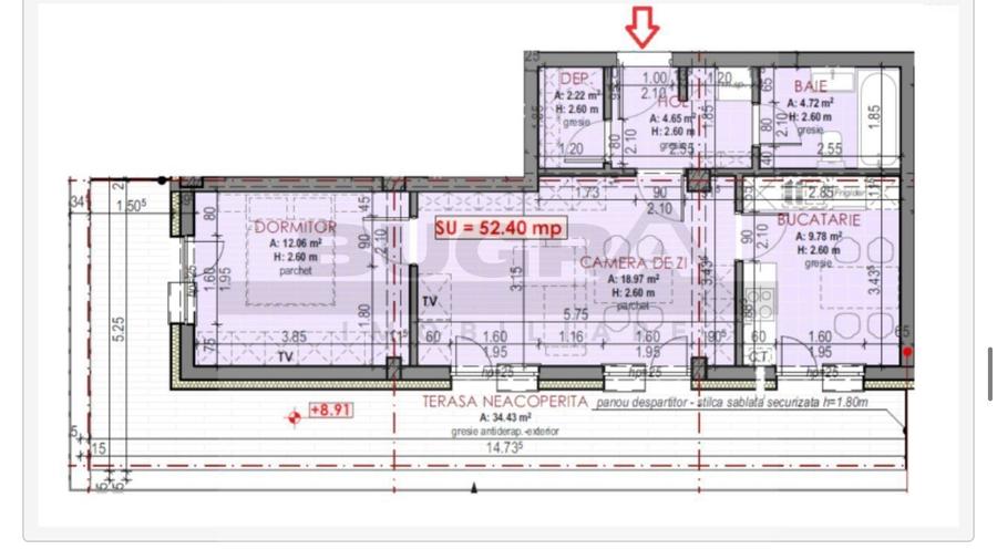
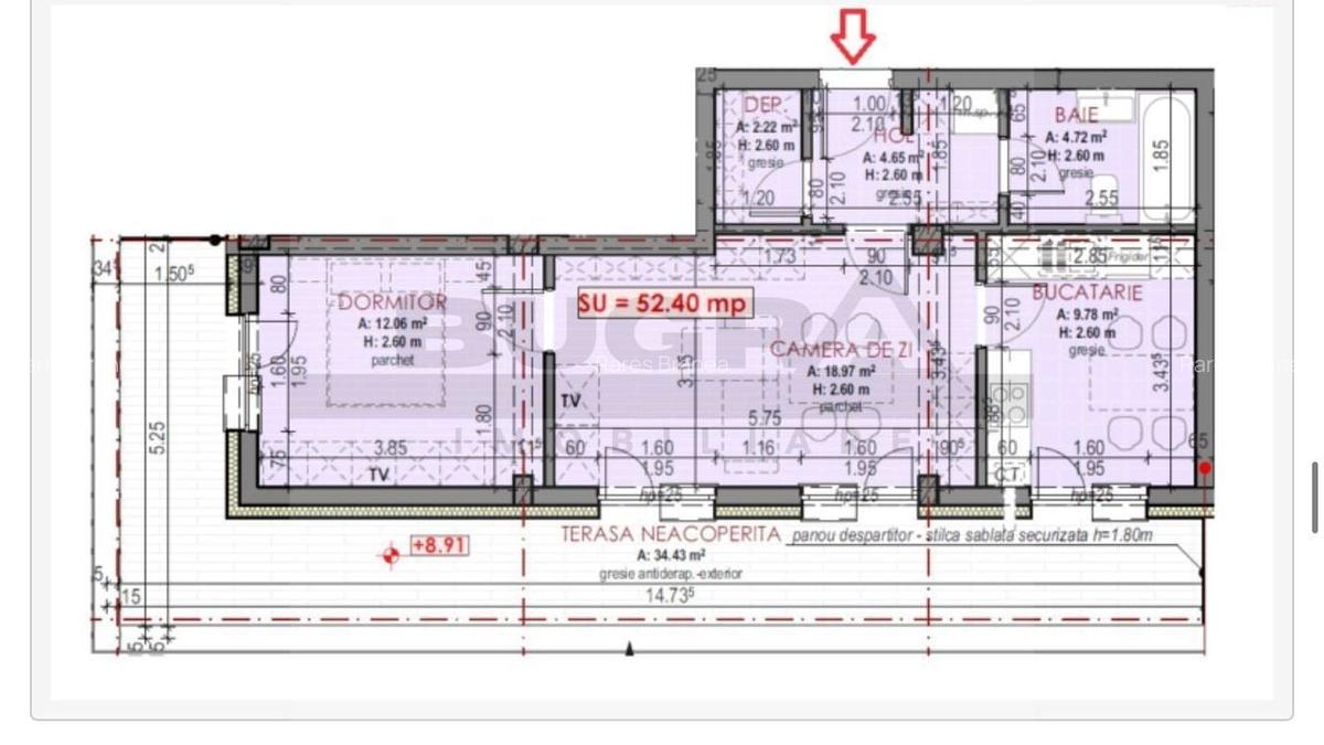
Bugra Imobiliare va ofera spre vanzare o oportunitate investitionala de 2 camere, cu o suprafata utila de 52mp + terasa 33mp, dotata cu finisaje de calitate superioara, incalzire in pardoseala si orientare sudica, ideala si pentru locuinta proprie fiind un apartament luminos, calduros, retras de zgomotul traficului urban, ideal pentru persoanele care isi doresc o locuinta intr-un ansamblu rezidential nou, discret. Apartamentul are o compartimentare moderna, care este gandita in prezent astfel: living, bucatarie separata, dormitor, baie, hol, anexa pentru depozitare. Proprietatea ofera posibilitatea viitorului cumparator sa schimbe cu usurinta compartimentarea acestuia, avand posibilitatea sa faca 2 dormitoare separate cu living open-space, varianta ideala pentru o familie. Imobilul dispune in apropierea sa de multspatiu verde, liniste, mijloace de transport in comun, supermarketuri aferente zonei. In pretul afisat este inclus si un loc de parcare propriu subteran. Disponibil imediat, va asteptam lavizionare
Citește mai mult Citește mai puțin
Confort 1

Detalii apartament

ID anunț: 2869712 Actualizat în: 17 Februarie 2026
Nr. camere: 2
Suprafață utilă: 52 mp
Suprafață utilă totală: 52 mp
Confort: 1
Etaj: Etaj 3 / 3
Nr. băi: 1
An construcție: 2025
Regim înălțime: P+3E

Istoric preț

Facilități

Utilități
Curent Apă Canalizare Gaze Cablu
Internet
Cablu
Alte spații utile
Terasă
Amenajare străzi
Iluminat stradal Mijloace de transport în comun Asfaltate
Izolații termice
Exterior Interior

Puncte de interes

Mijloace transport
transport
M-Cartier Terra
Mijloace transport aprox. 369 m
transport
M-Prof. Dumitru Mocanu
Mijloace transport aprox. 612 m
transport
M-Prof. Dumitru Mocanu V
Mijloace transport aprox. 619 m
transport
M-Prof. Dumitru Mocanu E
Mijloace transport aprox. 619 m
Recreere
parks
Parc
Recreere aprox. 712 m
restaurants
Il Milanese
Restaurante aprox. 789 m
shopping
Profi Floresti
Supermarket/Mall aprox. 1285 m
shopping
Profi
Supermarket/Mall aprox. 1285 m

Proprietăți similare

Apartament cu 3 camere, mobilat în Florești
125.000 €
Județul Cluj, Florești
3 camere
74 mp
Parter / 4
Apartament cu 3 camere semidecomandat în Florești
115.000 €
Județul Cluj, Florești
3 camere
54 mp
Etaj 1
Apartament cu 3 camere semidecomandat, mobilat în Florești
120.000 €
Județul Cluj, Florești
3 camere
67 mp
Etaj 1
Apartament cu 3 camere semidecomandat, mobilat în Florești
120.000 €
Județul Cluj, Florești
3 camere
51 mp
Etaj 2 / 4
Apartament cu 3 camere semidecomandat în Florești
112.900 €
Județul Cluj, Florești
3 camere
55 mp
Etaj 7
Apartament cu 2 camere decomandat, mobilat în Florești
112.000 €
Județul Cluj, Florești
2 camere
50 mp
Etaj 2
Apartament cu 2 camere semidecomandat, mobilat în Florești
114.900 €
Județul Cluj, Florești
2 camere
55 mp
Parter / 3
Apartament cu 2 camere decomandat în Florești
120.000 €
Județul Cluj, Florești
2 camere
59 mp
Parter
Apartament cu 3 camere semidecomandat în Florești
118.000 €
Județul Cluj, Florești
3 camere
66 mp
Etaj 1

Abonează-te la newsletter să fii primul care primește cele mai noi recomandări de proprietăți și sfaturi de la experți.