Vand Apartament 3 Cam. Dobroesti Fundeni Str. Trifoiului Nr. 43

€ 99.700

Dobroeşti, Judeţul Ilfov

Nr. camere:
3
Suprafață utilă:
89 mp
Etaj:
1 / 4
An construcție:
2026
Nr. niveluri:
4

Descriere

Raportează anunț

Vand Apartament 3 Cam. Dobroesti Fundeni Str. Trifoiului Nr. 43

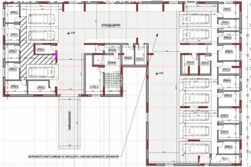
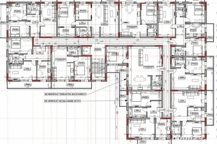
Cititi cu Aten?ie Faza de Proiect !!!Dezvoltator, vand Garsoniera 43mp suprafa?a utila cu balconmp, apartament 2 Cam si Tip Studiou sup utila cu Balcon 52-70 mp ,?i Apartament 3 cam suprafat 89 mp cu balcon ,la etajele 1-4 , la cheie toate utilitatile, Lift Parcare Subterana si Suprateran .. PRET INTRE 1120 si 1220 EURO +TVA mp. Avans minim 5%. Ansamblul este compus din 4 blocuri D+P+ 4 r pe un teren de 10000 mp ,cu loc de joaca ,spatiu verde ,spatiu comercial ,parcarea se achita separat , 3500 +TVA . Apartamentele se pot vinde Cash ,Credit ,( Sau cu rate la dezvoltator maxim 3 ani ) Constructia Ansamblul va incepe in luna Februarie 2026 ,Se Afla Pe Strada Trifoiului Nr. 43 Strada Asfaltata. Tel. ID anun? : 1764517663
Citește mai mult Citește mai puțin
ID anunț: 2846994 Actualizat în: 23 Ianuarie 2026
Nr. camere: 3
Suprafață utilă: 89 mp
Suprafață utilă totală: 89 mp
Compartimentare: Decomandat
Confort: 1
Etaj: Etaj 1 / 4
Nr. băi: 2
An construcție: 2026
Regim înălțime: P+4E

Istoric preț

Utilități

Utilități
Apă Gaze Internet
Facilități
Boxă

Proprietăți similare

Apartament cu 2 camere decomandat, mobilat în Dobroești
€ 92.000
Județul Ilfov, Dobroești
2 camere
53,22 mp
Etaj 4 / 4
Apartament cu 2 camere decomandat în Dobroești
€ 99.999
Județul Ilfov, Dobroești
2 camere
50 mp
Parter
Apartament cu 2 camere decomandat în Dobroești
€ 89.999
Județul Ilfov, Dobroești
2 camere
54 mp
Etaj 2 / 3
Apartament cu 3 camere decomandat în Dobroești
€ 98.305 + TVA
Județul Ilfov, Dobroești
3 camere
79,3 mp
Etaj 1 / 3
Apartament cu 2 camere decomandat în Dobroești
€ 99.900
Județul Ilfov, Dobroești
2 camere
55 mp
Parter
Apartament cu 2 camere, mobilat în Dobroești
€ 92.595
Județul Ilfov, Dobroești
2 camere
57 mp
Etaj 1 / 4
Apartament cu 2 camere decomandat în Dobroești
€ 89.800 + TVA
Județul Ilfov, Dobroești
2 camere
76 mp
Etaj 2
Apartament cu 2 camere decomandat, mobilat în Dobroești
€ 95.000
Județul Ilfov, Dobroești
2 camere
62,3 mp
Etaj 1 / 3
Apartament cu 2 camere decomandat, mobilat în Dobroești
€ 95.499
Județul Ilfov, Dobroești
2 camere
59 mp
Parter / 3

Abonează-te la newsletter să fii primul care primește cele mai noi recomandări de proprietăți și sfaturi de la experți.