Apartament 2 camere + curte 50 mp - Natura la tine acasă! Cristian-SiBiU

102.500 € + TVA

Cristian, Judeţul Sibiu

Nr. camere:
2
Suprafață utilă:
49,7 mp
Etaj:
Parter / 3
An construcție:
2026
Nr. niveluri:
3

Descriere apartament

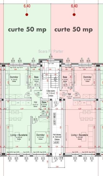
Apartament 2 camere de Vânzare în Cartierul DaVinci – Cristian, Sibiu Curte, Locație Premium, Priveliște Panoramică, Natură la Tine Acasă Vă prezentăm un apartament bine compartimentat, aflat intr-un imobil deosebit, situat într-o zonă înaltă, retrasă și liniștită a cartierului DaVinci din Cristian – Sibiu. Living + bucătărie = 30 mp Dormitor = 13 mp Baie = 4,5 mp hol = 2,2 mp Curte 50 mp Complexul în care se află apartamentul este format din blocuri tip vilă înșiruite, fiecare cu 7 case de scară și câte 7 apartamente – doar două pe etaj și unul la mansardă, asigurând intimitate și confort. Poziționare excelentă – panoramă unică asupra Mărginimii Sibiului, Munților Făgăraș și localității Cristian. Mediu natural bogat – vegetație abundentă și aer curat. Sistem de plată; avans 90% + 10 % la CVC = 100000 euro avans 30% + 30% (la rosu) + 40% la CVC = 102 500 euro avans 15% + 85% la CVC = 105 000 euro La aceste prețuri se adugă TVA-ul Alte tipuri de apartamente disponibile: 2 camere (SU 49,7 mp) + curte 50 mp - parter 3 camere, (SU 61,4 mp) spațiu generos, 2 băi + terasă 7 mp 3 camere, (SU 61,4 mp) spațiu generos, 2 băi + curte 50 mp - parter ideale pentru cupluri sau investiții; Toate apartamentele sunt decomandate, cu living open-space și bucătărie. Un loc de parcare inclus în preț Spații exterioare: Parter – curți private de 50–110 mp; Etaj – terase generoase de 7 mp. Stadiu de predare – La cheie: Buget finisaje la cheie: Pereți și tavane finisate cu vopsea lavabilă albă; Gresie și faianță – buget 60 lei/mp; Tâmplărie PVC Salamander – 7 camere, 3 foi de sticlă; Ușă metalică de intrare și uși interioare – buget 1.250 lei/ușă; Încălzire în pardoseală cu pompa de căldură aer-apă; Obiecte sanitare incluse – buget 2.500 lei/baie; Instalație electrică completă – buget 15 lei/priză; Termoizolație exterioară cu polistiren de 20 cm și tencuială decorativă; Izolație pod cu vată minerală 20 cm + gips-carton; Loc de parcare inclus (amenajat cu pavaj); loc suplimentar disponibil la 5.000 € + TVA. Termen de predare primăvara 2026! Contactează-ne pentru mai multe detalii sau o vizionare! Fă-ți casa într-un cadru natural, liniștit, dar aproape de Sibiu.
Citește mai mult Citește mai puțin
Confort 1 Decomandat Alte metode electrice Bine întreținut (Bună)

Detalii apartament

ID anunț: 1099965 Actualizat în: 17 Martie 2026
Nr. camere: 2
Suprafață utilă: 49,7 mp
Suprafață utilă totală: 49,7 mp
Compartimentare: Decomandat
Confort: 1
Etaj: Parter / 3
Nr. băi: 1
An construcție: 2026
Regim înălțime: P+3E

Istoric preț

Facilități

Pereți
Vopsea lavabilă
Podele
Parchet
Ușă intrare
Parchet Metal PVC
Uși interior
Celulare PVC
Stare interior
Stare bună
Izolații termice
Exterior Bloc izolat termic
Ferestre cu geam termopan
PVC
Contorizare
Apometre
Facilități imobil
Interfon
Utilități
Curent Apă Canalizare
Sistem încălzire
Alte metode electrice
Amenajare străzi
Asfaltate

Puncte de interes

Mijloace transport
transport
Cristian Sibiu
Mijloace transport aprox. 1677 m

Proprietăți similare

Apartament cu 2 camere decomandat în Cristian
106.500 €
Județul Sibiu, Cristian
2 camere
52,06 mp
Etaj 1 / 2
Apartament cu 2 camere decomandat în Cristian
100.000 € + TVA
Județul Sibiu, Cristian
2 camere
49,7 mp
Parter / 2
Apartament cu 2 camere decomandat în Cristian
98.000 €
Județul Sibiu, Cristian
2 camere
54 mp
Parter
Apartament cu 2 camere decomandat în Cristian
94.500 €
Județul Sibiu, Cristian
2 camere
55,4 mp
Etaj 2
Apartament cu 3 camere decomandat în Cristian
102.131 €
Județul Sibiu, Cristian
3 camere
53,94 mp
Etaj 1
Apartament cu 2 camere decomandat în Cristian
109.000 €
Județul Sibiu, Cristian
2 camere
54 mp
Etaj 1
Apartament cu 2 camere decomandat în Cristian
95.000 €
Județul Sibiu, Cristian
2 camere
54 mp
Etaj 1
Apartament cu 2 camere decomandat în Cristian
95.000 €
Județul Sibiu, Cristian
2 camere
54,14 mp
Etaj 1 / 2
Apartament cu 2 camere în Cristian
100.000 €
Județul Sibiu, Cristian
2 camere
53,55 mp
Parter

Abonează-te la newsletter să fii primul care primește cele mai noi recomandări de proprietăți și sfaturi de la experți.