Apartament 4 camere decomandat, 92.7mp, Lapus, Zona Mall Electroputere

€ 157.000

Lăpuş, Craiova

Nr. camere:
4
Suprafață utilă:
84,3 mp
Etaj:
8 / 8
An construcție:
1985
Nr. niveluri:
8

Descriere

Raportează anunț

Apartament 4 camere decomandat, 92.7mp, Lapus, Zona Mall Electroputere

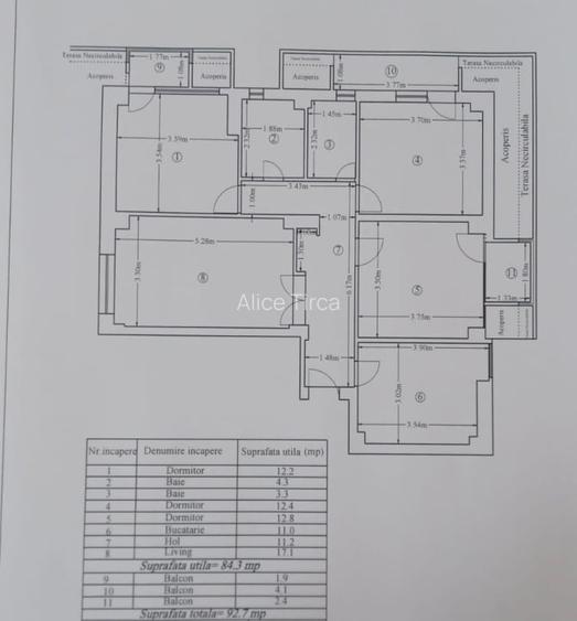
GDN Elite Imobiliare va propune spre vanzare un apartament cu 4 camere ce dispune de o compartimentare decomandata, fiind situat la etajul 8 din 8 in cartierul Lapus, zona Mall Electroputere. Imobilul este situat intr-o constructie finalizata in anul 1985 din cadre beton, ce masoara o suprafata utila de 84.3 mp, iar suprafata utila totala fiind de 92.7 mp, beneficiind de 3 balcoane, oferind o priveliste panoramica impresionanta, fiind trilateral cu orientare Estica-Nordica-Vestica. Incalzirea apartamentului se realizeaza prin centrala termica cu calorifere, instalatia electrica si sanitara a fost refacuta in totalitate, imobilul urmand a fi finisat la cheie, dispunand de urmatoarea compartimentare: un hol in forma de L, accesul in fiecare camera realizandu-se separat, in partea stanga este pozitionat livingul, iar in partea dreapta regasim bucataria, cele 3 dormitoare care permit accesul catre cele doua balcoane si cele 2 bai beneficiind de aerisire cu geam. Imobilul va fi predat cu usi interioare albe, gresie, faianta, parchet, tamplarie PVC, obiecte sanitare, urmand ca viitorul cumparator sa il poata configura dupa bunul plac. Apartamentul este pozitionat intr-o zona cu trafic intens, regasind in apropiere Mall Electroputere, Centru Comercial Sucpi, Restaurant Intim, Centru Comercial Metal Lemn, mijloace de transport in comun, statie taxi, scoli , farmacii, magazine, caminul 10 etc. Va asteptam cu drag la vizionare!
Citește mai mult Citește mai puțin
ID anunț: 2912574 Actualizat în: 08 Decembrie 2025
Nr. camere: 4
Suprafață utilă: 84,3 mp
Suprafață utilă totală: 84,3 mp
Compartimentare: Decomandat
Confort: 1
Etaj: Etaj 8 / 8
Nr. băi: 2
An construcție: 1985
Regim înălțime: P+8E

Istoric preț

Utilități

Utilități
Curent Apă Canalizare
Facilități
Lift Balcon

Proprietăți similare

Apartament cu 4 camere decomandat în Rovine
€ 145.000
Craiova, Rovine
4 camere
86 mp
Parter
Apartament cu 3 camere decomandat, mobilat în Central
€ 147.000
Craiova, Central
3 camere
69,8 mp
Etaj 2
Apartament cu 3 camere decomandat în Cornitoiu
€ 151.122 + TVA
Craiova, Cornitoiu
3 camere
67 mp
Etaj 1
Apartament cu 2 camere decomandat în 1 Mai
€ 155.000
Craiova, 1 Mai
2 camere
62 mp
Etaj 9
Apartament cu 3 camere decomandat în Ultracentral
€ 162.000
Craiova, Ultracentral
3 camere
68,5 mp
Etaj 4
Apartament cu 4 camere decomandat în Rovine
€ 170.000
Craiova, Rovine
4 camere
84 mp
Etaj 8
Apartament cu 4 camere decomandat, mobilat în 1 Mai
€ 147.900
Craiova, 1 Mai
4 camere
76 mp
Etaj 1
Apartament cu 2 camere decomandat în Central
€ 145.000
Craiova, Central
2 camere
43 mp
Etaj 3
Apartament cu 3 camere, mobilat în Central
€ 165.000
Craiova, Central
3 camere
70 mp
Parter

Abonează-te la newsletter să fii primul care primește cele mai noi recomandări de proprietăți și sfaturi de la experți.