Apartament 3 camere, decomandat, 62 mp utili , mobilat si utilat , Craiovita Nou

125.000 €

Craioviţa Nouă, Craiova

Nr. camere:
3
Suprafață utilă:
62 mp
Etaj:
4 / 4
An construcție:
1972
Nr. niveluri:
4

Descriere apartament

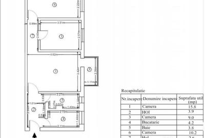
Blitz va propune spre vanzare un apartament de 3 camere, decomandat, cu o suprafa?a utila de 62 mp, la care se adauga doua balcoane ce insumeaza 6,57 mp. Apartamentul este complet decomandat ?i compartimentat astfel incat sa ofere confort ?i func?ionalitate: trei camere generoase, separate, potrivite pentru un living primitor ?i doua dormitoare, alaturi de o bucatarie open space moderna, care se integreaza perfect cu zona de zi. Se vinde complet mobilat ?i utilat, inclusiv cu electrocasnice func?ionale ?i mobilier in stare foarte buna, astfel incat viitorii proprietari sa se poata muta fara griji. Confortul este sporit de existen?a unei centrale termice proprii, care permite reglarea temperaturii in func?ie de preferin?ele personale ?i de sezon, dar ?i de un aparat de aer condi?ionat, ideal in zilele calduroase de vara. Acesta este situat in Craiovita Noua, zona Cornitoiu, Iar in imediata apropiere se gasesc locuri de joaca pentru copii, ?coala ?i gradini?a, o pia?a agroalimentara cu produse proaspete, supermarketuri ?i sta?ii pentru mijloacele de transport in comun, care faciliteaza deplasarea rapida catre centrul ora?ului sau alte zone de interes. Este o locuin?a ideala pentru o familie cu copii, pentru un cuplu care i?i dore?te un spa?iu generos ?i bine organizat, dar ?i pentru investitori care cauta o proprietate ce se poate inchiria u?or ?i rapid datorita loca?iei ?i facilita?ilor oferite. Pentru mai multe detalii sau pentru vizionare, nu ezitati sa ne contactati. Cod oferta / ID BLITZ: P148393
Citește mai mult Citește mai puțin
Decomandat Mobilat Aer condiționat Centrală proprie

Detalii apartament

ID anunț: 621946 Actualizat în: 04 Decembrie 2025
Nr. camere: 3
Suprafață utilă: 62 mp
Suprafață utilă totală: 62 mp
Compartimentare: Decomandat
Etaj: Etaj 4 / 4
Nr. băi: 1
An construcție: 1972
Regim înălțime: P+4E

Istoric preț

Facilități

Jaluzele
Verticale Orizontale
Pereți
Vopsea lavabilă Faianță
Podele
Parchet Gresie
Rulouri/Obloane
PVC
Ușă intrare
Parchet PVC Metal
Uși interior
PVC Panel
Contorizare
Apometre Contor gaz
Bucătărie
Mobilată
Mobilat
Mobilat
Facilități imobil
Interfon
Utilități
Climă Gaze Apă
Sistem încălzire
Centrală proprie
Climatizare
Aer condiționat
Amenajare străzi
Asfaltate

Proprietăți similare

Apartament cu 3 camere decomandat în Craiovița Nouă
129.990 €
Craiova, Craiovița Nouă
3 camere
53,37 mp
Etaj 4
Apartament cu 3 camere semidecomandat, mobilat în Craiovița Nouă
125.000 €
Craiova, Craiovița Nouă
3 camere
49 mp
Etaj 5
Apartament cu 3 camere semidecomandat, mobilat în Craiovița Nouă
119.000 €
Craiova, Craiovița Nouă
3 camere
50 mp
Etaj 5
Apartament cu 3 camere semidecomandat, mobilat în Craiovița Nouă
122.000 €
Craiova, Craiovița Nouă
3 camere
51 mp
Etaj 1
Apartament cu 2 camere semidecomandat, mobilat în Craiovița Nouă
115.000 €
Craiova, Craiovița Nouă
2 camere
51 mp
Etaj 3
Apartament cu 2 camere semidecomandat în Craiovița Nouă
118.000 €
Craiova, Craiovița Nouă
2 camere
60 mp
Parter
Apartament cu 2 camere decomandat, mobilat în Craiovița Nouă
115.000 €
Craiova, Craiovița Nouă
2 camere
47,77 mp
Etaj 3
Apartament cu 3 camere decomandat în Craiovița Nouă
129.990 €
Craiova, Craiovița Nouă
3 camere
53 mp
Etaj 4
Apartament cu 3 camere semidecomandat, mobilat în Craiovița Nouă
115.000 €
Craiova, Craiovița Nouă
3 camere
50 mp
Etaj 3

Abonează-te la newsletter să fii primul care primește cele mai noi recomandări de proprietăți și sfaturi de la experți.