Apartament 3 camere, decomandat, 92 mp, Cartierul Veteranilor, Parcul Romanescu

135.000 €

Central, Craiova

Nr. camere:
3
Suprafață utilă:
85 mp
Etaj:
3 / 2
Nr. niveluri:
2

Descriere apartament

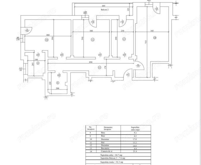
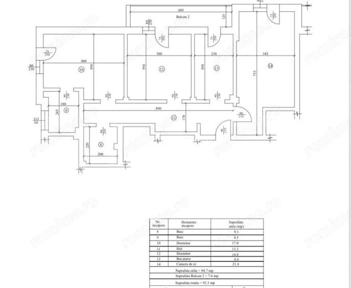
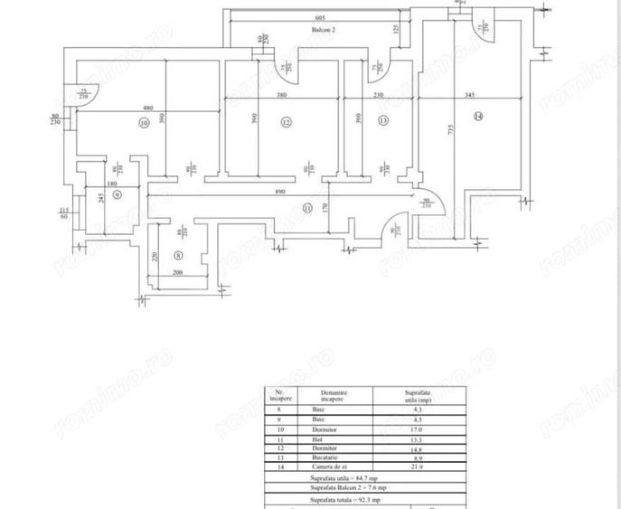
Blitz va propune spre achizite un apartament decomandat cu o suprafata total de 92.3 mp, din care 84.7 mp suprafata utila si 7.6 mp balconul. Imobilul este situat la etajul 3 al unui bloc cu 3 etaje. Apartamentul se va preda la cheie avand gresie, faianta, santiarele, termopan, usi interioare, usa metalica la intrare, interfon si centrala proprie cu incalzire pe calorifere. Constructia este una calitativa avand: pereti perimetrali zidarie BCA si stalpi din beton armat, ?grinzi si stalpi beton armat, ?sarpanta din lemn termoizolata cu spuma poliuretanica cu celula inchisa de 14 cm si inchidere cu tabla 0,55 dublu faltuita garantie 20 ani. ?termosistem 10 cm exterior, finisat cu plasa fibra si imbracat in tabla pentru considerente arhitecturale, tencuiala uscata de gyps carton aplicata peste zidarie de BcA la interior pentru finisaj premium, ?tamplarie PvC Salamander cu sticla termoizolanta de 28 mm Madrugada. In incinta compelxului accesul se face pe baza de telecomanda (bariera) iar locurile de parcare care pot fi achizitionate separat la pretul de 7000 + TVA. In imediata vecinatate putem gasi Parcul Nicolae Romanescu, scoala Ethos, Kaufland si Lidl la 5 minute, iar accesul la mijloacele de transport in comun, este unul facil. Pentru mai multe detalii, va asteptam cu drag la vizionare! Cod oferta / ID BLITZ: P161281 ID anun? : 1768208113
Citește mai mult Citește mai puțin
Decomandat Nemobilat Calorifere Centrală proprie Bine întreținut (Bună)

Detalii apartament

Actualizat în: 12 Aprilie 2026 ID anunț: 1152632
Nr. camere: 3
Suprafață utilă: 85 mp
Suprafață utilă totală: 85 mp
Compartimentare: Decomandat
Etaj: Etaj 3 / 2
Nr. băi: 2
Regim înălțime: P+2E

Istoric preț

Facilități

Pereți
Vopsea lavabilă Faianță
Podele
Parchet Gresie
Ușă intrare
Parchet Metal PVC
Uși interior
Celulare PVC
Stare interior
Stare bună
Izolații termice
Exterior
Ferestre cu geam termopan
PVC
Contorizare
Apometre Contor gaz
Mobilat
Nemobilat
Facilități imobil
Interfon Lift
Utilități
Apă Gaze
Sistem încălzire
Centrală proprie Calorifere
Amenajare străzi
Asfaltate Iluminat stradal

Proprietăți similare

Apartament cu 3 camere decomandat în Central
147.000 €
Craiova, Central
3 camere
87,15 mp
Parter
Apartament cu 2 camere decomandat în Central
143.350 €
Craiova, Central
2 camere
81 mp
Etaj 1
Apartament cu 2 camere în Central
147.580 €
Craiova, Central
2 camere
84 mp
Etaj 2
Apartament cu 2 camere în Central
146.076 €
Craiova, Central
2 camere
82 mp
Etaj 1
Apartament cu 2 camere în Central
147.580 €
Craiova, Central
2 camere
83 mp
Etaj 8
Apartament cu 2 camere decomandat în Central
144.854 €
Craiova, Central
2 camere
82 mp
Etaj 5
Apartament cu 3 camere decomandat, mobilat în Central
137.500 €
Craiova, Central
3 camere
63 mp
Parter / 4
Apartament cu 2 camere decomandat în Central
136.582 €
Craiova, Central
2 camere
73 mp
Etaj 1
Apartament cu 2 camere decomandat în Central
146.076 €
Craiova, Central
2 camere
82 mp
Etaj 1

Abonează-te la newsletter să fii primul care primește cele mai noi recomandări de proprietăți și sfaturi de la experți.