Apartament 2 camere, decomandat, 62 mp, cartier Veteranilor, parcul N. Romanescu

99.000 €

Central, Craiova

Nr. camere:
2
Suprafață utilă:
54 mp
Etaj:
3 / 2
Nr. niveluri:
2

Descriere apartament

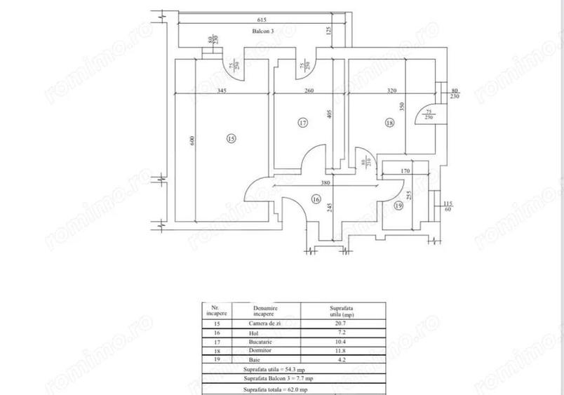
Blitz va propune spre achizite un apartament decomandat cu o suprafata total de 62 mp, din care 54.3 mp suprafata utila si 7.7 mp balconul. Imobilul este situat la etajul 3 al unui bloc cu 3 etaje. Apartamentul se va preda la cheie avand gresie, faianta, santiarele, termopan, usi interioare, usa metalica la intrare, interfon si centrala proprie cu incalzire pe calorifere. Constructia este una calitativa avand: pereti perimetrali zidarie BCA si stalpi din beton armat, ?grinzi si stalpi beton armat, ?sarpanta din lemn termoizolata cu spuma poliuretanica cu celula inchisa de 14 cm si inchidere cu tabla 0,55 dublu faltuita garantie 20 ani. ?termosistem 10 cm exterior, finisat cu plasa fibra si imbracat in tabla pentru considerente arhitecturale, tencuiala uscata de gyps carton aplicata peste zidarie de BcA la interior pentru finisaj premium, ?tamplarie PvC Salamander cu sticla termoizolanta de 28 mm Madrugada. In incinta compelxului accesul se face pe baza de telecomanda (bariera) iar locurile de parcare care pot fi achizitionate separat la pretul de 7000 + TVA. In imediata vecinatate putem gasi Parcul Nicolae Romanescu, scoala Ethos, Kaufland si Lidl la 5 minute, iar accesul la mijloacele de transport in comun, este unul facil. Pentru mai multe detalii, va asteptam cu drag la vizionare! Cod oferta / ID BLITZ: P161280 ID anun? : 1768207435
Citește mai mult Citește mai puțin
Decomandat Nemobilat Calorifere Centrală proprie Bine întreținut (Bună)

Detalii apartament

ID anunț: 228361 Actualizat în: 26 Martie 2026
Nr. camere: 2
Suprafață utilă: 54 mp
Suprafață utilă totală: 54 mp
Compartimentare: Decomandat
Etaj: Etaj 3 / 2
Nr. băi: 1
Regim înălțime: P+2E

Istoric preț

Facilități

Pereți
Vopsea lavabilă Faianță
Podele
Parchet Gresie
Ușă intrare
Parchet Metal PVC
Uși interior
Celulare PVC
Stare interior
Stare bună
Izolații termice
Exterior
Ferestre cu geam termopan
PVC
Contorizare
Apometre Contor gaz
Mobilat
Nemobilat
Facilități imobil
Interfon Lift
Utilități
Apă Gaze
Sistem încălzire
Centrală proprie Calorifere

Proprietăți similare

Apartament cu 2 camere semidecomandat în Central
93.500 €
Craiova, Central
2 camere
52 mp
1980
Apartament cu 2 camere semidecomandat în Central
105.000 €
Craiova, Central
2 camere
47 mp
Etaj 1
Apartament cu 2 camere decomandat în Central
90.000 €
Craiova, Central
2 camere
52 mp
1985
Apartament cu 2 camere decomandat în Central
92.000 €
Craiova, Central
2 camere
41 mp
Etaj 2 / 3
Apartament cu 2 camere semidecomandat în Central
104.900 €
Craiova, Central
2 camere
44 mp
Etaj 1
Apartament cu 2 camere semidecomandat în Central
94.800 €
Craiova, Central
2 camere
43 mp
Etaj 7 / 8
Apartament cu 2 camere semidecomandat în Central
100.000 €
Craiova, Central
2 camere
48 mp
Etaj 9
Apartament cu 2 camere în Central
94.500 €
Craiova, Central
2 camere
35,4 mp
Etaj 1
Apartament cu 2 camere semidecomandat în Central
108.000 €
Craiova, Central
2 camere
56 mp
Etaj 3 / 4

Abonează-te la newsletter să fii primul care primește cele mai noi recomandări de proprietăți și sfaturi de la experți.