Ap. 3 camere cu vedere la mare și boxă 30 mp, ultracentral

247.000 €

Ultracentral, Constanţa

Nr. camere:
3
Suprafață utilă:
60,05 mp
Etaj:
1 / 2
An construcție:
1930
Nr. niveluri:
2

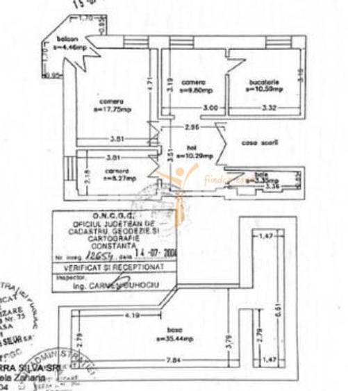
Descriere apartament

Vă prezentăm spre vânzare un apartament deosebit cu 3 camere, situat în Constanța la doar 2 minute de mare. Proprietatea beneficiază de o locație premium, fiind ideală atât pentru locuit, cât și pentru investiție în regim hotelier sau închiriere pe termen lung. Apartamentul are o suprafață utilă de aproximativ 60 mp și este amplasat într-un imobil cu regim redus de înălțime (P+2), care oferă un grad ridicat de intimitate. Clădirea cuprinde doar două apartamente, existând un singur vecin, ceea ce asigură liniște și confort. Locuința este bine compartimentată, având living, două dormitoare, bucătărie și baie, iar balconul oferă o vedere plăcută către mare. Un avantaj important îl reprezintă boxa proprie de la subsol, cu o suprafață generoasă de aproximativ 30 mp, ideală pentru depozitare sau utilizări multiple. Zona este una dintre cele mai căutate din Constanța, cu acces rapid către plajă, faleză, restaurante, cafenele și puncte de interes ale orașului, ceea ce crește considerabil valoarea investițională a proprietății. Actele sunt în regulă, iar apartamentul este disponibil imediat pentru vânzare. Se acceptă achiziția prin credit. Cei interesați beneficiază de consultanță financiară gratuită, incluzând identificarea celei mai avantajoase soluții de finanțare, simulări personalizate și realizarea unui plan eficient pentru închiderea anticipată a creditului. Această proprietate reprezintă o oportunitate, combinând poziționarea excelentă cu un grad ridicat de intimitate și un potențial investițional foarte bun.
Citește mai mult Citește mai puțin
Confort 1 Decomandat Mobilat Aer condiționat Centrală proprie Beci Bine întreținut (Bună) Zonă de litoral

Detalii apartament

ID anunț: 4098675 Actualizat în: 07 Aprilie 2026
Nr. camere: 3
Suprafață utilă: 60,05 mp
Suprafață utilă totală: 60,05 mp
Compartimentare: Decomandat
Confort: 1
Etaj: Etaj 1 / 2
Nr. băi: 1
An construcție: 1930
Regim înălțime: P+2E

Istoric preț

Facilități

Pereți
Vopsea lavabilă
Podele
Parchet Gresie
Ușă intrare
Parchet PVC Metal
Uși interior
PVC Panel
Stare interior
Stare bună
Izolații termice
Exterior Interior
Ferestre cu geam termopan
PVC
Contorizare
Apometre Contor căldură Contor gaz
Bucătărie
Mobilată
Mobilat
Mobilat
Electrocasnice
Mașină de spălat Frigider Aragaz Mașină spălat vase TV Cuptor microunde Hotă
Alte spații utile
Boxă la subsol
Facilități imobil
Videointerfon
Utilități
Curent Apă Canalizare Gaze Mașină de spălat rufe Frigider Aragaz / Plită Mașină de spălat vase TV Cuptor cu microunde
Sistem încălzire
Centrală proprie
Internet
Fibră optică
Climatizare
Aer condiționat

Puncte de interes

Mijloace transport
transport
Cap linie Poarta 2 [42
Mijloace transport aprox. 234 m
transport
Statia Poarta 2, Linia 5,42,48
Mijloace transport aprox. 260 m
transport
Poarta 2 Port [44
Mijloace transport aprox. 264 m
transport
Fantasio [42
Mijloace transport aprox. 408 m
Școală
education
Gradinita O.P. nr. 56 "Vaporasul Magic" (en)
Învățământ aprox. 137 m
education
Colegiul Naţional Mihail Eminescu
Învățământ aprox. 256 m
education
Gradinita nr.16
Învățământ aprox. 296 m
education
Şcoala generală nr. 2
Învățământ aprox. 462 m
Recreere
parks
Teren sportiv
Recreere aprox. 241 m
restaurants
Step Inside Bar
Restaurante aprox. 286 m
shopping
Magazinul Grand
Supermarket/Mall aprox. 590 m
shopping
Supermarket Grand
Supermarket/Mall aprox. 612 m

Proprietăți similare

Apartament cu 3 camere semidecomandat, mobilat în Ultracentral
230.000 €
Constanța, Ultracentral
3 camere
84 mp
Etaj 1
Apartament cu 3 camere decomandat în Ultracentral
247.000 €
Constanța, Ultracentral
3 camere
60 mp
Etaj 1
Apartament cu 4 camere decomandat în Ultracentral
235.000 €
Constanța, Ultracentral
4 camere
95 mp
Etaj 1 / 3
Apartament cu 4 camere semidecomandat, mobilat în Ultracentral
250.000 €
Constanța, Ultracentral
4 camere
95 mp
Etaj 1 / 4
Apartament cu 3 camere decomandat, mobilat în Delfinariu
259.999 €
Constanța, Delfinariu
3 camere
88,6 mp
Etaj 7
Apartament cu 3 camere decomandat, mobilat în Faleza Nord
257.500 €
Constanța, Faleza Nord
3 camere
86,28 mp
Etaj 5 / 9
Apartament cu 4 camere decomandat în Faleza Nord
225.000 €
Constanța, Faleza Nord
4 camere
117 mp
Etaj 4
Apartament cu 2 camere decomandat în Gara
265.000 € + TVA
Constanța, Gara
2 camere
56 mp
Parter / 3
Apartament cu 3 camere decomandat în Universitate
268.289 € + TVA
Constanța, Universitate
3 camere
149,33 mp
Etaj 6 / 7

Abonează-te la newsletter să fii primul care primește cele mai noi recomandări de proprietăți și sfaturi de la experți.