► ViVO Mall 2 Camere 60m² Mobilat si Utilat Centrala pe Gaze Parter

92.000 €

Tomis Nord, Constanţa

Nr. camere:
2
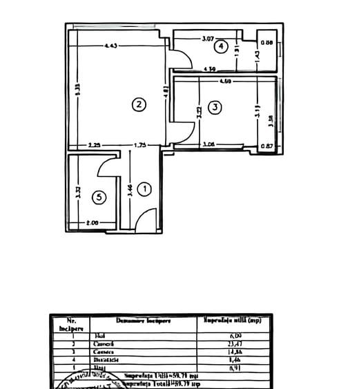
Suprafață utilă:
60 mp
Etaj:
Parter / 6
An construcție:
2012
Nr. niveluri:
6

Descriere apartament

► Birou de Intermediere si Consultanta Imobiliara Va propunem spre Vanzare un apartament de 2 Camere Decomandate, avand o Suprafata Utila de 60m², in zona Vivo Mall, situat la Parter intr-un bloc de 6 Etaje, finalizat in jurul anului 2012. Apartamentul este foarte luminos, prezinta imbunatatiri de actualitate, a fost Renovat in Totalitate, Instalatii noi, se vinde Mobilat si Utilat, avand Centrala Termica pe Gaze si Aer Conditionat. Optional, exista si un Loc de Parcare la pretul de 5.000 euro Cadastru, Intabulare, Certificat Energetic, PAD, C: 82594
Citește mai mult Citește mai puțin
Decomandat Mobilat Curte comună Aer condiționat Calorifere Centrală proprie Renovat Zonă de litoral

Detalii apartament

ID anunț: 2992107 Actualizat în: 02 Aprilie 2026
Nr. camere: 2
Suprafață utilă: 60 mp
Suprafață utilă totală: 60 mp
Compartimentare: Decomandat
Etaj: Parter / 6
Nr. băi: 1
An construcție: 2012
Regim înălțime: P+6E

Istoric preț

Facilități

Pereți
Vopsea lavabilă Faianță
Podele
Gresie Parchet
Ușă intrare
Parchet Lemn Metal PVC
Uși interior
Lemn Sticlă PVC
Stare interior
Renovat
Izolații termice
Exterior
Ferestre cu geam termopan
Lemn PVC
Contorizare
Contor gaz Apometre
Bucătărie
Mobilată Utilată
Mobilat
Mobilat
Facilități imobil
Lift Interfon Curte comună
Utilități
Gaze Curent Canalizare Apă Cablu
Sistem încălzire
Calorifere Centrală proprie
Internet
Cablu Fibră optică
Climatizare
Aer condiționat
Amenajare străzi
Asfaltate Iluminat stradal Mijloace de transport în comun

Puncte de interes

Mijloace transport
transport
VIVO! [1
Mijloace transport aprox. 135 m
transport
VIVO! [43M
Mijloace transport aprox. 142 m
transport
Statia Targ; Linia 1, 3B, 3R
Mijloace transport aprox. 158 m
transport
Euromaterna [44]
Mijloace transport aprox. 432 m
Școală
education
Gradinita nr. 43 Constanta
Învățământ aprox. 753 m
education
School No. 36 (en)
Învățământ aprox. 800 m
education
Scoala Generala Nr. 36 Comandor Dimitrie Stiubei
Învățământ aprox. 815 m
education
Gradinita cu program normal Nr.51
Învățământ aprox. 833 m
Recreere
shopping
VIVO!
Supermarket/Mall aprox. 150 m
parks
Teren baschet Maritimo
Recreere aprox. 158 m
shopping
Metro
Supermarket/Mall aprox. 503 m
restaurants
Rustic Restaurant (en)
Restaurante aprox. 1073 m

Proprietăți similare

Apartament cu 2 camere circular în Tomis Nord
95.000 €
Constanța, Tomis Nord
2 camere
50 mp
Parter
Apartament cu 2 camere decomandat, mobilat în Tomis Nord
89.990 €
Constanța, Tomis Nord
2 camere
52 mp
Etaj 10
Apartament cu 3 camere decomandat în Tomis Nord
92.000 €
Constanța, Tomis Nord
3 camere
62 mp
Etaj 3
Apartament cu 2 camere decomandat, mobilat în Tomis Nord
85.000 €
Constanța, Tomis Nord
2 camere
43 mp
Etaj 7
Apartament cu 2 camere decomandat în Tomis Nord
95.000 € + TVA
Constanța, Tomis Nord
2 camere
63,1 mp
Etaj 2 / 3
Apartament cu 3 camere decomandat în Tomis Nord
92.000 €
Constanța, Tomis Nord
3 camere
62 mp
Etaj 3
Apartament cu 2 camere, mobilat în Tomis Nord
91.500 €
Constanța, Tomis Nord
2 camere
55 mp
Etaj 4
Apartament cu 3 camere semidecomandat, mobilat în Tomis Nord
85.000 €
Constanța, Tomis Nord
3 camere
42,54 mp
Etaj 3
Apartament cu 2 camere semidecomandat în Tomis Nord
99.900 € + TVA
Constanța, Tomis Nord
2 camere
61 mp
Etaj 1 / 11

Abonează-te la newsletter să fii primul care primește cele mai noi recomandări de proprietăți și sfaturi de la experți.